
Prodej bytu 2+1 • 49 m² bez realitkyArnethgasse 63 Wien 16. Bezirk Wien 1160
Arnethgasse 63 Wien 16. Bezirk Wien 1160MHD 2 minuty pěšky • VýtahDiese hochwertig ausgestattete Wohnung befindet sich im 3. OG (mit Lift) und befindet sich aktuell in Fertigstellung. Ca. ab Mitte April wird die Wohnung frisch saniert verfügbar sein. Besichtigungen sind bereits jetzt schon möglich und Änderungswünsche können nach Abklärung noch berücksichtigt werden.
Tento vysoce kvalitně vybavený byt se nachází ve 3. patře (s výtahem) a momentálně se dokončuje. Přibližně od poloviny dubna bude byt zcela zrenovován a k dispozici. Prohlídky jsou již nyní možné a případné návrhy na úpravy mohou být po prověření ještě zohledněny.
Die Fotos stammen von einer bereits fertiggestellten Wohnung mit der gleichen Ausstattung.
Fotografie pochází z již dokončeného bytu se stejným vybavením.
Im Zuge der Generalsanierung werden sämtliche Leitungen (Elektrik und Installation) erneuert, neue Innentüren verbaut sowie ein stilvoll gefliestes Badezimmer mit separatem WC neu ausgeführt – beide ausgestattet mit modernen 30 × 60 cm Feinsteinzeugfliesen.
V rámci celkové rekonstrukce budou kompletně vyměněny všechny rozvody (elektroinstalace a technické systémy), budou instalovány nové vnitřní dveře a bude zcela přepracována koupelna s oddělenou toaletou – obě prostory budou vybaveny moderními dlaždicemi z precizního žulového kameninu o rozměrech 30 × 60 cm.
Die Aufenthaltsräume präsentieren sich mit edlem Landhausdielen-Parkett, das eine warme und wohnliche Atmosphäre schafft. Neue 3- fach verglaste Fenster sowie eine moderne LED-Deckenbeleuchtung im Vorzimmer, Küche und Badezimmer runden die durchdachte Innenausstattung ab.
Obývací prostory se mohou pochlubit elegantní parketovou podlahou ve stylu venkovských dřevěných prken, která vytváří teplou a útulnou atmosféru. Nová trojitě zasklená okna a moderní LED stropní osvětlení v předsíni, kuchyni i koupelně dokonale doplňují promyšlený interiér.
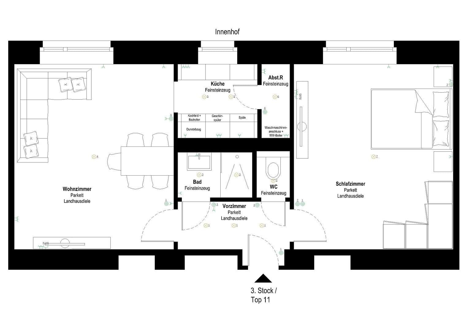
Die Raumaufteilung ist klar strukturiert: Die Zimmer sind vom Eingangsbereich zentral erschlossen. Von dort gelangen Sie direkt in das Schlafzimmer und das Wohnzimmer sowie in das Bad und WC. An die Küche ist ein Abstellraum mit Waschmaschinenanschluss angeschlossen und bietet damit zusätzlichen Stauraum.
Rozložení místností je přehledně strukturované: Vstupní prostor centrálně odhaluje jednotlivé místnosti. Odtud se dostanete přímo do ložnice a obývacího pokoje, stejně jako do koupelny a toalety. Kuchyni je navíc připojena halka se zapojením pro pračku, což zajišťuje dodatečný úložný prostor.
Auch die praktische Seite überzeugt: Zur Wohnung gehört ein großzügiges Kellerabteil für zusätzlichen Stauraum.
Praktičnost také nelze přehlédnout: K bytu patří prostorná sklepní komora poskytující dodatečný úložný prostor.
Die Küche ist mit sämtlichen Anschlüssen vorbereitet, sodass Sie Ihren persönlichen Küchentraum individuell verwirklichen können. Auf Wunsch kann ein Küchenentwurf zur Verfügung gestellt werden.
Kuchyně je připravena se všemi potřebnými přípojkami, takže si můžete podle vlastních představ vytvořit ideální kuchyňský prostor. Na vyžádání lze poskytnout i návrh kuchyně.
Die Liegenschaft in der Arnethgasse 63 punktet mit einer exzellenter Anbindung an den öffentlichen Nahverkehr: In fußläufiger Nähe stehen mehrere öffentliche Verkehrsmittel zur Verfügung, die eine direkte Erschließung des Stadtzentrums und weiterer Bezirke gewährleisten.
Nemovitost na Arnethgasse 63 vyniká excelentní dostupností k veřejné dopravě: V pěší vzdálenosti se nachází několik prostředků hromadné dopravy, které zajišťují přímé spojení s centrem města a dalšími částmi.
Verkehrsanbindungen:
Dopravní spojení:
In ca. 150m Entfernung, erreichen Sie die Straßenbahnstation „Redtenbachergasse“, mit der Sie direkt in das Stadtzentrum (Schottentor) gelangen.
Přibližně 150 metrů od bytu se nachází tramvajová zastávka „Redtenbachergasse“, ze které se můžete dostat přímo do centra města (Schottentor).
Mit den Buslinien 46A, 46B gelangen Sie schnell in das nahegelegene Naherholungsgebiet Wilheminenberg.
Autobusovými linkami 46A a 46B se rychle dostanete do nedaleké rekreační oblasti Wilheminenberg.
Auch die U-Bahnstation und Schnellbahnstation Ottakring ist in nur wenigen Gehminuten (ca. 500m) entfernt. In lediglich sieben Minuten Fahrzeit erreichen Sie die Bahnhofcity WienWest sowie die Einkaufsstraße Mariahilferstraße. In nur 14 Minuten erreichen Sie ohne umsteigen das Stadtzentrum (Station Stephansplatz).
Také stanice metra a rychlíkova stanice Ottakring jsou pouhých několik minut chůze (cca 500 m) od bytu. Za pouhých sedm minut jízdy se dostanete do nádražní čtvrti WienWest a na nákupní ulici Mariahilferstraße. Přímou jízdou bez přestupu dorazíte do centra města (stanice Stephansplatz) během 14 minut.
Einkaufsmöglichkeiten in der Umgebung:
Nákupní možnosti v okolí:
Nur wenige Gehminuten entfernt liegt die Ottakringer Straße und Thaliastraße, die beliebtesten Nahversorgungsstraßen im 16. Bezirk. Dort finden Sie ein vielfältiges Angebot an Einkaufsmöglichkeiten. Supermärkte wie Denns BioMarkt, Spar, Billa und Penny liegen im Umkreis von weniger als zehn Minuten. Drogerien, Sportgeschäfte, Restaurants und Cafés und ein Obst- und Gemüsemarkt sind ebenfalls fußläufig erreichbar.
Jen pár minut chůze od bytu se nachází ulice Ottakringer Straße a Thaliastraße, nejoblíbenější lokální nákupní zóny v 16. obvodě. Zde naleznete pestrou nabídku obchodů. Supermarkety jako Denns BioMarkt, Spar, Billa a Penny jsou v okruhu méně než deseti minut. Drogerie, sportovní obchody, restaurace, kavárny a také trh s ovocem a zeleninou jsou dostupné pěšky.
Erholungsgebiet Ottakringer Wald:
Rekreační oblast Ottakringer Wald:
In unmittelbarer Umgebung der Wohnung befindet sich eine Vielzahl an grünen Rückzugsräumen wie zb. den Ottakringer Wald mit dem gut ausgebauten Wegenetz sowie die Anbindung an den Stadtwanderweg 4. Dieses Erholungsgebiet bietet eine Vielzahl an Waldspielplätzen, Grillplätzen und Sehenswürdigkeiten zb das Schloss Wilhelminenberg oder die Jubiläumswarte.
V bezprostřední blízkosti bytu se nachází řada zelených oáz, například Ottakringer Wald s dobře vybudovanou sítí cest, a také spojení s městskou turistickou stezkou č. 4. Tato rekreační oblast nabízí množství lesních hřišť, grilovacích ploch a zajímavých míst, jako je zámek Wilhelminenberg nebo Jubilejní rozhledna.
HARO Parkettboden aus Eichenholz in Landhausdielen-Optik
HARO parketová podlaha z dubového dřeva s designem imituje vzhled venkovských podlahových prken
Modernes Feinsteinzeug in Bad, WC, Küche und Abstellraum
Moderní precizní žulový kameninový obklad v koupelně, na toaletě, v kuchyni a ve skladovací místnosti
Deckenbeleuchtung mit LED-Spots im Vorzimmer, Badezimmer und Küche
Stropní osvětlení s LED spot světly v předsíni, koupelně a kuchyni
Neue 3-fach verglaste Fenster
Nová trojitě zasklená okna
LAUFEN Pro / Villeroy Boch Markensanitärkeramik
Sanitární keramika značek LAUFEN Pro / Villeroy Boch
Duschsystem von Grohe mit Brausethermostat, Regendusche und Handbrause
Sprchový systém od Grohe s termostatem pro sprchovou regulaci, sprchou s efektem deště a ruční sprchou
Duschwandverglasung mit Nanobeschichtung und Sicherheitsglas (ESG)
Zasklení sprchové stěny s nanovrstvou a bezpečnostním sklem (ESG)
Schalter, Steckdosen und Netzwerkdosen von Berker
Vypínače, zásuvky a síťové zásuvky od společnosti Berker
MNPV GmbH
MNPV GmbH
Immobilien An- und Verkauf, Vermietung und Immobilienberatung
Realitní prodej a nákup, pronájem a poradenství v oblasti nemovitostí
FN 649248b
FN 649248b
Firmenbuchgericht: Handelsgericht Wien
Zápis v obchodním rejstříku: Obchodní soud ve Vídni
E-Mail Kontakt: office (at) mnpv.at
E-mailový kontakt: office (at) mnpv.at
V okolí nemovitosti najdete
Stále hledáte to pravé?
Nastavte si hlídacího psa. Nabídky vybrané na míru dostanete souhrnně 1× denně e-mailem. S Premium profilem máte k ruce hlídačů rovnou 5 a když se něco objeví, informují vás obratem.
















