
Prodej domu • 207 m² bez realitkyPforzheim Pforzheim Baden-Württemberg 75173
Pforzheim Pforzheim Baden-Württemberg 75173MHD 2 minuty pěškyVíce rodinný dům blízko centra s možností dokončení v půdním podkroví – flexibilní využití pro vlastníky i investory
Tento dům, který se nachází blízko centra, ale v klidné oblasti, nabízí široké možnosti rozvoje – jak pro vlastníky s touhou po individuálním řešení, tak pro investory.
Jedním z hlavních lákadel je stávající rezerva pro dokončení v půdním podkroví:
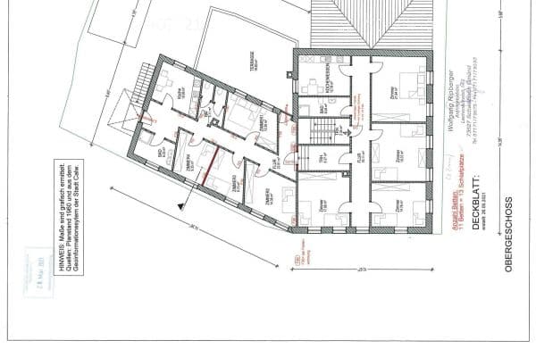
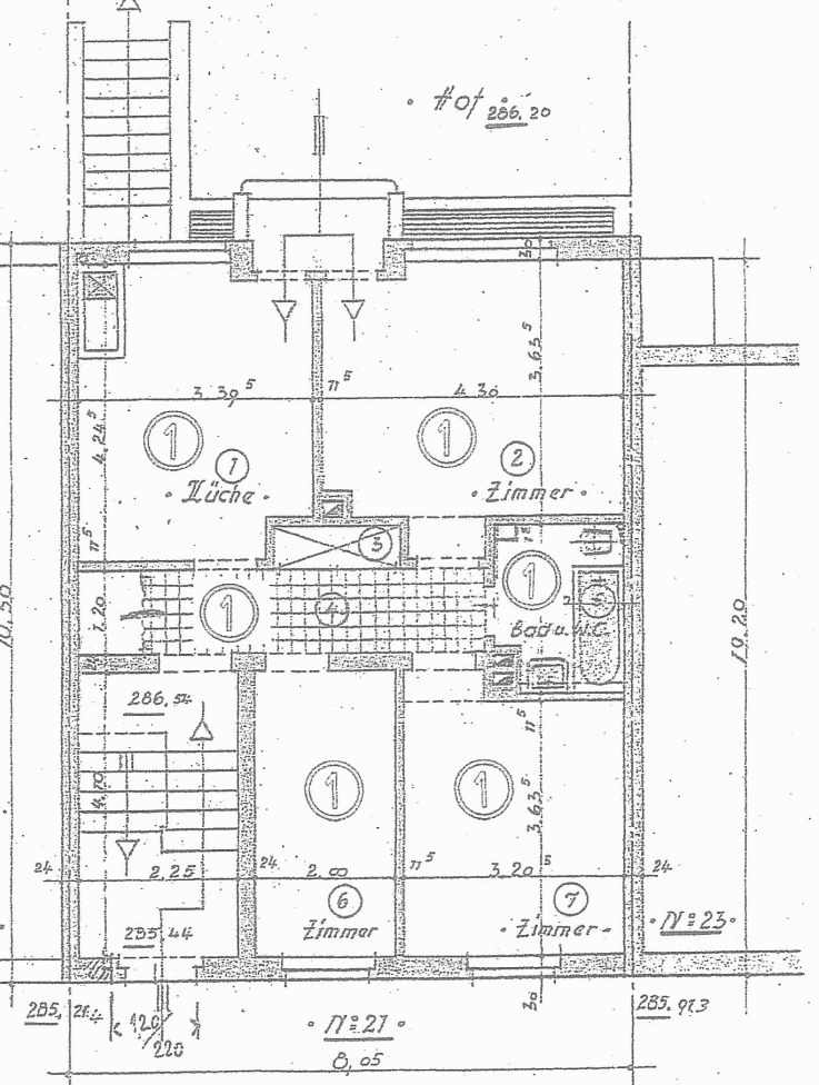
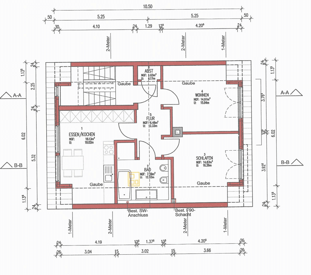
Již existují schválené plány na čtvrtou bytovou jednotku nebo prostornou maisonetu (2. patro + půdní podkroví).
Nemovitost je zvláště vhodná pro kupce s řemeslným zázemím nebo s odpovídajícími plánovacími schopnostmi, jelikož ještě vyžaduje zbývající práce. Rozsah těchto prací je výrazně závislý na požadovaném konceptu využití.
Flexibilní možnosti využití:
• Klasický dlouhodobý pronájem
• Krátkodobý pronájem (např. rekreační byty, ubytování pro pracovníky)
• Kombinace vlastního bydlení (maisoneta) a pronájmu
• Řešení pro více generací
S odpovídajícím plánováním je realizovatelná pronajímatelná plocha až cca 260 m².
Technický stav a provedené modernizace:
• Rok výstavby: 1958–1959, masivní konstrukce
• Solídní konstrukce: betonové základy, sklep v betonu, stěny z dutých cihel (24 cm)
• 2016: obnova všech podlažních topných systémů (kondenzační kotle značky Buderus), včetně radiátorů a potrubí
• Přesun topných a vodoinstalačních systémů do půdního podkroví (připojení již připraveno)
• 2020: elektřina byla z velké části obnovena
Výhodou podlažního topení je, že se náklady na energie účtují přímo mezi nájemcem a dodavatelem – podobně jako u elektřiny – bez administrativní zátěže či rizika pro majitele.
Další možnosti rozvoje:
• Dokončení půdního podkroví (již naplánováno)
• Možnost instalace prostorných balkonových předzahrádek (až cca 3 × 5 m), rovněž v půdním podkroví
• K dispozici je architektonický odhad nákladů na kompletní rekonstrukci
Aktuální využití:
• Přízemí je pronajato
• Horní patra jsou v současnosti využívána vlastníky
Závěr:
Nemovitost s pevnou konstrukcí, jasnou strukturou a značným rozvojovým potenciálem.
Zvláště vhodná pro kupce, kteří ocení prostor pro vlastní úpravy a jsou ochotni cílenými opatřeními zvýšit její hodnotu.
V případě zájmu vám rádi poskytneme další podklady.
Atraktivní obytná lokalita na Wilhelmshöhe – blízko centra, ale stále klidná
Nemovitost se nachází v žádané obytné lokalitě v Pforzheimu, na okraji oblasti Rodgebiet v tzv. Wilhelmshöhe, nedaleko školy Weiherberg.
Dopravní dostupnost je výborná:
Více centrálně situovaných autobusových linek je dosažitelných pěšky během několika minut (Sedanplatz cca 540 m, Turnplatz cca 320 m, Leopoldplatz cca 780 m). Také hlavní nádraží je pohodlně dosažitelné asi za 10–12 minut chůze.
V bezprostředním okolí naleznete veškeré zařízení pro každodenní potřeby:
Možnosti nákupu jako EDEKA (cca 650 m, včetně pekárny), gastronomické podniky (restaurace, kavárny, rozvoz jídel) a rovněž lékařské centrum v Simmlerstraße (cca 500 m).
Klidná poloha s výhledem na město
Mírně vyvýšená poloha na Weiherbergu nabízí výjimečnou kvalitu bydlení:
Navzdory bezprostřední blízkosti centra (cca 4–7 minut chůze) zůstává okolí příjemně klidné a téměř chráněné před městským shonem.
Od 2. patra se navíc otevírá široký výhled na jihovýchodní část města – od Kupferhammer až směrem k Haidachu.
Balkony a obytné prostory jsou převážně zaměřeny na zadní stranu domu a poskytují volný výhled do upravených zahrad – zelený, klidný pohled uprostřed centrální lokality.
V přízemí: malá zahrádka s velkou terasou, v 1. a 2. patře každý s balkonem a výhledem do zeleně, resp. přes jihovýchodní část města.
Převzetí dle dohody – dům bude předán kompletně "prázdný".
Parametry nemovitosti
| Stáří | Nad 50 let |
|---|---|
| PENB | G - Mimořádně nehospodárná |
| Plocha pozemku | 131 m² |
| Cena za jednotku | 1 860 € / m2 |
| Číslo inzerátu | 1007866 |
|---|---|
| Užitná plocha | 207 m² |
| Celkem podlaží | 3 |
Co tato nemovitost nabízí?
| Balkón | |
| Terasa |
| Sklep | |
| MHD 2 minuty pěšky |
V okolí nemovitosti najdete
Stále hledáte to pravé?
Nastavte si hlídacího psa. Nabídky vybrané na míru dostanete souhrnně 1× denně e-mailem. S Premium profilem máte k ruce hlídačů rovnou 5 a když se něco objeví, informují vás obratem.






















