
Pronájem bytu 2+1 • 53 m² bez realitkyAngerstraße 11 Leipzig Altlindenau Sachsen 04177
Angerstraße 11 Leipzig Altlindenau Sachsen 04177MHD 2 minuty pěškyPři této kvalitní 2+kk bytové jednotce v přízemí se jedná o prvotné využití po komplexní, s ohledem na památkovou hodnotu citlivě provedené rekonstrukci. Byt tak odpovídá novostavbě v existující budově a přináší moderní komfort bydlení při zachování charakteru historických staveb.
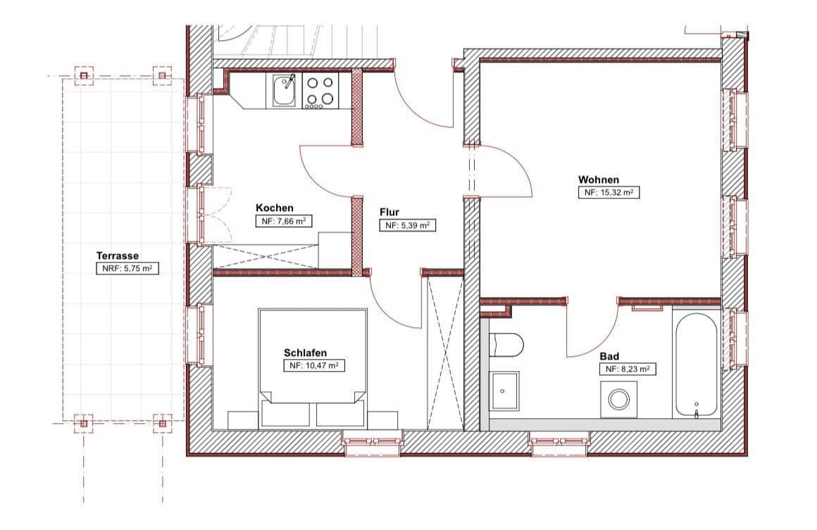
S přibližně 52,82 m² obytné plochy zauvá užitelný dispozice s prosvětlenými obytnými prostory a přímým vstupem na velkorysou terasu s výhledem do klidného, ze zeleně obklopeného vnitrobloku. Byt je světlý, slunný a kvalitně dokončený.
Budova obsahuje pouze pět bytových jednotek a nabízí tak klidné, přehledné sousedství.
Dům je vytápěn moderní tepelnou čerpadlem (energetická třída A), což dlouhodobě slibuje nízké a stabilní náklady na vytápění.
Byt je pronajímán bez kuchyňské linky, což umožňuje individuální úpravu prostoru.
Fotografie bytu, zveřejněné v inzerátu, zobrazují současný stav téměř v dokončené podobě. Probíhá momentálně základní úklid a dokončování terasy.
Byt se nachází v Alt-Lindenau, jedné z nejvyhledávanějších lokalit pro bydlení v západní části Lipska. Tato čtvrť spojuje městský život, ustálené sousedské vztahy a spoustu zeleně s vynikající infrastrukturou.
Alt-Lindenauer trh je dosažitelný za přibližně 3 minuty pěšky a tvoří živé centrum čtvrti s kavárnami, restauracemi, týdenním trhem i bohatou nabídkou obchodů pro každodenní potřeby (např. Kaufland).
U zastávky tramvaje, která se nachází jen asi 1 minutu chůze, je možné rychle se dostat do centra Lipska i do okolních čtvrtí.
Zvláštní výhodou je přímo přilehlá zelená plocha vedle budovy, která zůstává trvale nezastavěna a zajišťuje klid, volný výhled a příjemné, zelené okolí.
Alt-Lindenau se již řadu let řadí mezi nejvyhledávanější obytné čtvrti Lipska. Obchody, lékaři, školy, školky a volnočasové možnosti se nacházejí v bezprostředním okolí, což činí lokalitu mimořádně atraktivní.
• První využití po kvalitní rekonstrukci s ohledem na památkovou hodnotu (novostavba v existující budově)
• Masivní dřevěná parketa ve všech obytných prostorech
• Moderní koupelna s velkoformátovými moderními dlaždicemi
• Energetická třída A
• Vytápění pomocí energeticky efektivního tepelného čerpadla (nižší provozní náklady)
• Prostorná terasa s přístupem do klidného vnitrobloku a malou zahrádkou
• Malá komunita obyvatel s pouhými pěti bytovými jednotkami
• Praktický, přízemní úložný prostor v domě
• Moderní technologie budovy a současný standard bydlení (např. podlahové vytápění)
První užití s kvalitní rekonstrukcí odpovídající zachování památkových hodnot a kvalitou novostavby. Tepelné čerpadlo zaručuje dlouhodobě nižší náklady. Terasa, klidný zelený vnitroblok, přilehlá zelená plocha a malá komunita obyvatel dělají z tohoto bytu v Alt-Lindenau tu pravou vzácnou příležitost.
V okolí nemovitosti najdete
Stále hledáte to pravé?
Nastavte si hlídacího psa. Nabídky vybrané na míru dostanete souhrnně 1× denně e-mailem. S Premium profilem máte k ruce hlídačů rovnou 5 a když se něco objeví, informují vás obratem.


















