
Prodej domu 6+1 • 200 m² bez realitky, Braniborsko
V zasazené klidné a upravené osadě, přímo v chráněné krajině, spojuje tento výjimečný dům moderní architekturu s bydlením v souladu s přírodou na nejvyšší úrovni.
Harmonická kombinace dřeva, skla a oceli spolu s čistými architektonickými liniemi vytvářejí stylové a zároveň útulné obytné prostředí. Prostorná zasklení otevírají výhled z obytných prostor a zahrady široce přes vodu a umožňují, aby se interiér a exteriér vzájemně prolínaly. Prostornost, přirozené světlo, bezprostřední blízkost k jezeru a zvláštní klid tohoto místa propůjčují domu jedinečnou atmosféru.
Dům zaujme svou specifickou konstrukcí jako dům z masivního dřeva, což je jedna z nejvyšších forem dřevěné výstavby, která se výrazně liší od klasické rámové stavby. Ve spojení s moderní tepelným čerpadlem a ekologickými materiály splňuje nemovitost nejvyšší energetické nároky jako udržitelný nízkoenergetický dům.
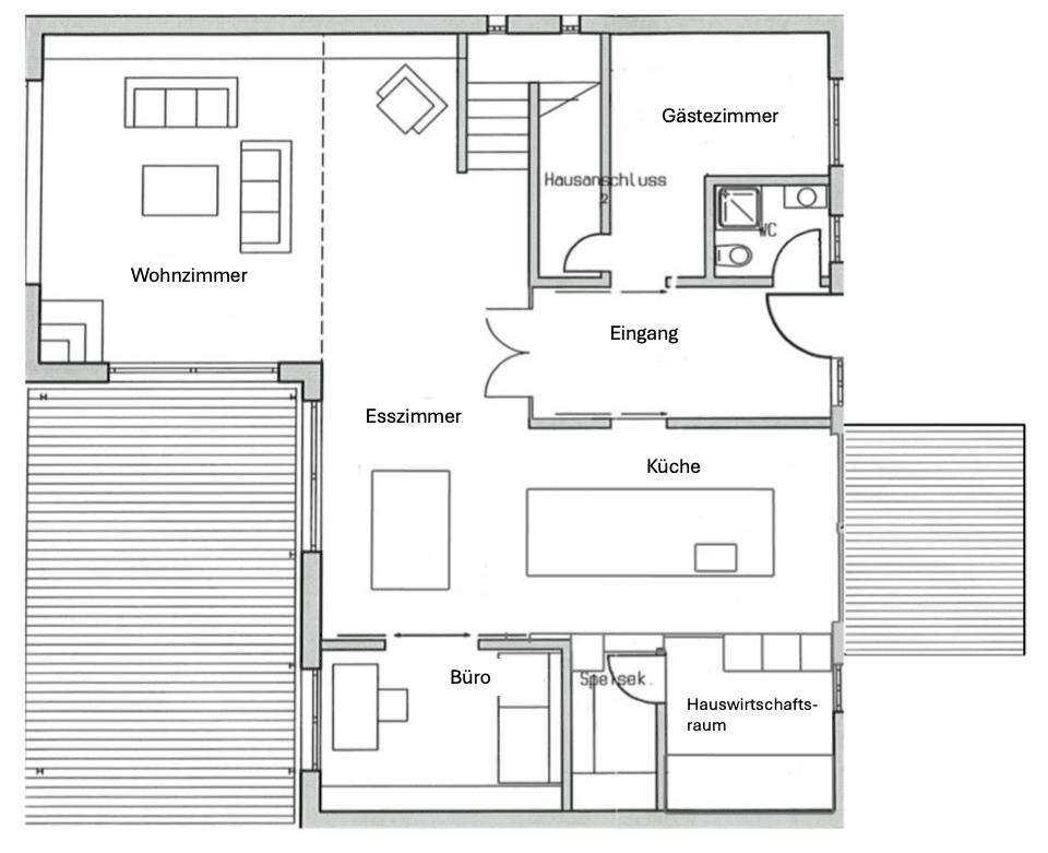
V přízemí se nachází prostorný obývací a jídelní prostor s přibližně 2,80 m vysokými stropy, který tvoří srdce domu. Stěhová zasklení poskytují spoustu denního světla a otevírají místnosti velkorysým vstupem na terasu s nezakrytým výhledem na jezero. Nad obývacím prostorem se rozkládá otevřená galerie až ke šikmé střeše a vytváří ohromující výšku místnosti přes 5 metrů. Jasné zorné osy a široký výhled do zeleně zdůrazňují otevřený pocit prostoru a úzké propojení s přírodou.
Otevřená designová kuchyně se stylovou pracovní deskou z nerezové oceli se harmonicky začleňuje do tohoto prostoru a tvoří centrální shromažďovací místo domu. Dlaňová okna otevírají místnost do chráněné snídaňové terasy v nádvoří. Za kuchyní, diskrétně oddělené otočnými dveřmi, se nachází domácí prádelna s funkční pracovní kuchyní a další spižírna, která poskytuje praktický úložný prostor a krátké vzdálenosti v každodenním životě.
Kancelář s vestavěnou lavicí nabízí příjemné místo pro práci či čtení. Doplněn je prostor v přízemí také o pokoj pro hosty, úložný a technický prostor a moderní hostinskou toaletu se sprchou.
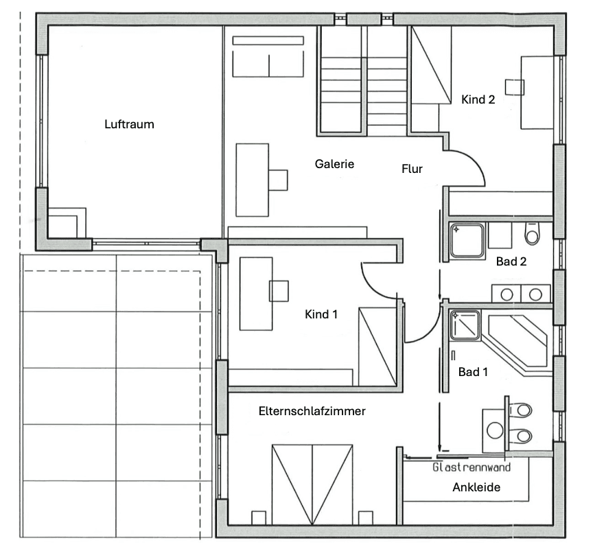
V patře vás čeká otevřená galerie, tři prostorné pokoje s půvabným výhledem na jezero a dvě vysoce kvalitně vybavené koupelny. Hlavní ložnice je koncipována jako soukromá jednotka a spojuje spací zónu, koupelnu en suite a šatnu (s oknem na střeše) do exkluzivního útočiště.
I exteriér zaujme svým promyšleným ztvárněním. Pozemek orientovaný na jihozápad nabízí optimální sluneční podmínky a ohromující výhledy. Rostoucí stromy, variabilní sluneční clona a hliníkové žaluzie zajišťují příjemné zastínění. Automatický zavlažovací systém s vodou z vlastního studny usnadňuje péči.
Střešený vstupní prostor v elegantní konstrukci ze skla a oceli doplňuje architektonický celek a nabízí komfortní, chráněný přístup z carportu a garáží přímo do domu.
Výjimečným prvkem je stylová venkovní sauna se velkou skleněnou čelní stěnou, která vytváří plynulé propojení mezi interiérem a exteriérem a podtrhuje relaxační hodnotu této rezidence.
Dalším šperkem této nemovitosti je přímý přístup k jezeru Falkenhagener, které se nachází přímo před pozemkem. Zde se otevírá řada možností pro volnočasové aktivity, jako je koupání, jízda na lodi nebo procházky po břehu.
Dům je určen pro lidi, kteří si cení architektury, přírody a kvality v dokonalé rovnováze.
Falkensee s přibližně 45 000 obyvateli patří k oblíbeným lokalitám pro bydlení přímo na berlínské hranici. Město, zasazené do malebné přírody Havellandsku, obklopené lesy a loukami, nabízí plně rozvinutou infrastrukturu. K tomu patří různé školské a výchovné nabídky, četné nákupní možnosti, poskytovatelé služeb i dobrá zdravotní péče – zde najdete vše potřebné pro každodenní život.
Pro rodiny jsou k dispozici různé mateřské školy, například „Kita am See“ a další zařízení v okolí. Pro školáky je zde rovněž široká nabídka, například školy s montessori konceptem, Europaschule nebo Leonardo-da-Vinci-Campus v Nauni.
Dále Falkensee nabízí atraktivní gastronomickou scénu s italskými restauracemi, steakhouse, řeckou kuchyní a mnoha dalšími kulinářskými možnostmi. Životní model „bydlet ve Falkensee a pracovat v Berlíně“ je obzvláště oblíbený – jak u zaměstnanců velkých společností, tak u vědců a politiků.
Díky dobře rozvinutým dopravním cestám se dostanete do berlínského centra autem přibližně za 30 minut, například po B5/Heerstraße, Brunsbütteler Damm nebo Falkenseer Chaussee/Nonnendammallee. Po B5 navíc existuje rychlé spojení do dálniční sítě, takže i vzdálenější cíle jako Hamburk nebo Hannover jsou rychle dosažitelné.
Veřejná doprava je rovněž dobře organizovaná: autobusové linky 652, 653 a 655 spojují Falkensee s vlakovými nádražími Falkensee, Seegefeld, Finkenkrug a Dallgow-Döberitz a s Havelparkem. Volnočasové možnosti jako B5 Outlet Center, Erdbeerhof nebo Döberitzer Heide jsou rychle dosažitelné a vybízejí k aktivní rekreaci.
Ať už vodní sporty na jezeře, jogging v nedalekém lese nebo aktivity jako jízda na koni, golf a tenis – okolí nabízí řadu možností pro pestrou volnočasovou aktivitu.
Tři regionální vlaková nádraží jsou dosažitelná autem nebo na kole přibližně za 5 až 8 minut. Odtud se za přibližně 20 minut dostanete na berlínské hlavní nádraží – ideální pro dojíždějící. Navíc za méně než 10 minut se dostanete na nádraží Berlin-Spandau, odkud vede linka metra U7 a dálkové i regionální spoje (ICE, IC/EC stejně jako S a regionální vlaky).
Vybavení a přednosti:
• Architektonicky navržený dům ve výhradní masivní dřevěné stavbě u jezera
• Pozemek cca 1 134 m² v klidné lokalitě s neomezeným výhledem na jezero
• Obytná plocha cca 200 m² s velkorysým uspořádáním
• Prostorný obývací a jídelní prostor se stěhovou zasklením a výhledem na jezero
• Otevřená galerie nad obývacím prostorem
• Zahradní pozemek orientovaný na jihozápad
• Plně pozinkovaná stanová střecha – vysoce odolná a kvalitní realizace
• Nízkopružnostní dům (Energetická třída A) s novým tepelným čerpadlem a ekologickými stavebními materiály
• Podlahové topení
• Exkluzivní plně vybavená truhlářská kuchyně s pracovní deskou z nerezové oceli
• Obývací pokoj s krbem
• Hlavní ložnice s otevřeně navrženou koupelnou en suite
• Snídaňová terasa a terasa u jezera s variabilní sluneční clonou
• Dveře v přízemí mají přibližně 2,50 m výšky
• Vysoce kvalitní elektricky ovládané venkovní rolety s nastavitelnými lamelami ve všech místnostech
• Samostatná pracovní kuchyně v domácí prádelně
• Střešený vstupní prostor v elegantní konstrukci ze skla a oceli
• 2 samostatné garáže a 1 carport s velkorysným výběhem
• Moderní vjezdy se elektrickými posuvnými vraty a vchodovými dveřmi do nádvoří
• Samostatná saunová místnost se skleněnou čelní stěnou a venkovními žaluziemi
• Automatický zavlažovací systém (5 regulačních okruhů) s vodou z vlastního studny
• 2 zahradní domky pro vybavení a pracovní lavici
• Vestavěné skříně v chodbě

































