
Prodej bytu 2+1 • 50 m² bez realitkyMannheim Mannheim Baden-Württemberg 68165
Nabízený 2+kk byt v podkroví se nachází v udržovaném domě pro více rodin ve velmi dobrém technickém stavu. V roce 2017 byl byt kompletně zrekonstruován. Při rekonstrukci byly mimo jiné vyměněny vodovodní potrubí v kuchyni a koupelně, elektroinstalace byla kompletně modernizována a koupelna i kuchyň byly zcela obloženy novými dlaždicemi. K dispozici jsou příslušné faktury a fotografická dokumentace.
Byt vyniká svou výbornou polohou, což zajišťovalo jeho stálou dobrou pronajímatelnost. Od února 2022 je byt pronajat současným nájemníkům. Aktuální základní nájemné činí 600 € měsíčně, ke kterému se přičítá 110 € na provozní náklady. Domovní poplatky se pohybují okolo 229 €. Podle současného nájemního průzkumu se jako reálné jeví základní nájemné ve výši přibližně 700 € měsíčně.
Dům byl průběžně udržován a celkově se prezentuje v velmi pečovaném stavu. Správa domu pracuje spolehlivě a pečlivě se stará o potřebné zásahy.
Byt se nachází v žádané části Oststadt, v bezprostředním okolí Friedrichsplatzu s vodárenskou věží. Sama poloha mluví jasně: nabízí centrum města s výbornou infrastrukturou a přitom klid, protože byt leží v maloreziproční uličce. V této atraktivní lokalitě je poptávka po nájemnících vždy velmi vysoká, což dále podtrhuje dlouhodobou pronajímatelnost.
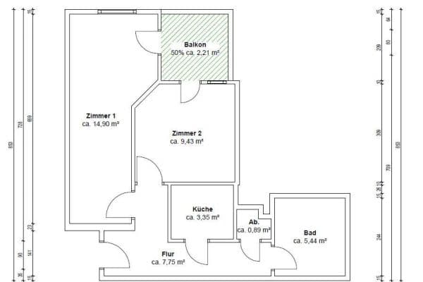
V rámci komplexní rekonstrukce v roce 2017 byl byt vybaven moderní vestavěnou kuchyňí, která zahrnuje troubu, keramickou varnou desku a lednici. Byt se nachází v podkroví (7. patro), a proto představuje světlý, klidný prostor s přímým přístupem k dennímu světlu. Výtah jezdí od sklepa až do 6. patra, přičemž nejvyšší patro je snadno dostupné pěšky. K bytu náleží rovněž prostorný sklep, který poskytuje dostatek úložného prostoru.
V okolí nemovitosti najdete




Prodej bytuMina-Karcher-Platz Frankenthal Frankenthal (Pfalz) Rheinland-Pfalz 67227- 3+1
- 86 m²
227 000 € + 550 €








