
Prodej bytu 3+1 • 78 m² bez realitkyWiesbaden Wiesbaden Hessen 65203
Vítejte ve vašem novém domově ve Wiesbaden-Biebrich! V docházkové vzdálenosti od zámkového parku vám přibližně 78 m² obytné plochy, rozdělené do tří promyšleně navržených místností v klidné poloze vnitřního dvora, nabízí přesně ten obytný komfort, po kterém toužíte.
Byt byl nedávno rozsáhle a vysoce kvalitně zrekonstruován a je připraven k prvému nastěhování. Všechny klíčové oblasti – od elektroinstalací přes koupelnu až po podlahy a povrchové úpravy – byly obnoveny, takže se sem můžete ihned nastěhovat bez dalších úprav a cítit se tu pohodlně.
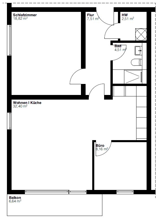
Dobře strukturovaný půdorys, prosvětlené místnosti a otevřená kuchyň s obývacím prostorem vytvářejí příjemnou a vstřícnou atmosféru. Praktická hospodářská místnost s připojením pro pračku zaručuje každodenní funkčnost. Balkon s výhledem na zeleň vnitřního dvora nabízí klidné útočiště a dokonale doplňuje celkový harmonický dojem.
Lokalita nabízí jedinečnou kombinaci klidu a každodenní praktičnosti. Zámkový park je vzdálen jen asi 500 metrů a zve k procházkám a relaxaci v přírodě. Současně máte v krátké době k dispozici obchody, MHD a centrum Wiesbadenu.
Kombinace vysoce kvalitní rekonstrukce, klidné polohy a možnosti okamžitého nastěhování činí z tohoto bytu domov, kde se člověk cítí pohodlně už od první chvíle.
Nemovitost je nabízena přímo vlastníkem bez provize.
Byt se nachází v prvním patře velmi udržovaného rodinného domu ve vyhledávané lokalitě Wiesbaden-Biebrich. Je třeba zdůraznit klidnou, ustavenou polohu u vnitřního dvora ve druhé řadě, která i přes centrální umístění nabízí příjemné a chráněné obytné prostředí.
Obchody s denní potřebou, jako jsou supermarkety, kavárny a drogerie, jsou pohodlně dostupné pěšky. I vzdálenější cíle, například centrum Wiesbadenu nebo hlavní nádraží, jsou díky autobusové zastávce „Wiesbaden-Biebrich Heppenheimer Str.“, která se nachází v bezprostřední blízkosti, rychle dosažitelné.
Zámkový park Biebrich je vzdálen jen asi 500 metrů a nabízí vysokou hodnotu pro volnočasové aktivity a relaxaci s rozsáhlými zelenými plochami a polohou u Rýna.
Díky nedalekým přípojným uzlům na dálnicích A671 a A66 máte navíc rychlé spojení do celého oblastí Rhein-Main.
Celkově se lokalita vyznačuje atraktivní kombinací klidu, kvalitní infrastruktury a centrální dostupnosti.
V rámci komplexní rekonstrukce byl byt v roce 2026 technicky a vizuálně pozvednut na špičkovou moderní úroveň mimo jiné následujícími opatřeními:
• Kompletní rekonstrukce elektroinstalací
• Kompletní rekonstrukce koupelny
• Obnovení všech stěn a stropů
• Nové radiátory ve všech místnostech
• Nové vodovodní potrubí
• Nová vysoce kvalitní vinylová podlaha v dubové optice
• Výměna všech rámů a vnitřních dveří
• Optimalizace půdorysu
• Zcela nová vestavěná kuchyň, kterou nabízíme volitelně za příplatek
Rádi vám také pomůžeme s financováním této nemovitosti. Náš nezávislý finanční poradce pro vás vybere z řady finančních partnerů tu nejlepší nabídku odpovídající vaší individuální situaci a zajistí tak optimální podmínky.
MAAD Real Estate GmbH
Gerichtsstr. 2
65185 Wiesbaden
Zapsáno u okresního soudu Wiesbaden
HRB 32961











