
Pronájem bytu 3+1 • 104 m² bez realitkyAm Steinkart 5b, , Bavorsko
Am Steinkart 5b, , BavorskoMHD 5 minut pěšky • Výtah • GarážBydlení a život jako ve snu v Bad Griesbach
Zde se spojuje architektura a pocit z bydlení. Byty kombinují příjemný pocit kvality a jistoty stylu. Prostorné, světlé místnosti okouzlují vysoce kvalitními materiály v nadčasově krásné estetice.
V krásné obytné oblasti Bad Griesbach pro Vás realizujeme ambiciózní projekt novostavby v nejatraktivnější lokalitě – čtyři rodinné domy se souhrnem 44 bytových jednotek výjimečného a moderního typu. Kromě kvality klademe při plánování a realizaci velký důraz na moderní a regionálně odpovídající architekturu. Pozemek se nachází úchvatně, v vyvýšené poloze na konci osídlení, a nabízí volný výhled na hory. Městské náměstí, lékaři a veškeré zařízení pro každodenní potřeby jsou pohodlně dostupné pěšky.
Byty přesvědčují svými prostornými balkóny, střešními terasami a terasami se zahradami. Zahrady bytů v přízemí jsou k dispozici výhradně vlastníkovi. Penthouse byty a byty v horních patrech nabízejí úžasný výhled, který nelze nikým znemožnit, s pohledem na Alpy. Výtahy spojují podzemní garáž se všemi patry, takže mají obyvatelé pohodlný přístup. Velká část bytů je bezbariérově přístupná.
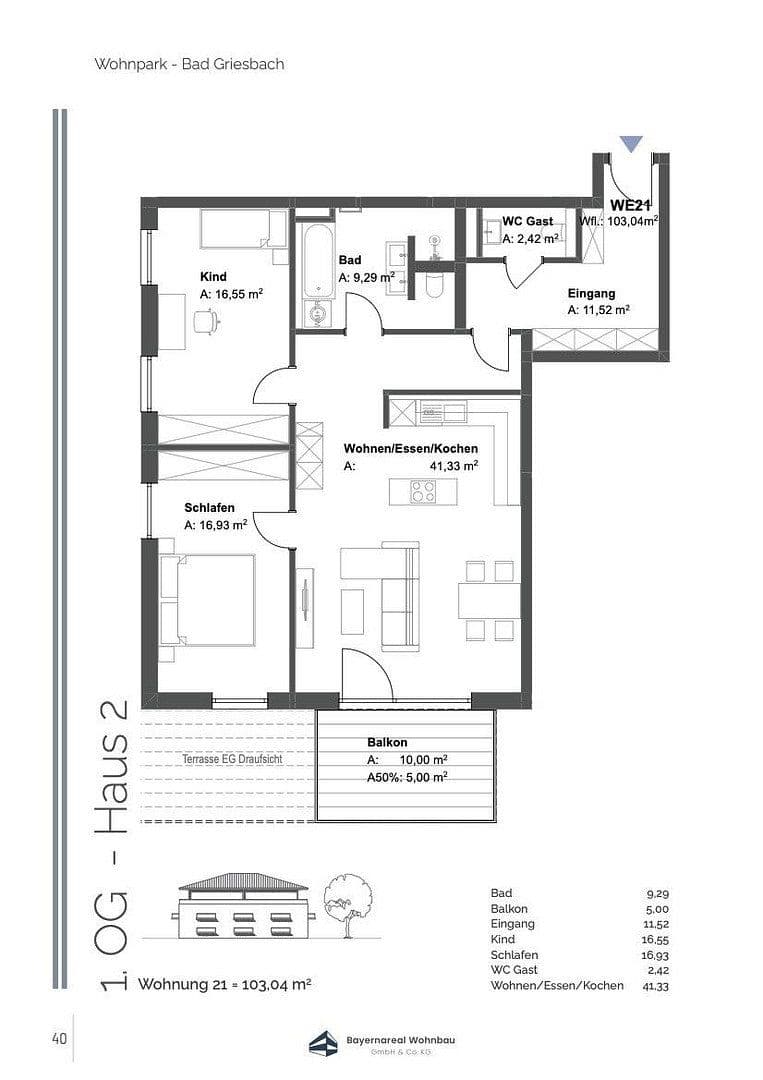
Naše slunný 3-pokojový byt s jižním balkónem, ložnicí, koupelnou a prostorným otevřeným obývacími, jídelními a kuchyňskými prostory je ideální pro rodiny i páry, kteří hledají místo k odpočinku a pocit pohodlí! Velká zahrada je výhradně k dispozici příslušnému vlastníkovi.
Projekt TG samozřejmě nabízí parkovací místa – parkovací stánky typu carport a venkovní parkovací místa. Navíc má každý byt vlastní sklepní kóji.
KFW 40 QNG standard:
Stavba splňuje všechna kritéria současné EnEV dle energetické účinnosti třídy KfW40 QNG a díky tepelné obálce budovy zdůrazňuje udržitelnou stavební metodu. Díky tomu je stavba velmi energeticky úsporná, udržitelná a šetrná k životnímu prostředí. Budoucí provozní náklady jsou díky provedení stavby velmi nízké. Energiekoncept podporuje solární elektrárna s výkonem 10 kWp.
Složení nájemního ceny:
– Nájemné za 2-pokojový byt: 1170,00 EUR
– Nájemné za 2 místa v podzemní garáži: 130,00 EUR
– Nájemné za vestavěnou kuchyň: 65,00 EUR
– Provozní náklady: 190,00 EUR
= Celkové nájemné (včetně tepla): 1555,00 EUR
JE K DISPOZICI VÍC BYTŮ, KTERÉ JE MOŽNO PŘI PROHLÍDKY V BYDLÍCÍ ZÓNĚ PROHLÉDNOUT!
Bydlení a život v Bad Griesbach
V neblokovatelné nejžádanější lokaci s úchvatným výhledem a nedaleko centra Bad Griesbach vznikají čtyři rodinné domy se souhrnem 44 bytových jednotek výjimečného a moderního typu.
360° prohlídka:
https://bayernarealwohnbau.viewin360.co/share/collection/7bQ8V?logo=bWVkaWEvNTQxNTIyLzY2ZTQtMDI1Ni00MTViLWYxOTIucG5n&info=0&logosize=160&fs=1&vr=1&sd=1&thumbs=1&inst=de
Moderní a luxusní vybavení:
+ Moderní stavební technika a vysoce kvalitní vybavení dle standardu KfW 40 NH Effizienzhaus
+ Tepelně izolační cihly
+ Vestavěná kuchyň
+ Fotovoltaická elektrárna s výkonem 10 kWp
+ Přízemní byty s terasami a zahradními prostory
+ V každém rodinném domě je výtah
+ Energeticky úsporné vytápění pomocí peletových kotlů
+ Byty jsou většinou bezbariérové
+ Vysoce kvalitní parketové podlahy z masivního dřeva / moderní dlaždice
+ Individuálně nastavitelné podlahové topení pro příjemný pocit komfortu bydlení
+ Bezbariérové sprchy a designové koupelnové vybavení
+ Částečně s hostinským WC
+ Hliník / plastová okna – zvenku antracitová, zevnitř bílá (trojitě izolační skla)
+ Elektricky ovladatelné rolety a žaluzie
+ Decentralizovaná rekuperační větrací soustava
+ Parkovací místa v carportu
+ Venkovní parkovací místa
+ K jednotlivému bytu patří 1 sklepní kóje
V okolí nemovitosti najdete
Stále hledáte to pravé?
Nastavte si hlídacího psa. Nabídky vybrané na míru dostanete souhrnně 1× denně e-mailem. S Premium profilem máte k ruce hlídačů rovnou 5 a když se něco objeví, informují vás obratem.




















