
Pronájem bytu 4+1 • 105 m² bez realitkyNa Balkáně, Praha - Žižkov
Na Balkáně, Praha - ŽižkovMHD 5 minut pěšky • Částečně vybaveno • Výtah • Parkování • Sklep 4 m²Máte o nabídku zájem?
Ušetřete 38 000 Kč na provizi a komunikujte se všemi majiteli.
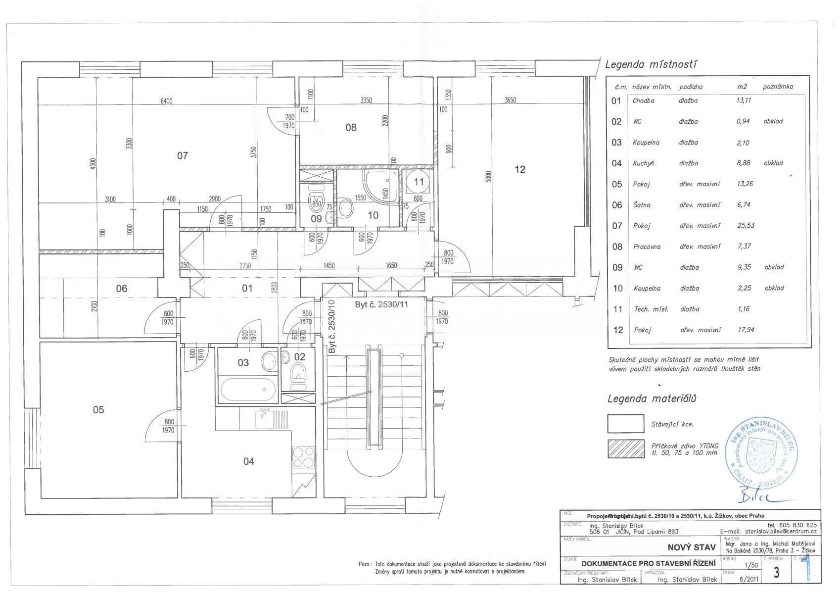
Nabízím k pronájmu slunný klimatizovaný byt ve 3. patře s výtahem rekonstruovaného a zatepleného činžovního domu v klidné lokalitě Praha 3, Jarov (Balkán). Byt o dispozici 4+1 vznikl spojením dvou bytových jednotek a nabízí nadstandardní úroveň bydlení v lokalitě poblíž centra Prahy, která byty této velikosti zpravidla nenabízí. Dispozice:
Obývací pokoj - 25 m2 orientace jih
Dětský pokoj - 18 m2 - orientace jih, neprůchozí
Ložnice - 13,3 m2 - orientace východ, neprůchozí
Pracovna - 7 m2 - orientace sever
Oddělená kuchyň - 8m2 - orientace jih, navazuje na obývací pokoj
Prostorná vstupní hala - 13m2
2 koupelny, jedna s vanou, druhá se sprchovým koutem
2 oddělená WC
Šatna / Kumbál
Technická místnost pro pračku se sušičkou
(viz přiložený plánek bytu, uporozňujeme však, že kuchyňská linka je nyní oproti stavu na plánku v místnosti 08 místo 04 a místnost 04 slouží jako pracovna)
Dům je zrekonstruován v roce 2002, kdy byl doplněn výtah a zateplení. Byt byl moderně rekonstruován v roce 2011, později 2015 a nyní je stále ve výborném stavu a částečně zařízen kuchyňskou linkou s ledničkou, troubou a myčkou nádobí, vestavnými úložnými prostory a třemi klimatizačními jednotkami, které vzhledem k jižní orientaci některých místností vytváří příjemné prostředí i v nejteplejších letních dnech. Pokoje jsou vybaveny příjemnou moderní dřevěnou podlahovou krytinou, chodby, koupelny a WC dlažbou.
Byt je vhodný zejména k dlouhodobějšímu bydlení pro rodiny s dětmi.
V okolí široká občanská vybavenost, sportoviště, park, několik dětských hřišť, školy, školky, poliklinika, Kaufland. Zastávka MHD Chmelnice je od bytu cca. 5 minut chůze. Parkování je přímo před domem v modrých zónách Prahy 3, nalezení místa zcela bez problému v jakoukoli denní i noční hodinu.
K bytu rovněž patří jedna malá sklepní kóje.
I offer for rent a sunny apartment on the 3rd floor of a renovated and insulated apartment building in a quiet location in Prague 3, Jarov (Balkán). The available 4+1 apartment was created by joining two apartment units and offers an above-standard level of living in a locality near the center of Prague, which does not usually offer such layouts. Disposition:
Living room - 25 m2 facing south
Children's room - 18 m2 - facing south
Bedroom - 13.3 m2 - facing east
Office - 7 m2 - facing north
Separate kitchen - 8m2 - facing south
Spacious entrance hall - 13m2
2 bathrooms
2 separate toilets
(see the attached plan of the apartment, however, please note that the kitchen unit is now in room 08 instead of 04 compared to the state on the plan and room 04 is used as a study)
The house was renovated in 2002, when an elevator and insulation were added. The apartment was modernly renovated in 2011, later in 2015 and is now newly painted and partially furnished with a kitchen unit with a fridge, oven and dishwasher, built-in storage spaces and three air conditioning units, which, due to the southern orientation of some rooms, creates a pleasant environment even in the hottest summer days. The rooms are equipped with a pleasant modern wooden floor covering, corridors, bathrooms and WC have tiles.
The apartment is particularly suitable for long-term living for families with children.
In the vicinity, a wide range of civic amenities, sports fields, a park, several playgrounds, schools, kindergartens, health facilities, Kaufland can be found. The Chmelnice public transport stop is approx 5 minutes walk from the apartment. Parking is right in front of the house in the blue zones of Prague 3, finding a place without any problems at any time of the day or night.
There is a small cellar available with the appartment.
Parametry nemovitosti
| Dostupné od | 20. 12. 2022 |
|---|---|
| Konstrukce budovy | Cihla |
| Vybaveno | Částečně |
| Vytápění | Vzdálené |
| PENB | G - Mimořádně nehospodárná |
| Umístění | Klidná část |
| Cena za jednotku | 362 Kč / m2 |
| Stav | Velmi dobrý |
|---|---|
| Dispozice | 4+1 |
| Podlaží | 3. podlaží z 4 |
| Číslo inzerátu | 757111 |
| Rekonstrukce | Kompletní |
| Užitná plocha | 105 m² |
Co tato nemovitost nabízí?
| Sklep 4 m² | |
| Výtah | |
| MHD 5 minut pěšky |
| Parkování |
V okolí nemovitosti najdete
Máte o nabídku zájem?
Ušetřete 38 000 Kč na provizi a komunikujte se všemi majiteli.
Stále hledáte to pravé?
Nastavte si hlídacího psa. Nabídky vybrané na míru dostanete souhrnně 1× denně e-mailem. S Premium profilem máte k ruce hlídačů rovnou 5 a když se něco objeví, informují vás obratem.






















