
Pronájem bytu 3+1 • 75 m² bez realitkyNa Korábě, Praha - Libeň
Na Korábě, Praha - LibeňMHD 2 minuty pěšky • Částečně vybavenoVyžadováno pojištění odpovědnostiMáte o nabídku zájem?
Ušetřete 23 500 Kč na provizi a komunikujte se všemi majiteli.
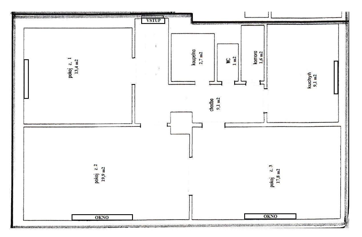
Zrekonstruovaný cihlový byt 3+1 (74,6 m2), 2. podlaží + sklepní kóje. Dálkové topení + TV, připojení UPC, O2. Poplatky za služby budou vyúčtovány. Kuchyňská linka , sporák, lednička, mrazák, pračka, mikrovlnná trouba, bezpečnostní dveře. Dispozice viz. plán. Ve vzdálenosti 100 m park Pod Korábem, MŠ, (150 m) ZŠ, (100 m) , sportcentrum (250 m), zdravotnické centrum a lékárna (150 m),nemocnice Bulovka (i hřbitov :-) ). Byt je tichý, parkování na ulici. Metro B a C, 5 min. tramvají , veškerá občanská vybavenost a dopravní obslužnost. Poplatky za energie znamenají platby za služby (teplo, TV, SV ap.). Spotřebu elektrické energie a plynu hradí nájemce přímo dodavateli. Nutno doložit finanční schopnost úhrady nákladů.
Minimální délka pronájmu 1 rok. Možný dlouhodobý pronájem.
V okolí nemovitosti najdete
Máte o nabídku zájem?
Ušetřete 23 500 Kč na provizi a komunikujte se všemi majiteli.
Stále hledáte to pravé?
Nastavte si hlídacího psa. Nabídky vybrané na míru dostanete souhrnně 1× denně e-mailem. S Premium profilem máte k ruce hlídačů rovnou 5 a když se něco objeví, informují vás obratem.

















