
Pronájem bytu 2+kk • 61 m² bez realitkyKomořanská, Praha - Modřany
Komořanská, Praha - ModřanyVýtah • Garáž • Sklep 8 m² • Terasa 5 m²Vyžadováno pojištění odpovědnostiVyžadováno ověření bezdlužnostiMáte o nabídku zájem?
Ušetřete 25 000 Kč na provizi a komunikujte se všemi majiteli.
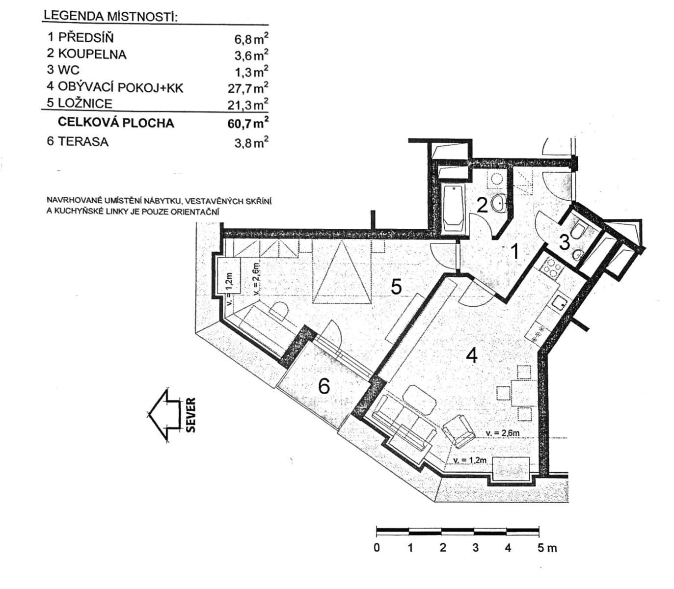
Nabízíme světlý prosluněný, tichý byt přímo od majitele s výhledem do zeleně. 4. patro s výtahem, terasou, velikým sklepem i prostorným garážovým stáním. Výhled téměř ze všech oken i terasy do protějších kopců, přímo před domem se nachází park. Byt je prostorný, netradičně řešený, má dvě velké místnosti, v jedné je kuchyň, druhou je možné rozdělit nábytkem na 3kk. Všechna okna, včetně vchodových dveří na terasu, jsou opatřena žaluziemi. Oddělená prostorná koupelna s vanou a oddělené WC. Na chodbě je k použití vestavěná skříň. Stejně tak je skříňka v koupelně. Byt je nevybavený.
I když je byt v předposledním patře, je nad ním terasa, tudíž je v bytě stejný klid, jako by byl v posledním patře.
Byt je po částečné rekonstrukci. 2 minuty chůze od tramvajové i autobusové zastávky, nedaleko jezdí i příměstský vlak. Ve vzdálenosti cca 150 m se nachází supermarket, drogerie, bankomaty, lékárna, atd. K nastěhování ihned.
Zálohy ve výši 4000 Kč zahrnují vše kromě elektřiny, ta se přepisuje na nájemníky. Její výše je cca 500 Kč/měsíc.
Preferujeme zájemce s využitím garážového stání.
Parametry nemovitosti
| Dostupné od | 1. 4. 2026 |
|---|---|
| Konstrukce budovy | Cihla |
| Vybaveno | Nevybaveno |
| Vytápění | Vzdálené |
| Vlastnictví | Osobní |
| Užitná plocha | 61 m² |
| Stav | Velmi dobrý |
|---|---|
| Dispozice | 2+kk |
| Podlaží | 4. podlaží z 5 |
| Číslo inzerátu | 966209 |
| Umístění | Klidná část |
| Cena za jednotku | 409,84 Kč / m2 |
Co tato nemovitost nabízí?
| Bezbariérový přístup | |
| Garáž | |
| Výtah |
| Sklep 8 m² | |
| Terasa 5 m² |
V okolí nemovitosti najdete
Máte o nabídku zájem?
Ušetřete 25 000 Kč na provizi a komunikujte se všemi majiteli.
Stále hledáte to pravé?
Nastavte si hlídacího psa. Nabídky vybrané na míru dostanete souhrnně 1× denně e-mailem. S Premium profilem máte k ruce hlídačů rovnou 5 a když se něco objeví, informují vás obratem.
























