
Pronájem bytu 2+kk • 51 m² bez realitkyKolbenova, Praha - Vysočany
Kolbenova, Praha - VysočanyVybaveno • VýtahVyžadováno pojištění odpovědnostiVyžadováno ověření bezdlužnostiMáte o nabídku zájem?
Ušetřete 29 500 Kč na provizi a komunikujte se všemi majiteli.
Architektonický loft s galerií | kompletně vybavený | Kolbenova
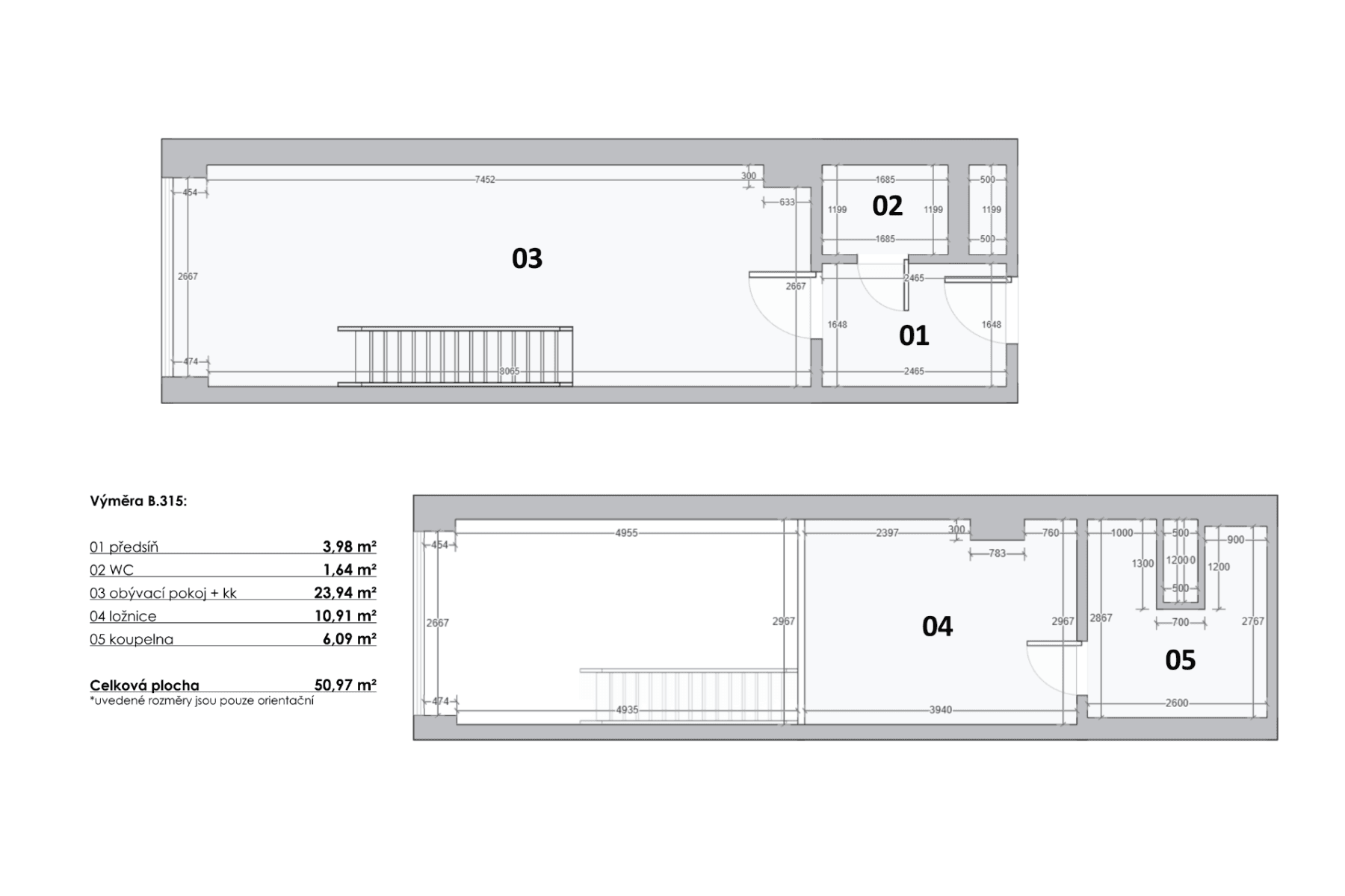
Nabízím k dlouhodobému pronájmu výjimečný loftový byt s galerií, navržený architektem a kompletně vybavený. Byt je řešen ve dvou úrovních, s vysokými stropy, kvalitními materiály a velmi příjemnou atmosférou pro dlouhodobé bydlení.
Byt je připraven k okamžitému nastěhování – stačí přijít s kufrem.
Co byt nabízí
otevřený obytný prostor s kuchyní
ložnice na galerii
samostatné WC
koupelna se sprchou
pračka a sušička
klimatizace, rekuperace
podlahové vytápění
venkovní žaluzie
designová svítidla
TV
Lokalita
metro Kolbenova pár minut chůze
klidná moderní čtvrť
rychlá dostupnost centra
Finanční podmínky
zálohy na služby: 3 000 Kč / měsíc
elektřina: přepis na nájemníka
kauce: 2 x nájem
Byt je vhodný pro jednotlivce nebo pár, nekuřáky.
Dlouhodobý pronájem vítán.
V okolí nemovitosti najdete
Máte o nabídku zájem?
Ušetřete 29 500 Kč na provizi a komunikujte se všemi majiteli.
Stále hledáte to pravé?
Nastavte si hlídacího psa. Nabídky vybrané na míru dostanete souhrnně 1× denně e-mailem. S Premium profilem máte k ruce hlídačů rovnou 5 a když se něco objeví, informují vás obratem.

















