
Prodej bytu 4+1 • 104 m² bez realitkyNa Mlynářce, Rudná - Hořelice, Středočeský kraj
Na Mlynářce, Rudná - Hořelice, Středočeský krajČástečně vybaveno • Parkování • Garáž • Sklep 6 m²Využít program Bydlím hned, koupím později
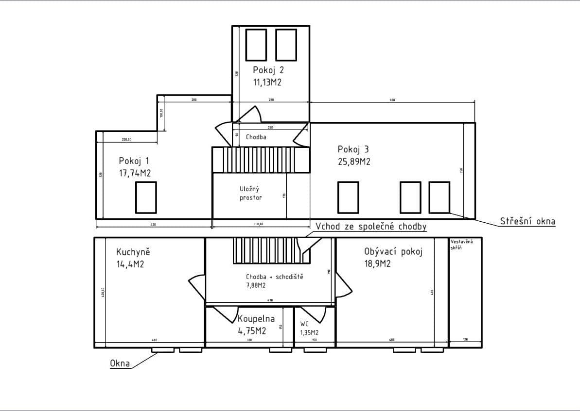
Nabízíme k prodeji výjimečný mezonetový byt 4+1 ve velmi dobrém stavu, nacházející se ve 2. patře udržovaného bytového domu bez výtahu, v klidné okrajové části města.
Byt nabízí příjemnou kombinaci rodinného bydlení, soukromí a výborné dopravní dostupnosti. Lokalita je ideální pro rodiny, sportovce i všechny, kdo hledají bydlení v klidu, ale zároveň s perfektní dostupností do Prahy. V Praze jste autem za 5 minut, stejně tak rychle jste ale i v lese za městem. Veškerá občanská vybavenost je snadno dosažitelná i pěšky či mhd. V Rudné najdete mateřské i základní školy, fitness, Lidl i menší obchody.
Na autobusovou zastávku je to přibližně 5 minut chůze a na vlakovou zastávku, odkud se dostanete pohodlně na pražský Smíchov, je to 15 minut.
Dispozice bytu je velmi praktická a díky mezonetovému řešení působí vzdušně a útulně. Ze vstupní chodby lze vstoupit na samostatnou toaletu, do koupelny, do kuchyně s jídelním koutem nebo do obývacího pokoje. Velkou předností obývacího pokoje je rozměrná vestavěná skříň, kde je dostatek úložného prostoru pro celou rodinu. V horním patře se pak nacházejí tři samostatné prostorné pokoje, ideální jako ložnice, dětské pokoje či pracovna. Součástí největšího pokoje, nynější ložnice, je také extra úložný prostor, kde schováte vše, co nechcete mít na očích.
K bytu náleží také vlastní zahrada o rozloze 69 m² a možnost využívání společné zahrady. Místo ideální pro letní grilovačky, relaxaci na čerstvém vzduchu či péči o sezónní úrodu.
K dispozici jsou dvě parkovací stání přímo u domu a sklepní kóje o velikosti 6 m².
Prosíme RK nevolat. Opravdu chceme byt prodat bez realitky.
We offer for sale an exceptional duplex apartment 4+1 in very good condition, located on the 2nd floor of a well-maintained building without an elevator, in a quiet suburban part of the town.
The apartment provides a pleasant combination of family living, privacy, and excellent transport accessibility. The area is ideal for families, athletes, and anyone seeking a peaceful home with perfect access to Prague. It’s only a 5-minute drive to Prague by car, while the forest outside the city is just as quickly reached. All local amenities are easily accessible on foot or by public transportation. In Rudná you will find kindergartens, primary schools, a fitness center, a Lidl, and smaller shops. The bus stop is approximately a 5-minute walk away and the train station, from which you can comfortably reach Prague’s Smíchov, is 15 minutes away.
The apartment’s layout is very practical and, thanks to its duplex design, feels airy and cozy. From the entrance hall, you can access a separate toilet, the bathroom, the kitchen with a dining area, or the living room. A major advantage of the living room is the spacious built-in wardrobe, which offers plenty of storage space for the whole family. On the upper floor, there are three separate spacious rooms, ideal as bedrooms, children’s rooms, or a study. The largest room, currently used as the master bedroom, also includes extra storage space where you can stow away everything you don’t want on display.
The apartment also comes with its own garden of 69 m² and the option to use a shared garden—an ideal spot for summer barbecues, relaxing in the fresh air, or caring for seasonal produce. There are two parking spaces directly at the building and a cellar storage unit measuring 6 m².
Please, no inquiries from real estate agents. We truly want to sell the apartment without an agent.
Parametry nemovitosti
| Dostupné od | 17. 1. 2026 |
|---|---|
| Konstrukce budovy | Cihla |
| Vybaveno | Částečně |
| Číslo inzerátu | 982192 |
| PENB | D - Méně úsporná |
| Užitná plocha | 104 m² |
| Cena za jednotku | 110 481 Kč / m2 |
| Stav | Velmi dobrý |
|---|---|
| Dispozice | 4+1 |
| Podlaží | 3. podlaží z 4 |
| Vlastnictví | Osobní |
| Umístění | Klidná část |
| Rizika | Prověřit » |
Co tato nemovitost nabízí?
| Sklep 6 m² | |
| Garáž | |
| Parkování |
| Předzahrádka 69 m² | |
V okolí nemovitosti najdete
Využít program Bydlím hned, koupím později
Stále hledáte to pravé?
Nastavte si hlídacího psa. Nabídky vybrané na míru dostanete souhrnně 1× denně e-mailem. S Premium profilem máte k ruce hlídačů rovnou 5 a když se něco objeví, informují vás obratem.






















