
Prodej bytu 3+kk • 66 m² bez realitkyOlivova, Říčany - Říčany u Prahy, Středočeský kraj
Využít program Bydlím hned, koupím později
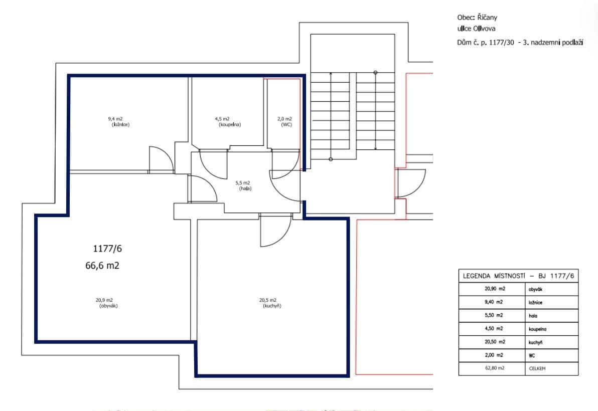
Nabízíme k prodeji světlý byt 3+kk v osobním vlastnictví o velikosti 66,6 m² + 5,4 m² s podílem na společné zahradě v atraktivní a klidné části Říčan. Byt se nachází v 2. patře (3. NP) cihlového domu se šesti jednotkami, bez výtahu.
Dům a dispozice:
Dům prošel rekonstrukcí – fasáda, foukaná izolace střechy, oplechování, plot a vjezd, sklepní okna, sklepní kóje. SVJ má schváleny plány pro nové povrchy při vjezdu do domu, dokončení oplocení.
Byt je po rekonstrukci - nové vinylová podlaha, dlažba, elektroinstalace, kuchyňská linka, dveře. Koupelnu je možné užívat v současné podobě nebo do budoucna upravit dle vlastních představ. Samozřejmostí jsou plastová okna. Orientace bytu na východ a jih zajišťuje příjemné světlo po celý den. Výhled je do přírody, nad úrovní ostatních domů - v bytě je naprosté soukromí. Vytápění zajišťuje vlastní plynový kotel přímo v bytě. Dům je napojen na městský vodovodní a kanalizační řad.
Dispozice 3+kk:
- obývací pokoj s kuchyní (cca 20,5 m²) a výhledem směrem k lesu
- dvě podkrovní ložnice (20,9 m²; 9,4 m²), jedna průchozí - možnost do budoucna přesunout vchod z kuchyně
- chodba (5,5 m²), podkrovní WC (2 m²), podkrovní koupelna (4,5 m²)
- k bytu náleží prostorná sklepní kóje (5,4 m²)
K bytu dále náleží 1/6 podíl na společných sklepních prostorách – sklad, kolárna/kočárkárna. Parkování je možné přímo na pozemku.
Zahrada a okolí:
K bytu patří podíl na společné zahradě o rozloze cca 620 m² – ideální pro děti, mazlíčky, posezení nebo zahradničení. Zahrada je travnatá, udržovaná a nabízí klid v jinak plně vybaveném městě.
Lokalita:
- Nová základní škola s tělocvičnou nedaleko domu.
- V pěší vzdálenosti školka, gymnázium, lékaři, obchody, kavárny, náměstí i služby.
- Vlakové nádraží Říčany dostupné pěšky či autobusem – přímé spojení do Prahy, cca 25 minut na Hlavní nádraží.
- Do 10–15 minut chůze les, přírodní stezky, dětská hřiště, cyklotrasy i rekreační místa, rybník Marvánek, další oblíbené lokality jako Jureček, říčanský les nebo zřícenina hradu.
Říčany patří dlouhodobě mezi nejlepší místa k životu v ČR – bezpečné, zelené, s výbornou občanskou vybaveností.
Byt se hodí jak pro vlastní bydlení, tak jako investice díky vysoké poptávce nájemního bydlení v Říčanech.
Parametry nemovitosti
| Dostupné od | 21. 1. 2026 |
|---|---|
| Konstrukce budovy | Cihla |
| Vybaveno | Nevybaveno |
| Číslo inzerátu | 983423 |
| PENB | G - Mimořádně nehospodárná |
| Užitná plocha | 66 m² |
| Cena za jednotku | 118 182 Kč / m2 |
| Stav | Velmi dobrý |
|---|---|
| Dispozice | 3+kk |
| Podlaží | Přízemí |
| Vlastnictví | Osobní |
| Umístění | Klidná část |
| Rizika | Prověřit » |
Co tato nemovitost nabízí?
| Sklep 5,4 m² | |
| Předzahrádka 620 m² | |
| Parkování |
V okolí nemovitosti najdete
Využít program Bydlím hned, koupím později
Stále hledáte to pravé?
Nastavte si hlídacího psa. Nabídky vybrané na míru dostanete souhrnně 1× denně e-mailem. S Premium profilem máte k ruce hlídačů rovnou 5 a když se něco objeví, informují vás obratem.
























