
Prodej bytu 3+kk • 70 m² bez realitky, Hessen
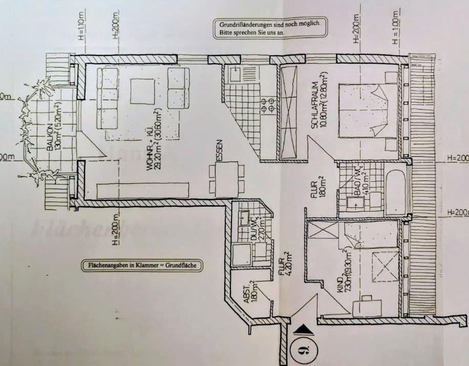
, HessenMHD 1 minuta pěšky • ParkováníJe k prodeji pečlivě udržovaný a stylový 3,5-pokojový byt s galerií a obytnou plochou přibližně 70 m². Díky promyšlenému půdorysu se byt představuje jako opravdové prostorové zázrak, který využívá dostupný prostor na maximum.
Prostorný obývací a jídelní kout s integrovanou galerií vytváří vzdušný pocit bydlení a nabízí mnoho způsobů využití. Balkon orientovaný na jih zajišťuje spoustu denního světla a láká k odpočinku.
Jedinečným zážitkem je krásný výhled do západně položeného regionu Taunus až k Feldbergu, který je příjemný jak z kuchyně, tak z oken ve střeše, což bytu dodává výjimečnou kvalitu bydlení.
Obě koupelny byly modernizovány v roce 2024. Navíc byly v roce 2024 aktualizovány hlavní kuchyňské spotřebiče a dva centrální topné tělesa. Střešní okna jsou rovněž nová a disponují dvojitým izolačním zasklením.
Dva parkovací stání přímo před domem dokončují tuto atraktivní nabídku a jsou k zakoupení za 12 500 € za kus.
V suterénu má kupující kromě uzavřeného sklepního prostoru také k dispozici místnost pro kola a prádelnu.
Struktura bydlení a spoluvlastnictví:
Nemovitost zahrnuje několik domů s celkem 42 jednotkami.
V samotném domě bydlí 9 jednotek.
Vysoké rezervy zajišťují finanční bezpečnost a bezstarostné vlastnictví.
Vybavení a přednosti:
- 3,5 pokoje s galerií
- Přibližně 70 m² obytné plochy
- Balkon orientovaný na jih
- Dvě modernizované koupelny
- Modernizované kuchyňské spotřebiče (AEG)
- Světlý, otevřený dispozice
- Dvě parkovací stání přímo před domem
Předání bytu je možné k červnu 2026, což nabízí jistotu plánování jak pro vlastníky, tak i zajímavou perspektivu pro investory.
Byt se nachází na adrese Ebertstraße 30e, 63165 Mühlheim am Main, v ustálené a klidné obytné oblasti nedaleko historického jádra města. Obchody pro každodenní potřeby, školy, mateřské školy i ordinace lékařů se nachází v blízkosti a jsou pohodlně dosažitelné pěšky.
Dopravní spojení veřejnou dopravou a dostupnost okolních měst Offenbach, Frankfurt am Main a Hanau jsou velmi dobré, což činí lokalitu atraktivní jak pro dojíždějící pracovníky, tak pro rodiny.
• Autobusová zastávka 200 m, s přímým spojením do Offenbach/S-Bahn OF-Ost
• Stanice S-Bahn Mühlheim a.M. cca 1500 m
• Břeh řeky Main cca 600 m
V okolí nemovitosti najdete
Stále hledáte to pravé?
Nastavte si hlídacího psa. Nabídky vybrané na míru dostanete souhrnně 1× denně e-mailem. S Premium profilem máte k ruce hlídačů rovnou 5 a když se něco objeví, informují vás obratem.

























