
Prodej domu • 481 m² bez realitkyHamburg Bergedorf Hamburg 21029
Hamburg Bergedorf Hamburg 21029MHD 1 minuta pěškyPopis objektu
Na prodej je balík šesti pronajatých bytů ve vícepodlažním domě.
Dobře udržovaný dům byl připraven k nastěhování v roce 1994, centrální plynové topení bylo obnoveno v roce 2016. Teplá voda je ohřívána průtokovým ohřívačem (započítáno do energetického průkazu).
Byty jsou plně pronajaty, aktuální roční čistý nájem činí 52.832 €. Nájemné může být ke dni prosince 2026 zvýšeno na 60.757 €.
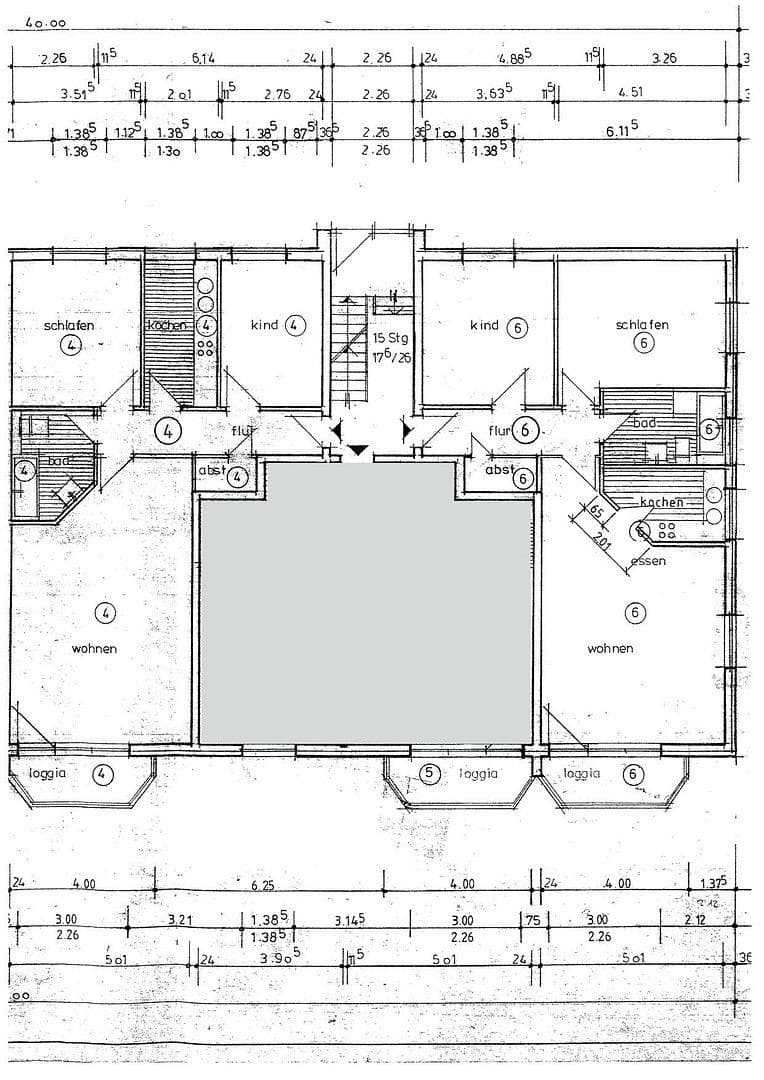
Rozložení místností
Byty mají obytné plochy přibližně 82 m2 (4x) a přibližně 76 m2 (2x). Všechny se jedná o 3-pokojové byty s kuchyní, koupelnou, skladovou místností, chodbou a sklepním prostorem. (Od každého z ukázaných půdorysů jsou dvě byty, částečně zrcadlené.)
Kvůli ochraně soukromí nájemníků ukazují fotografie nedávno rekonstruované byty se stejným vybavením ve stejném domě během poslední výměny.
Koupelny a kuchyně jsou obloženy dlažbou, zbývající místnosti jsou u jednotlivých bytů vybaveny laminátem nebo kobercem. Byty jsou orientovány na sever a jih, byty se štíty jsou navíc orientovány na západ či východ. Všechny kromě dvou menších bytů, které se nacházejí v nejvyšším patře, mají na jižní straně balkon.
Další byty ve stejné družstvu můžete zakoupit dodatečně.
Bez provize od soukromého vlastníka.
Poklidná lokalita na cyklistické ulici v Bergedorfu.
Parametry nemovitosti
| Stáří | Nad 50 let |
|---|---|
| Číslo inzerátu | 985791 |
| Užitná plocha | 481 m² |
| Stav | Dobrý |
|---|---|
| PENB | C - Úsporná |
| Cena za jednotku | 3 087 € / m2 |
Co tato nemovitost nabízí?
| MHD 1 minuta pěšky |
V okolí nemovitosti najdete
Stále hledáte to pravé?
Nastavte si hlídacího psa. Nabídky vybrané na míru dostanete souhrnně 1× denně e-mailem. S Premium profilem máte k ruce hlídačů rovnou 5 a když se něco objeví, informují vás obratem.














