
Prodej domu • 227 m² bez realitkyTainger Straße 15f Pastetten Zeilern Bayern 85669
Tainger Straße 15f Pastetten Zeilern Bayern 85669MHD 1 minuta pěšky • Parkování • GarážDům byl postaven v základním způsobu z cihel. (Cihly Proton T8 36,5 cm s výplní z kamenné vlny).
Sklepní podlaha je izolována Styrodurem o tloušťce 16 cm a sklepní vnější stěny jsou rovněž zatepleny.
Odhalená střešní konstrukce s nadložnicovým zateplením od firmy Bauder PIR ST, oboustranně hliníkově potažená, se spojovacím systémem drážka/hřeben (Nut und Feder) s WLS 0,24, tloušťka 160 mm, U-hodnota 0,14.
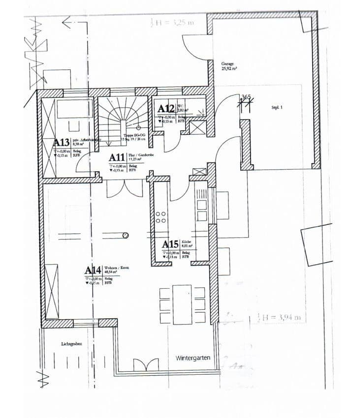
Zdivaná garáž s odhalenou střešní konstrukcí má suchý přístup do vstupní haly domu.
Srdcem tohoto domu je světlá zimní zahrada s obytným/jídelním prostorem.
V obytném/jídelním prostoru je připravená přípojka pro krb na pevná paliva v nerezovém provedení.
Na hranici pozemku na severozápadní straně se nachází 2 m vysoká gabionová zeď.
Dvojdům se nachází v obci Pastetten, v části Zeilern, v klidné venkovské a zelené lokalitě.
Na místě jsou dětská jesle, školka, základní škola, lékař, banka, řeznictví, pošta a spolky.
Další informace o obci Pastetten naleznete na adrese http.
Dopravní spojení:
– 2 km do dálnice A94
– 5 km do Markt Schwaben (S2, DB, autobus 505)
– 20 autominut do okrajů Mnichova
– 25 km na letiště
Vysoce kvalitní vzduchové/tepelná čerpadlo umožňuje vytápění, případně v létě chlazení pomocí podlahového topení.
Podlahové topení je instalováno v celém domě, včetně hobby místnosti.
V přízemí a koupelnách se nachází vysoce kvalitní dlaždice od firmy V&B.
V pokojích je podlahová krytina tvořená olejovaným dubovým parketovým podlahovým dílem.
Vysoce kvalitní povrchová úprava z granitu zdobí jižní terasu, jižní balkón a severozápadní stranu domu.
Přeměna dvora na dětskou zahradu by byla možná.
Na další dotazy jsem vám kdykoli k dispozici.
Termíny prohlídek jsou domluvitelné.
Prodej probíhá soukromě, bez provize.
Prosím, žádné poptávky od makléřů.
Parametry nemovitosti
| Stáří | Nad 50 let |
|---|---|
| Číslo inzerátu | 994560 |
| Užitná plocha | 227 m² |
| Celkem podlaží | 4 |
| Stav | Novostavba |
|---|---|
| PENB | A - Mimořádně úsporná |
| Plocha pozemku | 286 m² |
| Cena za jednotku | 4 361 € / m2 |
Co tato nemovitost nabízí?
| Balkón | |
| Garáž | |
| Parkování | |
| Terasa |
| Sklep | |
| MHD 1 minuta pěšky |
V okolí nemovitosti najdete
Stále hledáte to pravé?
Nastavte si hlídacího psa. Nabídky vybrané na míru dostanete souhrnně 1× denně e-mailem. S Premium profilem máte k ruce hlídačů rovnou 5 a když se něco objeví, informují vás obratem.






















