
Prodej bytu 2+1 • 60 m² bez realitkyBoschetsrieder Str. 63 München Obersendling Bayern 81379
Boschetsrieder Str. 63 München Obersendling Bayern 81379MHD 2 minuty pěšky • Výtah • Parkování • GarážVítejte ve vašem stylově zmodernizovaném 2-pokojovém bytě v žádané mnichovské čtvrti Thalkirchen!
Tato nadčasová nemovitost z 90. let se nachází ve 2. patře velmi udržované obytné budovy a oslní harmonickou kombinací pohodlí, světla a městské kvality života.
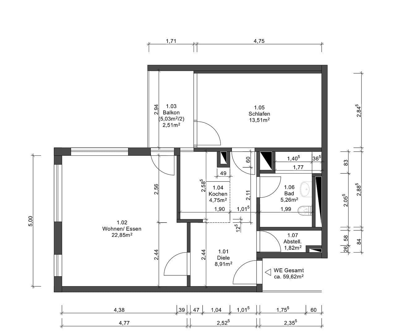
Už při vstupu cítíte příjemnou atmosféru domova: velká okna až od podlahy v obývacím pokoji vytvářejí ohromně světlé prostředí a propůjčují bytu otevřený a přívětivý pocit z prostoru.
Zvláštním lákadlem je kompletně nově zrekonstruovaná koupelna, která nejenže vizuálně okouzlí svými luxusními armaturami a moderním vybavením, ale také poskytuje maximální komfort.
Okolí rovněž nese své ovoce: klidná, ale přesto centrální obytná budova se může pochlubit špičkovou infrastrukturou. Pouhých přibližně 5 minut chůze odtud se dostanete na stanici metra, takže je centrum Mnichova snadno a rychle dostupné.
Osobní výtah vás pohodlně dopraví z přiděleného místa v podzemní garáži až přímo ke dveřím bytu. K dispozici je také samostatný sklepní prostor.
Byt je momentálně spolehlivě pronajatý a dosahuje měsíční čisté nájemné 1 760 €, což jej činí nesmírně atraktivním pro investory.
Lokalita – Městská dostupnost, zeleně obklopená
Ulice Boschetsriederstraße patří mezi nejoblíbenější adresy na jihu Mnichova – a zvláštním způsobem spojuje městskou dynamiku s příjemným klidem.
Jedním z klíčových kvalit této lokality je chráněný, zeleň zasazený vnitřní dvůr, který obyvatelům poskytuje soukromou oázu úniku. Vzniká zde pocit bydlení, který se v Mnichově stal vzácností: uvolněný, klidný a zároveň v centru dění.
Vynikající dopravní spojení
Stanice metra a příměstské dráhy (S-Bahn) jsou dosažitelné za pár minut chůze a zajišťují rychlé, přímé spojení jak s centrem Mnichova, tak s celým městem. I autem těžíte z optimální dostupnosti prostřednictvím středního okruhu a okolních dálnic.
Nejlepší infrastruktura přímo v okolí
Místní obchodní služby jsou pohodlné a rozmanité:
Supermarkety, pekárny, lékárny a další možnosti nákupu se nacházejí v bezprostřední blízkosti. Nabídku doplňuje atraktivní výběr restaurací, kaváren a místních trhů, což činí čtvrť živou a autentickou.
Kvalita života pro všechny generace
Kombinace zelených útočišť, ustáleného sousedství a městské infrastruktury činí z Boschetsriederstraße prvotřídní lokalitu pro bydlení pro všechny věkové skupiny – ať už jste majitelé nebo investoři.
Štědré okna až od podlahy v obývacím pokoji
Pro výjimečně světlé prostředí s dostatkem denního světla a pocitem otevřeného prostoru.
Slunný balkon s přístupem z obývacího nebo ložnice
Ideální pro uvolněné chvíle venku – flexibilně využitelný a harmonicky začleněný do konceptu bydlení.
Centrální plynové topení s klasickými radiátory
Efektivní a osvědčená technologie vytápění s spolehlivým zásobením teplem.
Laminátová podlaha ve vysoce kvalitní parketové podobě
Snadno udržovatelná, odolná a vizuálně atraktivní – spojuje estetiku s praktickým využitím.
Moderní sprchová koupelna s WC
Funkční a současně navržená – přehledně strukturovaná a pohodlně využitelná.
Otevřeně integrovaná vestavěná kuchyň
Harmonicky začleněná do obytného prostoru – ideální pro společenské bydlení a optimální využití prostoru.
Osobní výtah s přímým přístupem do podzemní garáže
Pohodlný přístup k bytu – bez bariér a usnadňující každodenní život.
Duplexní místo v podzemní garáži
Chráněné parkování v domě – zejména v Mnichově představuje zásadní výhodu lokality a hodnoty (plus 19 500 EUR).
V okolí nemovitosti najdete
Stále hledáte to pravé?
Nastavte si hlídacího psa. Nabídky vybrané na míru dostanete souhrnně 1× denně e-mailem. S Premium profilem máte k ruce hlídačů rovnou 5 a když se něco objeví, informují vás obratem.


















