
Pronájem bytu 3+1 • 87 m² bez realitkyDorfstraße 11b Germering Germering Bayern 82110
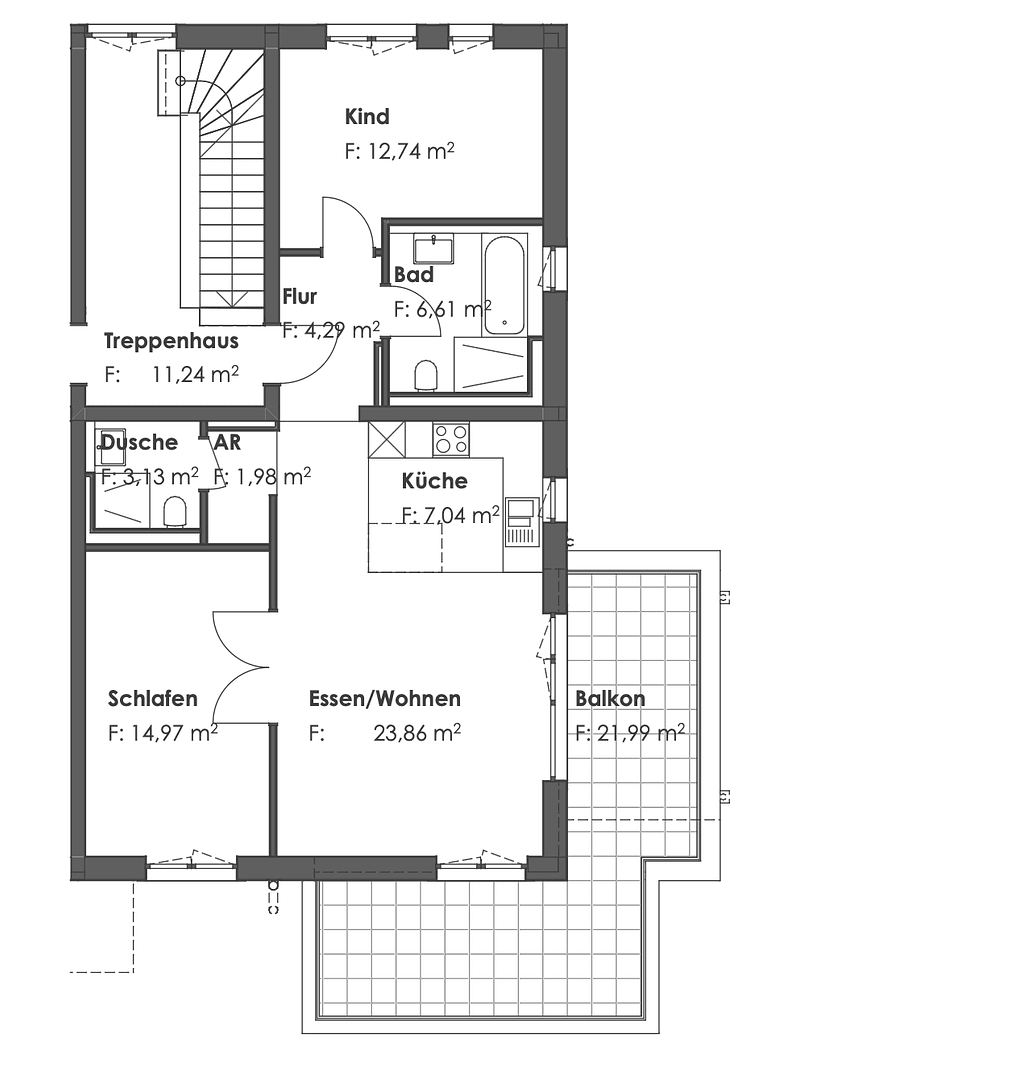
Dorfstraße 11b Germering Germering Bayern 82110MHD 1 minuta pěšky • GarážTato luxusně vybavená bytová jednotka disponuje moderní koupelnou a samostatnou sprchou, dvěma hezkými ložnicemi a prostorným, otevřeným obývacím prostorem. Balkon zve k posezení.
Byt je postaven podle nejnovějších standardů energetické účinnosti a vybaven decentralizovaným ventilačním systémem, který zajišťuje příjemné a zdravé obytné klima.
Bytový dům se nachází na Vesnické ulici a nabízí dobré spojení jak do centra města, okolí, tak i do Mnichova.
V vybavení najdete sklep, úložný prostor a parkovací místo v podzemní garáži.
- cca 20 km od Mnichova
- dobré spojení na dálnici A99 a silnice B2 a B471
- masivní zdivo
- vysoce kvalitní okna s trojitým tepelně izolačním zasklením
- elektrické hliníkové rolety
- koupelny a chodby s kvalitními dlaždicemi
- obytný i ložnicový prostor a kuchyň s designovými podlahami
- vstupní dveře bytu s protihlukovou Ex-izolací a zorníkem
- elektrická vstupní garážová vrata s dálkovým ovladačem
- přípojka pro pračku umístěná ve vlastním sklepním prostoru
- využití geotermální energie
- celoplošné podlahové topení včetně místnostních termostatů
- decentralizovaný ventilační systém
- zvonkový systém s možností vzájemné komunikace
V okolí nemovitosti najdete
Stále hledáte to pravé?
Nastavte si hlídacího psa. Nabídky vybrané na míru dostanete souhrnně 1× denně e-mailem. S Premium profilem máte k ruce hlídačů rovnou 5 a když se něco objeví, informují vás obratem.








