
Prodej bytu 4+1 • 143 m² bez realitky, Bádensko-Württembersko
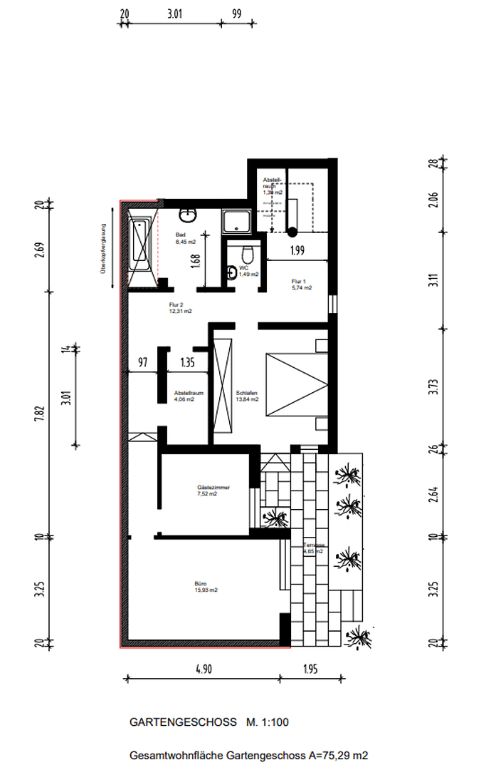
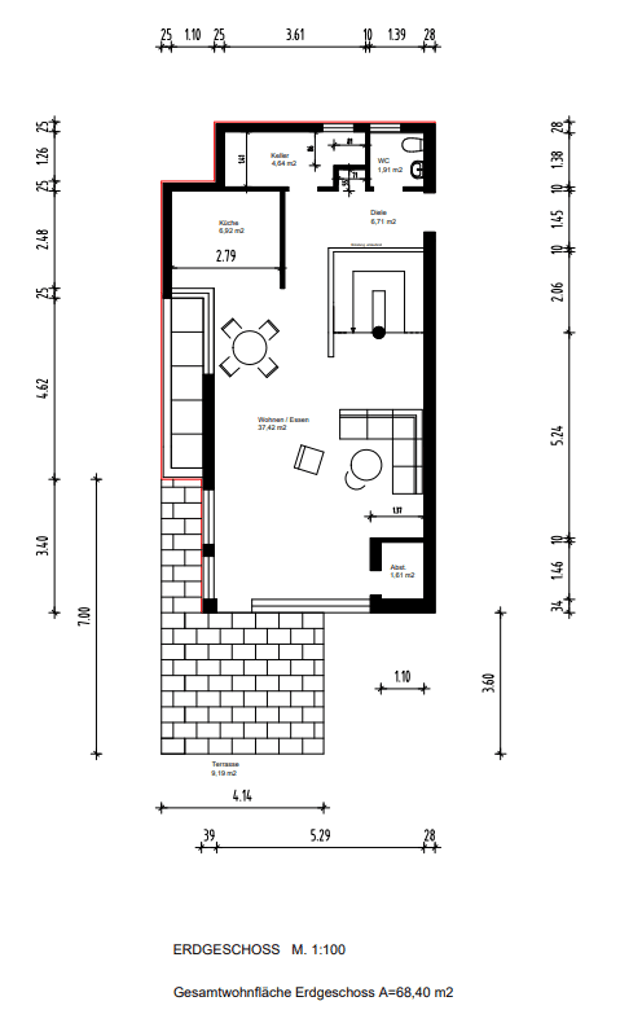
, Bádensko-WürttemberskoMHD 2 minuty pěšky • Parkování • GarážTato světlá a skvěle udržovaná duplexová (Maisonette) část bytu o přibližně 144 m² obytné plochy (zahradní podlaží 75 m² + přízemí 68 m²) se nachází v malém bytovém domě s pouhými 6 byty v Deufringen (Aidlingen). Je téměř jako „dům v domě“.
Bylo postaveno v roce 1993, má 4–5 pokojů, je ve velmi dobrém stavu, vlastní zahrada (cca 90–100 m² / výhradní užívací právo), 2 terasy, garáž a 2 parkovací místa.
Společenství vlastníků (395,50 €/měsíc + rezerva na údržbu 104,50 €/měsíc) bylo v roce 2026 mírně navýšeno, ale již se plánuje jeho snížení.
Správa domu disponuje solidním finančním zázemím ve výši přibližně 48 000 € (včetně rezerv na údržbu).
Volný od dubna 2026. Bez poplatku pro kupující.
Na slunném jižním svahu v nejlepší lokalitě s nezastavitelným panoramatickým výhledem do přírody – ideální pro vyznavače dobrého života.
V okruhu 5 km: lékárna, diskontní obchody (Netto/REWE), praktický lékaři, mateřská škola, základní/střední škola, gymnázium, autobusy (vlakové spojení Böblingen/Renningen).
Klid naprostý, ale přesto centrálně v Aidlingen/Deufringen.
- Kuchyň s vestavěným zařízením
- XXL vana + samostatná sprcha (v horním patře)
- 2 WC (přízemí a horní patro)
- Podlahové vytápění (v obytné části)
- Všechna okna s elektronickými žaluziemi
- 2 terasy, jedna z nich s markýzou
- Pěkná soukromá zahrada o rozloze cca 90–100 m² s cca 35 m² trávníkovou plochou (exkluzivní užívací právo) a vlastním skříněm na zahradní nástroje
- Parkovací místo v garáži s dalším místem přímo před garážovými vraty a třetím parkovacím místem (šířka 2,25 m)
Rekonstruováno:
- V roce 2023 nová topení na olej (digitální odečet)
- Fasáda a okna zrekonstruovány v roce 2018
- Zahrada byla profesionálně, ale nenáročně zrekonstruována
V současnosti nejsou plánovány žádné renovace/investice.
Domácí komora, sklepní a úložné prostory se nacházejí v bytě a mimo byt vlastní skříň pro zahradní nářadí. Prostor na kola a místnost na odpadky jsou ve společných prostorách domu.
Byt je od svého vzniku obýván pouze vlastníkem a nyní je prodáván kvůli plánovanému stěhování.
Pro soukromé kupce bez provize, prodej formou dražby (vítány férové nabídky). Renovace nejsou plánovány. Energetický průkaz je k dispozici.
V okolí nemovitosti najdete
Stále hledáte to pravé?
Nastavte si hlídacího psa. Nabídky vybrané na míru dostanete souhrnně 1× denně e-mailem. S Premium profilem máte k ruce hlídačů rovnou 5 a když se něco objeví, informují vás obratem.





























