
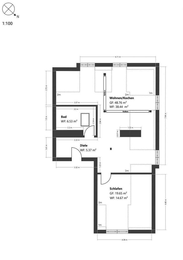
Prodej bytu 2+1 • 65 m² bez realitkyMünchen Isarvorstadt Bayern 80337
München Isarvorstadt Bayern 80337MHD do minuty pěškyTento světlý, prosvětlený byt ve stylu loft se nachází pod střechou okouzlující historické budovy.
Skutečným klenotem jsou velké půdní okna (lucerny) a otevřený obývací a jídelní prostor, který je vizuálně oddělen trámovými prvky a krbem. Na míru vyrobená kuchyň sestávající z bílých vestavěných elementů, kombinovaných s černou žulovou pracovní deskou a podlahou, působí nadčasově elegantně a bezproblémově zapadá do obytné části.
Ložnice s výhledem na vnitřní dvůr obsahuje velkou šatní skříň, která je setřeseně zabudovaná pod šikmou střechou, a také velké okno.
Byt dále disponuje sklepním kómorem a malým podkrovním prostorem přístupným přímo z bytu, kde lze pohodlně uskladnit menší věci.
Byt byl v únoru 2026 kompletně nově natřen.
Živý a odpočinkový
Okolí se vyznačuje množstvím kvalitních restaurací, stylových kaváren a exkluzivních butiků, stejně jako renomovanými kulturními zařízeními.
Blízká řeka Isar nabízí klidné útočiště a prvotřídní volnočasové možnosti. Sousedsí oblast Glockenbach Viertel zase zaručuje živou a náročnou nabídku volnočasových aktivit a gastronomie.
Výborné spojení s veřejnou dopravou, včetně stanic metra a autobusových linek, umožňuje rychlé spojení do všech částí Mnichova, přičemž letiště v Mnichově je se spojem S8 dosažitelné za méně než hodinu.
Moderní byt s promyšleným otevřeným konceptem se nachází ve čtvrtém patře nádherného historického domu. Okna byla v roce 2012 v souladu s požadavky ochrany památek vyměněna za nová dřevěná okna (dvouvrstvá skla).
Koupelna byla v roce 2015 kompletně zrekonstruována a je vybavena velkou dešťovou sprchou, přičemž je zde také vodovodní připojení pro pračku. Automaticky zavírající se střešní okno bylo rovněž instalováno.
Nemovitost je ihned k nastěhování a může být převzata bez provize přímo od vlastníka.
Přijímáme pouze poptávky s předloženým potvrzením o financování z banky.
V okolí nemovitosti najdete
Stále hledáte to pravé?
Nastavte si hlídacího psa. Nabídky vybrané na míru dostanete souhrnně 1× denně e-mailem. S Premium profilem máte k ruce hlídačů rovnou 5 a když se něco objeví, informují vás obratem.
















