
Prodej domu 5+1 • 228 m² bez realitky15KM GRAZ EXKLUSIV NUR FÜR DANWOOD-HAUSBAU Kohldorf Steiermark 8323
15KM GRAZ EXKLUSIV NUR FÜR DANWOOD-HAUSBAU Kohldorf Steiermark 8323MHD 2 minuty pěškyEfektivita potkává emoční inteligenci!
Vision by Danwood představuje architekturu s postojem. Je určena pro lidi, kteří nesou odpovědnost a dokáží hodnoty učinit viditelnými.
Každý dům vzniká dle architektonicky náročného konceptu: jasný v projevu, precizní ve zpracování, bez kompromisů co do kvality.
Pro vůdčí osobnosti, které nejen staví, ale také tvoří – s předáním, stylem a podstatou.
Na vašem pozemku nebo v…
Güssing: Přibližně 2 600 m², lokalita zcela rovinatá. Velikosti pozemků a jejich umístění jsou volně vybíratelné – od 500 m² do 1500 m².
Zde jsou stavební pozemky prvotřídní kvality! V nejlepší lokalitě a s ohromujícím výhledem na nádherný hrad Güssing!
Güssing nabízí perspektivní, cenově dostupný a energeticky nezávislý život v přírodě, což činí investici do nemovitosti zde strategickou hodnotovou investicí.
Proč Güssing
Energetický průkopník a udržitelnost:
Město je energeticky soběstačné a mezinárodně uznávané.
Vysoké pokrytí (více než 85 %) regionálním dálkovým vytápěním z biomasy zajišťuje stabilní a nízké náklady na vytápění.
Dostupné ceny nemovitostí:
Ceny jsou stále výrazně nižší než průměr v Rakousku, což umožňuje splnění snu o vlastním domě s prostornými pozemky.
Silná infrastruktura a kvalita života:
Jako předměstí okresního centra garantuje Güssing krátké vzdálenosti a nejlepší zázemí.
Plánované velké investice:
Nový vzdělávací kampus a moderní lékařské centrum (od roku 2026).
Kulturní centrum (hrad Güssing) a blízkost termálních lázní.
Úplné otevření S7 přináší významné výhody pro Güssing a jeho obyvatele:
Rychlejší spojení s metropolitními oblastmi: Rychlostní silnice výrazně zkracuje dobu dojíždění k dálnici A2 jižní, čímž se výrazně sníží doby cest do Grazu a Vídně.
Odlehčení regionu: Nová trasa odkloní tranzitní dopravu, která dříve zatěžovala obce jako Fürstenfeld a Rudersdorf.
Ekonomické impulzy: Nové spojení, mimo jiné přes přípojku u Rudersdorf/Dobersdorf a blízkost spojení Königsdorf, posiluje Güssing jako předměstí okresního centra a ekonomické místo díky lepší dostupnosti a podpoře nových průmyslových zón.
Stabilita hodnoty a rozvojový potenciál:
Cílené komunální investice do infrastruktury, oživení městského centra a technologického centra zajišťují dlouhodobou stabilitu hodnoty nemovitostí.
Komunální strategie je zaměřena na zvládání demografických výzev a na etablování Güssingu jako atraktivního místa k životu a podnikání.
Cílová skupina
Rodiny hledající budoucnost, bezpečí a přírodu, stejně jako všichni, kdo kladou důraz na nízké náklady na energii a ekologickou odpovědnost.
Další pozemky v:
Pozemek, 8323 Kohldorf: Stavební pozemek se spoustou slunce v východním Štýrském kopcovitém terénu, 15 km od Grazu!
Velikost: 758 m², kupní cena: €66 000, --
Pozemek, 8323 Kohldorf: Slunný stavební pozemek v Kohldorfu, 15 km východně od Grazu!
Velikost: 787 m², kupní cena: €69 000, --
Pozemek, 8311 Markt Hartmannsdorf: Plně inženýrsky zajištěný, slunný stavební pozemek v Markt Hartmannsdorf.
Velikost: 920 m², kupní cena: €53 000, --
Pozemek, 9335 Lölling Graben: Stavební pozemek s úžasným výhledem do dálky v malebném karintském horském prostředí.
Velikost: 1001 m², kupní cena: €50 000, --
Pozemek, 8075 Hart bei Graz: Slunný pozemek u bran Grazu.
Velikost: 1980 m², kupní cena: €475 000, --
Pozemek ke koupi ve Stainzu: Slunný pozemek na okraji obce Stainz.
Velikost: 825 m², kupní cena: €149 000.
Není žádné ekonomické propojení mezi vlastníkem pozemku a stavitelem domu.
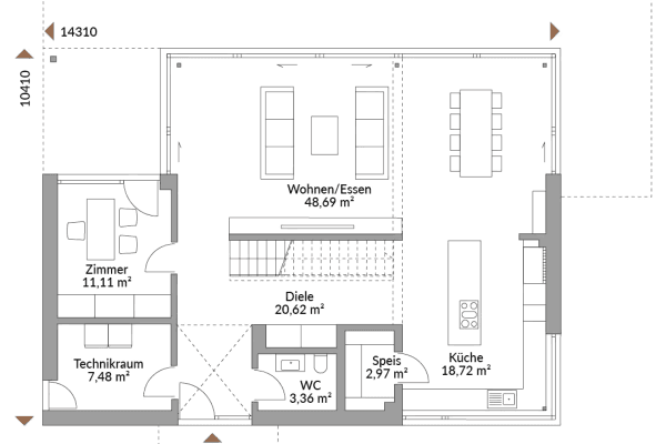
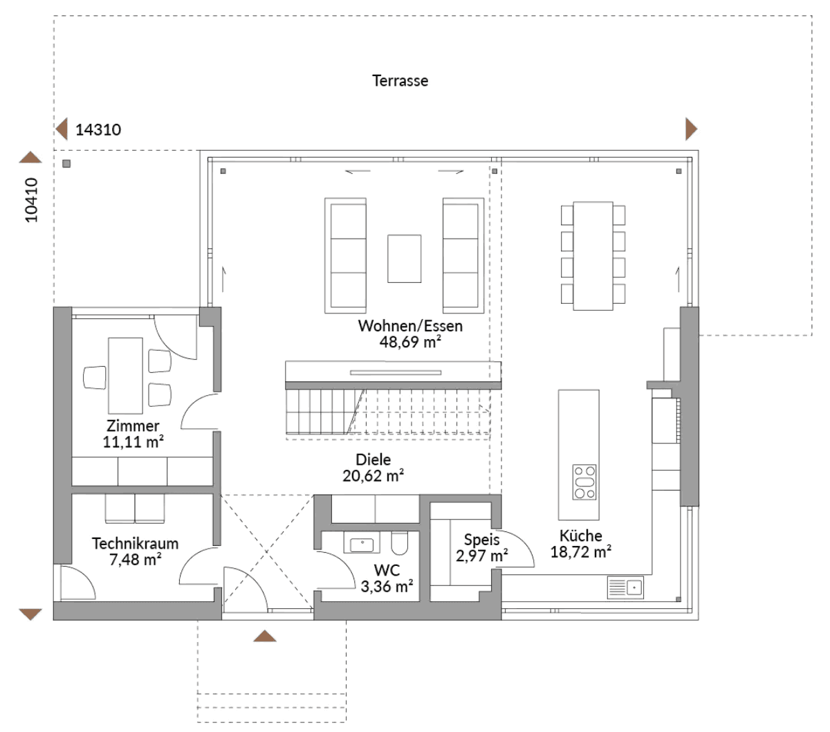
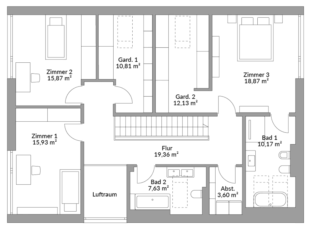
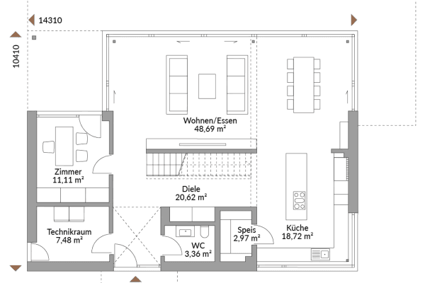
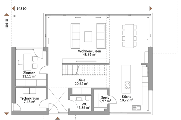
VISION – Dům na klíč s popisem stavebních a desempenho prací – Domy na základové desce!
Rozsah služeb
STROPNÍ VÝŠKA: Přízemí 3,05 m, podkroví 2,67 m
Technika
Technologie, která usnadňuje bydlení
Technologický balíček Today 3BL kombinuje moderní technologii tepelných čerpadel s velkorysým zásobníkem teplé vody a inteligentním ventilačním systémem. Výsledek: domov, který se automaticky stará o příjemné vnitřní klima – teplý v zimě, svěží v létě, efektivní po celý rok. Podlahové vytápění zajišťuje útulné teplo v každé místnosti, zatímco centrální větrání s rekuperací tepla šetří energii a zároveň poskytuje neustále čerstvý vzduch. Technologický balíček, který dokonale propojuje komfort, efektivitu a budoucí jistotu.
Elektrické rolety:
Rolety od DANWOOD jsou perfektním doplňkem k energeticky úsporné stavbě DANWOOD. Chrání před přehřátím v létě, udržují teplo v zimě a vždy zajišťují soukromí a bezpečnost. S elektrickým ovládáním nebo chytrým řízením jsou pohodlné a intuitivní – pohodlí, které pocítíte každý den. Jednoduše řečeno, u DANWOOD jsou rolety volitelným, ale technicky dokonale integrovaným prvkem – elektrické, odolné a ideální pro moderní architekturu.
Instalace sanitárního vybavení:
Sprcha – bezpečná, pohodlná a ideální pro děti i dospělé
Závěsné WC – snadno se čistí, hygienické, vhodné pro rodiny
Umyvadlo
Vysoce kvalitní armatury – odolné, snadno ovladatelné, teplotně stabilní
Volitelné, dle modelu:
• Vana – perfektní pro děti, odpočinek nebo společné večerní rituály
• Dvojité umyvadlo – žádné natrhání každé ráno
• Vestavěné armatury – bezpečné, elegantní, snadno se čistí
Všechno je navrženo tak, aby usnadnilo každodenní život a zároveň zůstalo krásné po dlouhou dobu.
Malířské práce:
Stěny a stropy – připraveno k nastěhování. Všechny vnitřní stěny a stropy jsou standardně zhotoveny na klíč. To znamená:
• Hladké, omyté a broušené povrchy
• Finální bílá vrstva v kvalitní disperzní barvě
• Čistý, rovnoměrný vzhled ve všech obytných prostorách. DANWOOD již dodává hotový povrch
• Žádné viditelné spoje či přechody díky průmyslové preciznosti
Díky tomu je dům okamžitě obyvatelný, aniž by byly nutné dodatečné malířské práce.
Vinyl/Laminát/Obklady:
Obývací a ložnice – teplé, robustní, vítající!
Všechny obývací a ložnice jsou vybaveny kvalitními, nenáročnými podlahovými krytinami, které kombinují teplo, komfort a praktičnost pro každodenní život. Standardní provedení (závisí na modelu):
• Kvalitní designový vinylová podlaha s imitací dřeva
• Odolný, tichý a příjemný na nohy
• Ideální pro rodiny, domácí mazlíčky a každodenní použití
• Harmonie barevných odstínů (bělostná dub, přírodní dub, šedý dub – dle výběru v Design Center Pinkafeld)
Volitelně:
• Laminát v prémiové kvalitě
• Parkety z masivního dřeva (za příplatek)
• Alternativní designové linie (betonový vzhled, tmavá dřevitá optika, teplé přírodní tóny)
Poznámka: Všechny ceny domů jsou uvedeny od horní hrany základové desky. Ilustrace mohou zobrazovat volitelné speciální vybavení.
V okolí nemovitosti najdete
Stále hledáte to pravé?
Nastavte si hlídacího psa. Nabídky vybrané na míru dostanete souhrnně 1× denně e-mailem. S Premium profilem máte k ruce hlídačů rovnou 5 a když se něco objeví, informují vás obratem.
































