
Pronájem bytu 2+1 • 55 m² bez realitkyBydžovského, Praha - Malešice
Máte o nabídku zájem?
Ušetřete 20 990 Kč na provizi a komunikujte se všemi majiteli.
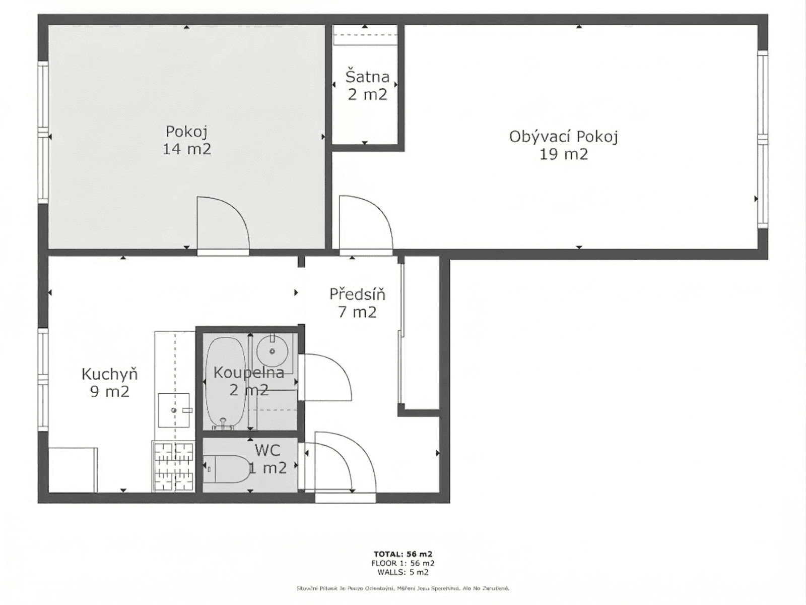
Dlouhodobě pronajmu prostorný a udržovaný byt 2+1 (55 m2) v Praze 10 – Malešicích s výbornou dostupností MHD. Byt se nachází ve třetím patře udržovaného, zatepleného panelového domu bez výtahu. V předsíni je velká skříň a prostor pro komody. V jednom pokoji je šatna. V koupelně je vana a příprava na pračku, WC je samostatné. Byt je po rekonstrukci a připravený k okamžitému nastěhování. Byt je velmi tichý, s hezkým, klidným výhledem. Byt je nevybavený – ideální pro ty, kteří si chtějí domov zařídit podle svého.
Hlavními výhodami je klidné bydlení, dobrá lokalita s veškerou občanskou vybaveností v docházkové vzdálenosti. Lokalita nabízí obchody, restaurace, kavárny, park a sportoviště.
Autobusová zastávka je vzdálena 2 minuty chůze se spojením na metro A - Želivského. Příští rok bude zprovozněna nová tramvajová trať do centra Prahy.
V okolí nemovitosti najdete
Máte o nabídku zájem?
Ušetřete 20 990 Kč na provizi a komunikujte se všemi majiteli.
Stále hledáte to pravé?
Nastavte si hlídacího psa. Nabídky vybrané na míru dostanete souhrnně 1× denně e-mailem. S Premium profilem máte k ruce hlídačů rovnou 5 a když se něco objeví, informují vás obratem.
















