
Prodej domu 5+1 • 173 m² bez realitkyIm Kisselfließ 15a, , Bádensko-Württembersko
Im Kisselfließ 15a, , Bádensko-WürttemberskoMHD 6 minut pěšky • Parkování • GarážKrátký profil
Kisselfließ 15
799.000 €
cca 173 m² obytné plochy
cca 272 m² pozemku
garáž + parkovací místo
________________________________
Následující základní údaje:
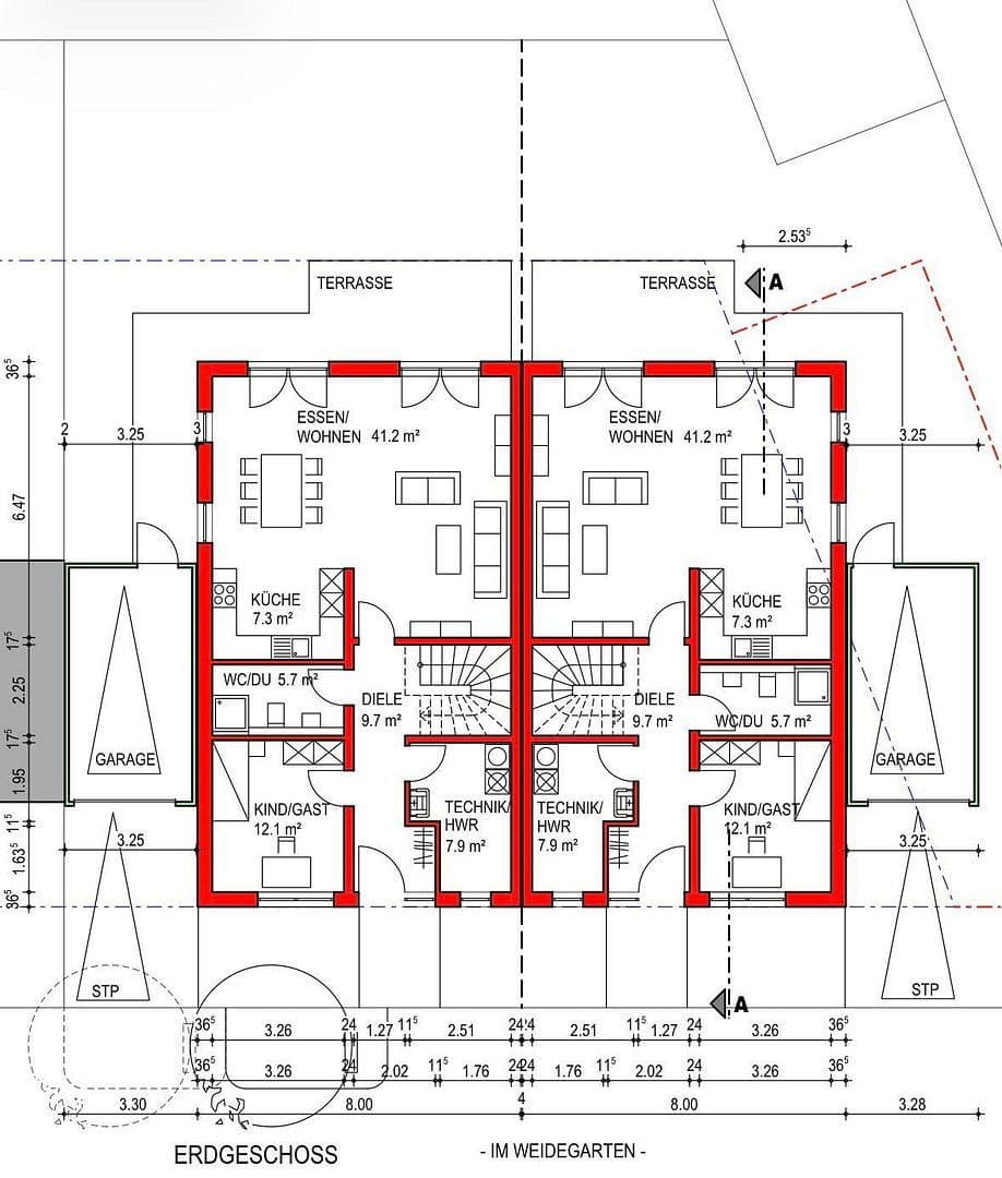
• 173 m² obytné plochy, novostavba, prvotní nastěhování
• 2 plné patro v masivní stavbě
• prostorný, světlý obývací/jídelní prostor s otevřenou kuchyní
• jižní terasa s pěkným výhledem
• 3 koupelny
• navíc pokoj v přízemí
• garáž s wallboxem + parkovací místo
• Daikin vzduchové/tepelná čerpadlo
• velká fotovoltaická elektrárna se 20 moduly
• podlahové vytápění
• okna Schüco sahající až k podlaze s trojitým zasklením
• elektrické rolety
• LAN připojení v každém pokoji
• bez provize přímo od vlastníka
________________________________
Krátký popis
Tyto dvě moderní polodvourodinné domy v Laudenbachu nabízejí přesně to, co hledá mnoho kupujících: spoustu prostoru, moderní technologie, vysokou energetickou účinnost a rodinně přívětivý půdorys.
Centrem domu je velký, otevřený obývací/jídelní prostor s otevřenou kuchyní a mnoha okny sahajícími až k podlaze. Díky tomu domy působí svěže, moderně a přívětivě. Jižní terasa rozšiřuje obytný prostor do venku a nabízí pěkný výhled na okolí.
Obzvlášť praktické: V přízemí se navíc nachází další prostorný pokoj a plně vybavená koupelna. Ideální pro home office, hosty nebo bydlení na jednom patře.
V patře vás čekají dva dětské pokoje s vlastní koupelnou a prostorná rodičovská zóna s ložnicí, šatnou a vlastní koupelnou.
________________________________
Takřka ihned k nastěhování s individuálním dokončením
Domy jsou ve velmi pokročilém stavu výstavby a jsou nabízeny jako téměř hotové novostavby.
Základní stavební a technické práce jsou již realizovány. Kupující tak získá moderní novostavbu, u které zbývá převážně pouze výběr viditelných povrchových úprav podle vlastního vkusu.
V podstatě se to týká:
• podlahových krytin
• dlažby do koupelen
• vnitřních dveří
• plotu a zeleň
Prodávající dále převezme:
• malířské práce
• zajištění terasy a příjezdové cesty/vjezdu na dvůr
• moderní zábradlí ke schodům
Na individuálně volitelné povrchové úpravy interiéru by měl být – podle výběru vybavení – počítán dodatečný rozpočet cca 30.000 € za dům.
V případě dotazů volejte:
0176-77107652
Nová výstavba – Kisselfließ I Laudenbach
V případě dotazů volejte:
0176-77107652
V okolí nemovitosti najdete
Stále hledáte to pravé?
Nastavte si hlídacího psa. Nabídky vybrané na míru dostanete souhrnně 1× denně e-mailem. S Premium profilem máte k ruce hlídačů rovnou 5 a když se něco objeví, informují vás obratem.































