
Prodej domu 5+1 • 173 m² bez realitkyIm Kisselfließ 15, , Bádensko-Württembersko
Im Kisselfließ 15, , Bádensko-WürttemberskoMHD 6 minut pěšky • Parkování • GarážStručný profil
Kisselfließ 15
799.000 €
přibližně 173 m² obytné plochy
přibližně 339 m² pozemku
Garáž + parkovací místo
________________________________________
Následující klíčové údaje:
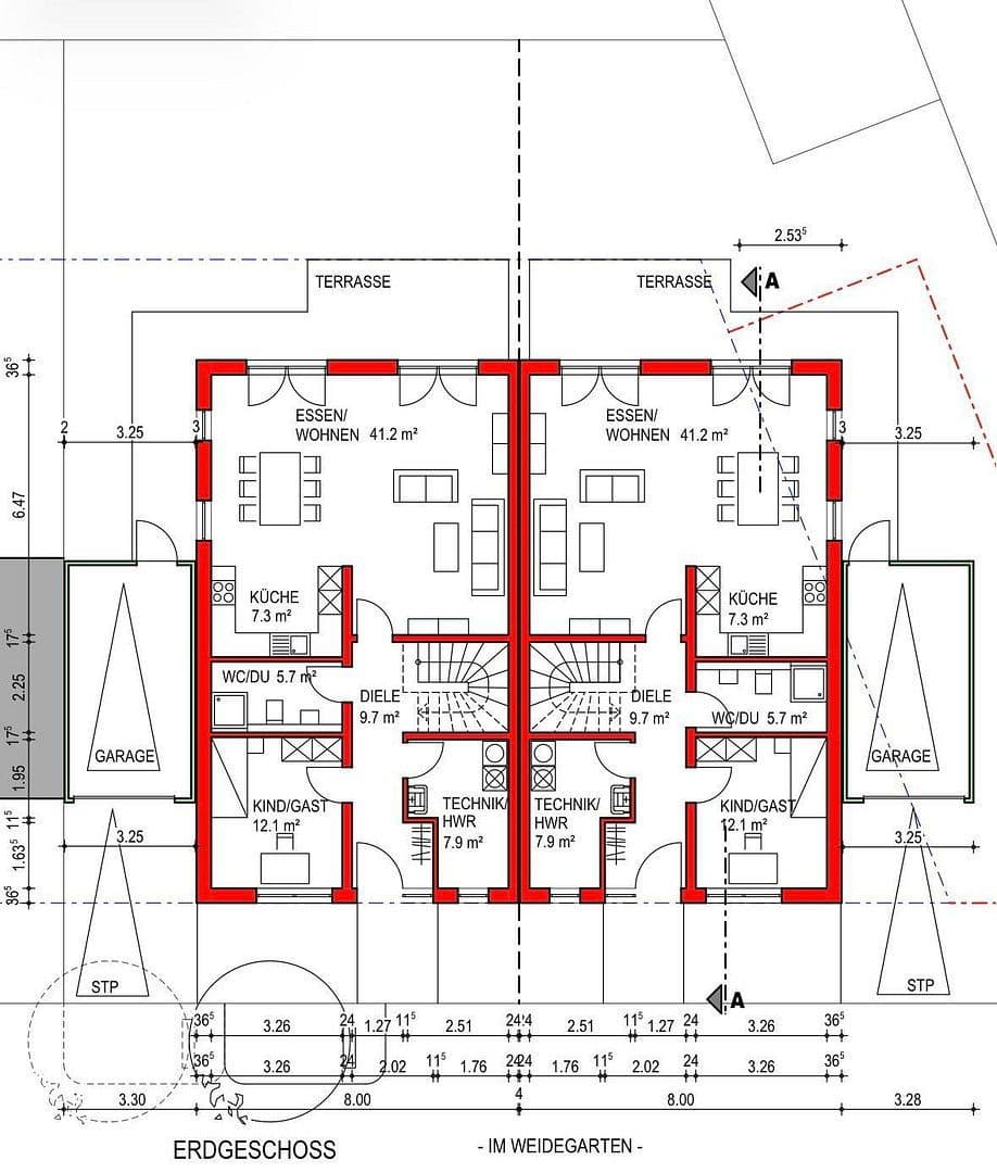
• 173 m² obytné plochy, novostavba, první obsazení
• 2 plně obytná podlaží v masivní stavbě
• prostorný, světlý obývací/jídelní prostor s otevřenou kuchyní
• jižní terasa s krásným výhledem
• 3 koupelny
• dále místnost v přízemí
• garáž s Wallboxem + parkovací místo
• Daikin vzduchové tepelné čerpadlo
• rozsáhlá fotovoltaická elektrárna s 20 moduly
• podlahové topení
• okna Schüco s podlahovou výškou, trojitým zasklením
• elektrické rolety
• LAN připojení v každé místnosti
• bez provize, přímo od vlastníka
________________________________________
Stručný popis
Tyto moderní dvojdomky v Laudenbachu nabízejí přesně to, co mnoho kupujících hledá: spoustu prostoru, moderní technologie, vysokou energetickou účinnost a rodinný půdorys.
Centrálním prvkem domu je velký, otevřený obývací/jídelní prostor s otevřenou kuchyní a mnoha okny od podlahy ke stropu. Díky tomu domy působí svěže, moderně a přívětivě. Jižní terasa rozšiřuje obytný prostor do exteriéru a nabízí krásný výhled do okolí.
Obzvláště praktické je, že v přízemí se nachází další velká místnost a plně vybavená koupelna – ideální pro home office, pro hosty nebo pro bydlení na jednom podlaží.
V horním patře vás pak čekají dvě dětské místnosti s vlastní koupelnou a prostorný rodičovský apartmán s ložnicí, šatnou a vlastní koupelnou.
________________________________________
Téměř ke stěhování s individuálním dokončením
Domy jsou ve velmi pokročilém stadiu dokončení a jsou nabízeny jako téměř hotové novostavby.
Základní stavební a technické práce již byly provedeny, takže kupující získá moderní novostavbu, u které zbývá prakticky vybrat pouze viditelné povrchy podle vlastního vkusu.
V zásadě se to týká:
• podlahových krytin
• dlaždic v koupelnách
• vnitřních dveří
• plotu a zeleni
Prodávající ještě zajistí:
• malířské práce
• zpevnění terasy a vjezdu na pozemek
• moderní zábradlí ke schodištím
Na individuálně volitelné dokončovací povrchy v interiéru by se – dle požadovaného vybavení – mělo počítat s další investicí cca 30.000 € na dům.
V případě dotazů volejte na číslo:
0176-77107652
Novostavba – Kisselfließ I Laudenbach
V případě dotazů volejte na číslo:
0176-77107652
V okolí nemovitosti najdete
Stále hledáte to pravé?
Nastavte si hlídacího psa. Nabídky vybrané na míru dostanete souhrnně 1× denně e-mailem. S Premium profilem máte k ruce hlídačů rovnou 5 a když se něco objeví, informují vás obratem.































