
Prodej bytu 2+1 • 56 m² bez realitkyMünchen Berg am Laim Bayern 81671
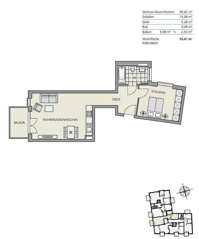
München Berg am Laim Bayern 81671MHD 3 minuty pěšky • Výtah • GarážProdává se náš naprosto vysoce kvalitní a světlý 2+kk byt v prvním patře u Ostparku s přímým spojením na metro a tramvaj (3 minuty pěšky). Celá budova ve vilovém stylu (přízemí, patro, podkroví) byla dokončena v roce 2017 a byla postavena velmi energeticky úsporně (energetická třída A).
Byt se skládá z velmi světlého obývacího pokoje orientovaného na západ s balkonem. Koupelna s oknem a ložnice jsou orientovány do klidného vnitrobloku s zelenou společnou zahradou. V obrovském sklepě se vejde spousta věcí. Byt je k dispozici od konce dubna.
Lokalita je perfektní. Nachází se přímo u Ostparku a je pěšky vzdálen pouze 3 minuty od nejbližší stanice metra a tramvaje. Východní nádraží je tak dostupné během pouhých 3 minut (2 zastávky). Zelená společná zahrada se nachází v klidné části a vybízí k grilování, hraní a odpočinku.
K bytu patří velmi kvalitní parkety, keramická dlažba, podlahové topení, elektrické rolety, nová klimatizace pro horké dny a wallbox (22 kW) přímo u širokého individuálně vyhrazeného parkovacího místa v podzemní garáži. Celý balíček doplňuje zcela nová kuchyňská linka od známé značky (duben 2026).












