
Prodej domu 5+1 • 173 m² bez realitkyOberhaching Oberhaching Bayern 82041
Oberhaching Oberhaching Bayern 82041MHD 1 minuta pěšky • Parkování • GarážModerní rohový dům postavený v roce 2019 se nachází v krásné a klidné části Deisenhofen v Oberhachingu. Nemovitost nabízí vysoký komfort bydlení, promyšlené dispozice a rodinné prostředí, což z ní činí ideální volbu pro rodiny. Dům je ve velmi dobrém stavu a připraven k okamžitému nastěhování – nejsou potřeba žádné rekonstrukční ani modernizační práce.
Dům je součástí udržované, angažované a rodinně orientované řadové osady. V okolí převážně žijí rodiny a sousedská komunita se vyznačuje velmi přátelským a ochotným soužitím.
K domu náleží venkovní parkovací místo s vlastní nabíjecí stanicí pro elektroauto a také místo v podzemní garáži (za příplatek 27 000 EUR).
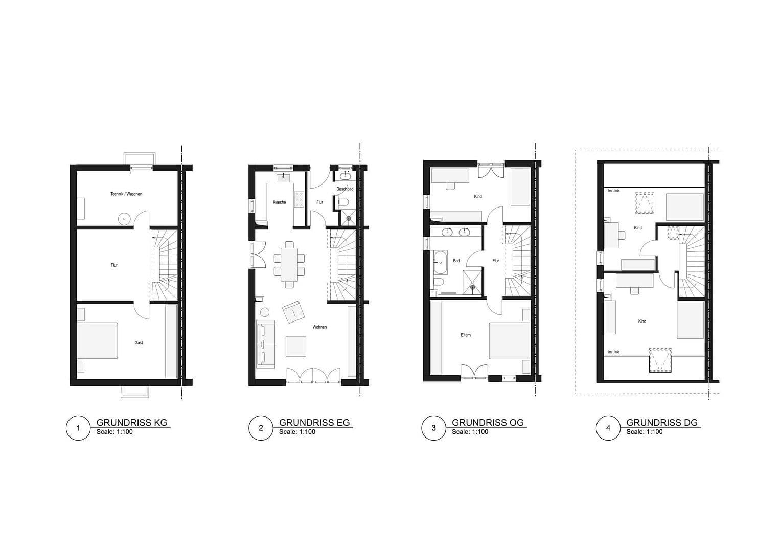
Díky orientaci a prostorným místnostem s výškou přibližně 2,65 m je dům obzvláště světlý. V přízemí najdete prostornou předsíň s přilehlou sprchou, která je vybavena kvalitním vestavným umyvadlem a bezzábradlovou sprchou. Obývací a jídelní část je otevřená a prostorná. Moderní a kvalitní vestavná kuchyně je integrovaná do prostoru a díky dvěma oknům je příjemně světlá. V obývacím prostoru je rovněž již připravena přípojka pro surround-sound systém.
Z obývacího prostoru vede vstup na slunnou terasu orientovanou na jihozápad a do pečlivě upravené, zelení prorostlé zahrady. Tato nabízí zahradní domek, písečnou bednu a dostatek místa pro grilování a hry, což poskytuje ideální podmínky pro rodiny.
V horním patře se nacházejí dvě prostorné ložnice, z nichž jedna má přístup na balkon směřující na jihozápad. Toto patro dále zahrnuje prostornou koupelnu s velkou bezpráhovou sprchou, vanou, dvěma umyvadly a kvalitní vestavnou skříňkou pod umyvadlem.
Zařízená půda nabízí další dvě světlé a dobře dispozicované místnosti s prostornými stropy, které lze flexibilně využít jako ložnici, pracovnu či pokoj pro hosty. V jedné z nich jsou na míru vyrobené kvalitní vestavby, které zajišťují optimální využití šikmých stropů.
Suterén rozšiřuje celkový prostor o velkou hobby místnost, chodbu s kvalitní vestavnou skříní pro další úložný prostor a prostornou prádelnu s kotelnou.
V docházkové vzdálenosti se nacházejí mateřské školy, základní škola, střední škola a nová FOS Oberhaching (školní kampus Oberhaching) a také možnosti nákupů. Gymnázium, střední odborná škola ekonomická a obchodní, lékaři, lékárny a další obchody jsou dosažitelné během pěti minut jízdy autem.
Autobusové zastávky jsou v bezprostřední blízkosti, přičemž stanice S-Bahn Furth a Deisenhofen jsou dostupné autobusem nebo během pěti minut jízdy autem.
Všechny obytné prostory (včetně suterénu) mají stropní výšku přibližně 2,65 m.
V celém domě jsou položeny elegantní dubové dřevěné podlahy; v předsíni, koupelnách a prádelně byly použity kvalitní keramické obklady.
Dům je vybaven několika truhlářskými vestavbami, mimo jiné kvalitní vestavnou kuchyní a vestavbami v suterénu, na půdě i v koupelnách.
Technicky je nemovitost vybavena podle nejnovějších standardů – ve všech patrech je podlahové vytápění, nízkoúdržbové centrální vytápění (geotermie), zařízení pro odstraňování vodního kamene z čerstvé vody a balkonové solární elektrárnou.
Parkovací místo je vybaveno vlastní nabíjecí stanicí pro elektroauto.
V okolí nemovitosti najdete
Stále hledáte to pravé?
Nastavte si hlídacího psa. Nabídky vybrané na míru dostanete souhrnně 1× denně e-mailem. S Premium profilem máte k ruce hlídačů rovnou 5 a když se něco objeví, informují vás obratem.















