
Prodej domu 5+1 • 150 m² bez realitkyGilching Gilching Bayern 82205
Gilching Gilching Bayern 82205MHD 4 minuty pěšky • Parkování • GarážUvedená cena 1 € je pouze zástupná, protože portál vyžaduje číselnou hodnotu. Skutečný prodej probíhá na základě nabídky/ceny na vyžádání v rámci našeho strukturovaného výběrového řízení. Podrobnosti o hodnotě a ekonomických údajích najdete v kompletním expozé.
Tato masivně postavená poloviční dvojdomek z roku 1983 byla energeticky navržena daleko nad tehdejší standardy a již dnes disponuje vysoce efektivní fotovoltaickou instalací s přibližným ročním výnosem 2 760 € a schválenou dotací na tepelná čerpadla z KfW ve výši 16 500 € určenou na budoucí výměnu topného systému.
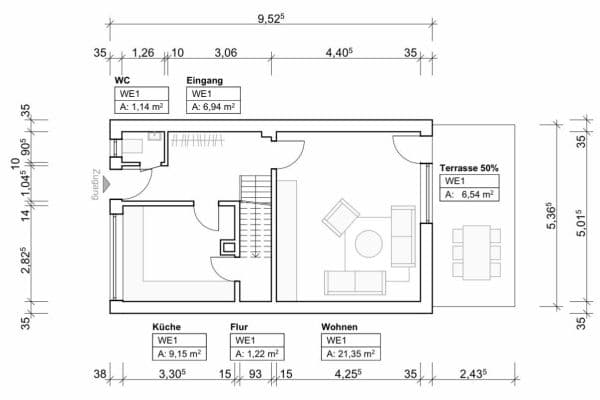
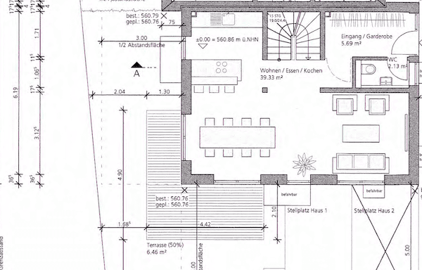
V jedné z nejžádanějších a nejklidnějších lokalit v Gilchingu vám nabízíme domov, který spojuje kvalitu života a ekonomickou rozumnost na přibližně 198 m² obytné a užitkové plochy, o zahradě o rozloze 382 m².
Hlavní přednosti v přehledu:
• Soukromé rezort: cca 19 m² venkovního bazénu v zahradě na jihu s dostatečným soukromím.
• Štědrost: cca 150 m² čisté obytné plochy, včetně světlého podkrovního ateliéru s proskleným štítem.
• Vybavení: pravé dubové venkovské dřevěné podlahy, otevřený krb a zcela sklepněná plocha s vytápěnou místností pro volnočasové aktivity.
• Budoucnost: Připravenost na úplnou energetickou autonomii (možnost rozšíření na 10 kWp fotovoltaické kapacity s 15 kWh úložištěm, HEMS a instalace tepelného čerpadla).
Jak získat kompletní expozé:
Abychom zachovali soukromí, zveřejňujeme zde pouze dojmy a půdorysy. Detailní expozé se všemi ekonomickými údaji a energetickým štítem spotřeby vám rádi zašleme osobně. Prosíme, pošlete nám zprávu s vašimi kompletními adresními a kontaktními údaji prostřednictvím této platformy.
Přehled prodejního procesu:
Kvalifikovaní zájemci obdrží ve třetím kroku možnost prohlídky. Předtím však prosíme o uvedení orientační nabídky a o předložení Schufa-výpisu spolu s prohlášením kupce, které poté potvrdíme domluveným termínem. Nepozvané prohlídky nejsou možné.
V okolí nemovitosti najdete
Stále hledáte to pravé?
Nastavte si hlídacího psa. Nabídky vybrané na míru dostanete souhrnně 1× denně e-mailem. S Premium profilem máte k ruce hlídačů rovnou 5 a když se něco objeví, informují vás obratem.

























