
Prodej domu • 298 m² bez realitkyElizabeth-Duncan-Weg 6 Darmstadt Eberstadt Hessen 64297
Elizabeth-Duncan-Weg 6 Darmstadt Eberstadt Hessen 64297MHD 1 minuta pěšky • GarážVíce rodinný dům ve výborné lokalitě v Darmstadtu-Eberstadu zahrnuje tři obytné jednotky:
- Přízemí: 107 m², 3 pokoje, kuchyň, koupelna, WC, terasa a zahrada
- Patro: 102 m², 3 pokoje, kuchyň, koupelna, WC, balkon
- Podkrovní obytný prostor: 66 m², 3 pokoje, kuchyň, koupelna (aktuálně nevystavena k pronájmu)
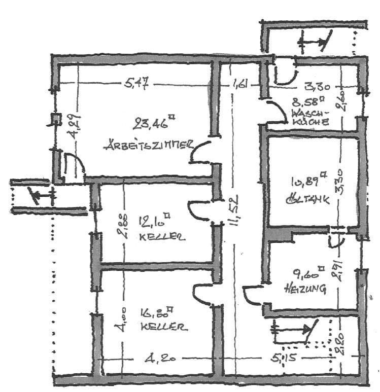
Budova je kompletně zaprojektována s sklepem. Jeden ze sklepních pokojů je zařízen jako pracovna (23 m²).
Další informace naleznete na naší webové stránce: edw6.jimdosite.com
Eberstadt, jižní čtvrť Darmstadtu s přibližně 25 000 obyvateli, láká vysokou kvalitou života. Rozmanitá sociální zařízení, spolky, sportovní a volnočasové aktivity – včetně velkého venkovního bazénu – a četné možnosti rekreace v okolní krajině činí tuto čtvrť obzvlášť atraktivní. Se svým množstvím základních, všeobecných a středních škol rovněž Eberstadt nabízí široké vzdělávací možnosti.
Dopravní dostupnost je vynikající: železniční stanice a tramvaje (linky 1, 6, 7, 8) spojují rychle Darmstadt, Heidelberg, Mannheim a Frankfurt. Autobusové linky zajišťují mobilitu v rámci Eberstadtu a do okolních obcí, zatímco silnice B3, B426 a blízká dálnice A5 umožňují pohodlný přístup automobilem.
Nemovitost se nachází v klidné slepé ulici, méně než 100 metrů od nejbližší autobusové zastávky. Hned vedle se nachází chráněná přírodní rezervace, která poskytuje rychlý přístup k přírodě. Oblíbenými cíli výletů v okolí jsou zámek Frankenstein a dálkové turistické stezky Burgensteig a Blütenweg.
Centrum čtvrti Eberstadt, kde najdete obchody s každodenním zbožím a pestrou gastronomii, je vzdálené přibližně 800 metrů a je dostupné pěšky.
Střecha byla v létě 2025 kompletně rekonstruována, včetně izolace nad krokvími, okapů, podzemní fotovoltaické instalace a střešních oken.
Další informace naleznete na naší webové stránce: edw6.jimdosite.com
Parametry nemovitosti
| Stáří | Nad 50 let |
|---|---|
| Stav | Dobrý |
| PENB | G - Mimořádně nehospodárná |
| Plocha pozemku | 725 m² |
| Dostupné od | 4. 4. 2026 |
|---|---|
| Číslo inzerátu | 1005566 |
| Užitná plocha | 298 m² |
| Cena za jednotku | 4 027 € / m2 |
Co tato nemovitost nabízí?
| Balkón | |
| Terasa |
| Garáž | |
| MHD 1 minuta pěšky |
V okolí nemovitosti najdete
Stále hledáte to pravé?
Nastavte si hlídacího psa. Nabídky vybrané na míru dostanete souhrnně 1× denně e-mailem. S Premium profilem máte k ruce hlídačů rovnou 5 a když se něco objeví, informují vás obratem.

























