
Prodej bytu 2+1 • 40 m² bez realitkyChausseestr 108 Berlin Mitte Berlin 10115
Chausseestr 108 Berlin Mitte Berlin 10115MHD do minuty pěšky • VýtahBudova s výtahem a užitnou plochou 9.464 m² byla postavena v roce 2015. Fasáda vyniká svým designem ze skla a kovu na rušné a oblíbené ulici Chausseestraße, zatímco obyvatelé uvnitř mohou užívat klidu a ticha. Chausseestraße 108 je jednou z předních adres v Berlíně a je lemována galeriemi, kavárnami a obchody. Navíc díky své neustále se proměňující městské podobě představuje perspektivní hotspot pro investory.
Living 108 je vzácná oáza v srdci Berlína, která obyvatelům nabízí uvolněné prostředí, kde se mohou zotavit od stresujícího každodenního shonu – například díky fitness zařízení s výhledem do zahrady. Objevte, jak skvělé je žít v berlínském centru.
Střešní terasa nahoře je dalším lákadlem budovy. Odtud můžete mít výhled na celý Berlín a vychutnávat si západy slunce s úžasnými panoramatickými pohledy na město. V budově se nachází také společný sportovní prostor se sprchami.
Celkem se jedná o 128 apartmánů a 3 obchodní jednotky v přízemí před Urban Living Apartments o rozloze od 29 m² do 121 m².
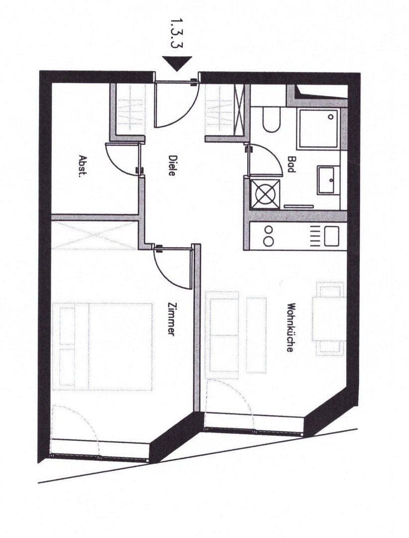
Bytová jednotka má ideální velikost pro osobní užívání nebo pronájem. Byt disponuje malým předsálím, slunným obývacím pokojem s otevřenou kuchyní a ložnicí, prostupnou šatnou a dlažbenou koupelnou se sprchou a přípojkou pro pračku.
Nejzajímavější a nejcentrálnější čtvrť hlavního města – Berlin-Mitte – nabízí vše na dosah: památky, veškeré volnočasové aktivity, rozmanitou gastronomii a stanici metra Naturkundemuseum, kterou lze dojít pěšky během jedné minuty. Řeka Spree s Monbijouparkem nebo také Friedrichstadtpalast jsou vzdáleny jen několik minut – stejně jako vládní čtvrť a slavná Friedrichstraße.
Stanice metra Naturkundemuseum a autobusová zastávka Oranienburger Tor, stejně jako stanice S-Bahn Nordbahnhof, zajišťují vynikající spojení této čtvrti se zbytkem hlavního města. Také spolková silnice 96 umožňuje dobrou dostupnost do okolních částí města.
Nabízí se nespočet kulturních atrakcí a významných podniků v bezprostřední blízkosti. Perfektně umístěná v centru Berlína, nedaleko nádraží Friedrichstraße nebo hlavního nádraží.
Living 108 – apartmánový dům na adrese Chausseestraße 108.
Byt je částečně zařízený, kuchyně s lakovanými frontami a elektrospotřebiči zůstává v bytě. Také mimo byt se nachází malý spind. Je volný k prohlídkám!
Prohlídka na vyžádání
Helena Shatalova
017621781474
V okolí nemovitosti najdete
Stále hledáte to pravé?
Nastavte si hlídacího psa. Nabídky vybrané na míru dostanete souhrnně 1× denně e-mailem. S Premium profilem máte k ruce hlídačů rovnou 5 a když se něco objeví, informují vás obratem.



















