
Prodej bytu 3+1 • 76 m² bez realitkyJevenstedter Straße 55 Hamburg Lurup Hamburg 22547
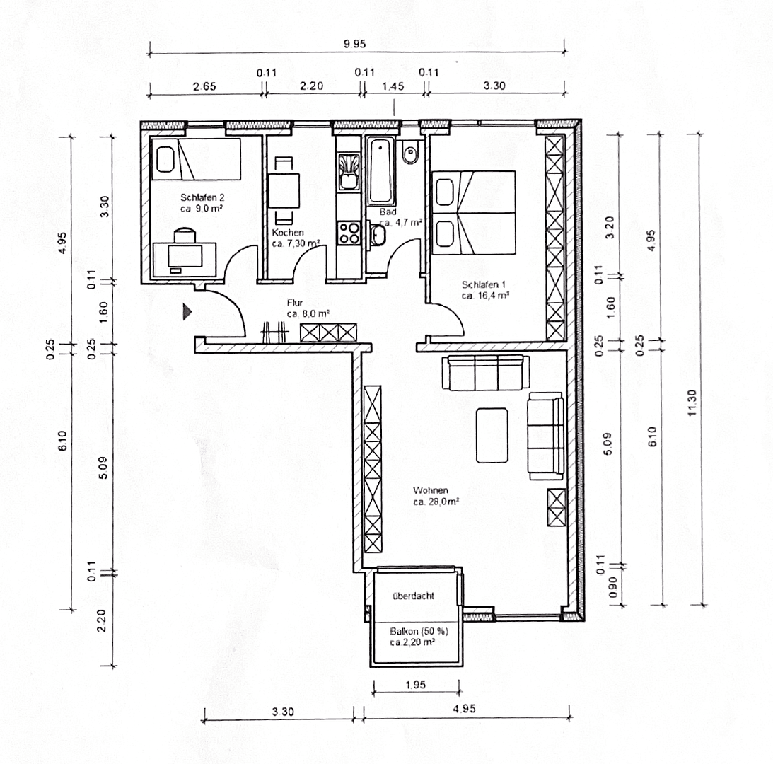
Jevenstedter Straße 55 Hamburg Lurup Hamburg 22547MHD 4 minuty pěškyProdává se prostorný 3+1 byt s přibližně 76 m² obytné plochy, nacházející se v klidné a zelené lokalitě Hamburku (Jevenstedter Straße 55). K bytu náleží také sklepní kóje.
V rámci rekonstrukce bylo již provedeno řada modernizačních opatření:
• Nová elektroinstalace v celém bytě
• Moderní jističová skříň dle aktuálních bezpečnostních standardů
• LAN kabeláž
• Mnoho dodatečných zásuvek
• Nové podlahové krytiny
• Nové radiátory
• Moderní dispozice s dostatkem denního světla
Byt je aktuálně dokončován a nabízí moderní vybavení s komfortem současného bydlení.
Byt se nachází v udržovaném panelovém domě, který byl v minulých letech rozsáhle modernizován:
• Výtah vyměněn (přibližně 2020)
• Střecha vyměněna a izolována (přibližně 2017)
• Balkónový systém vyměněn (přibližně 2019)
• Bezbariérový přístup
Byt je v současné době kompletně rekonstruován, což umožňuje možnost prvního nastěhování po modernizaci. Na základě ukázkových fotografií lze již dobře odhadnout budoucí, kvalitní stav bytu.
Zvláště atraktivní je, že byt lze zakoupit buď plně dokončený, nebo v současném stavu, což představuje další možnosti přizpůsobení.
Nemovitost je výborná jak pro vlastní bydlení, tak i jako investice pro kapitálovatele. Jedná se o solidní a hodnotově stabilní investici v Hamburku.
Byt se nachází v ulici Jevenstedter Straße v Hamburku, v mimořádně klidné a příjemné obytné oblasti. Okolí je charakterizováno rodinnými domy, hojností zeleně a klidným sousedstvím. Současně má lokalita dobrou dostupnost veřejné dopravy, obchodních možností, škol a zařízení pro každodenní potřeby. Tato kombinace činí polohu mimořádně atraktivní jak pro vlastní bydlení, tak pro dlouhodobé kapitálové investice.
Byt se aktuálně dokončuje. Fotografie v inzerátu částečně zobrazují ukázkové vizualizace finálního stavu.
Rádi vám poskytneme další informace nebo domluvíme prohlídku.
Uvedené informace byly poskytnuty dle nejlepšího vědomí a svědomí; za ně nepřebíráme žádnou odpovědnost.
Všechny dokumenty a podklady ke kontrole jsou k dispozici.
*Bez makléřského poplatku!
Makléřské dotazy nejsou vítány! Podle § 7 UWG jsou nevyžádané kontakty od makléřů bez výslovného souhlasu příjemce zakázány!
V okolí nemovitosti najdete
Stále hledáte to pravé?
Nastavte si hlídacího psa. Nabídky vybrané na míru dostanete souhrnně 1× denně e-mailem. S Premium profilem máte k ruce hlídačů rovnou 5 a když se něco objeví, informují vás obratem.















