
Prodej bytu 5+kk • 123 m² bez realitkyBoleslavova, Praha - Nusle
Využít program Bydlím hned, koupím později
Představte si večer na vlastní střešní terase s výhledem přes pražské střechy, sklenku vína v ruce a klid, který byste v centru Prahy nečekali. Přesně to nabízí tento jedinečný mezonetový byt v srdci Nuslí.
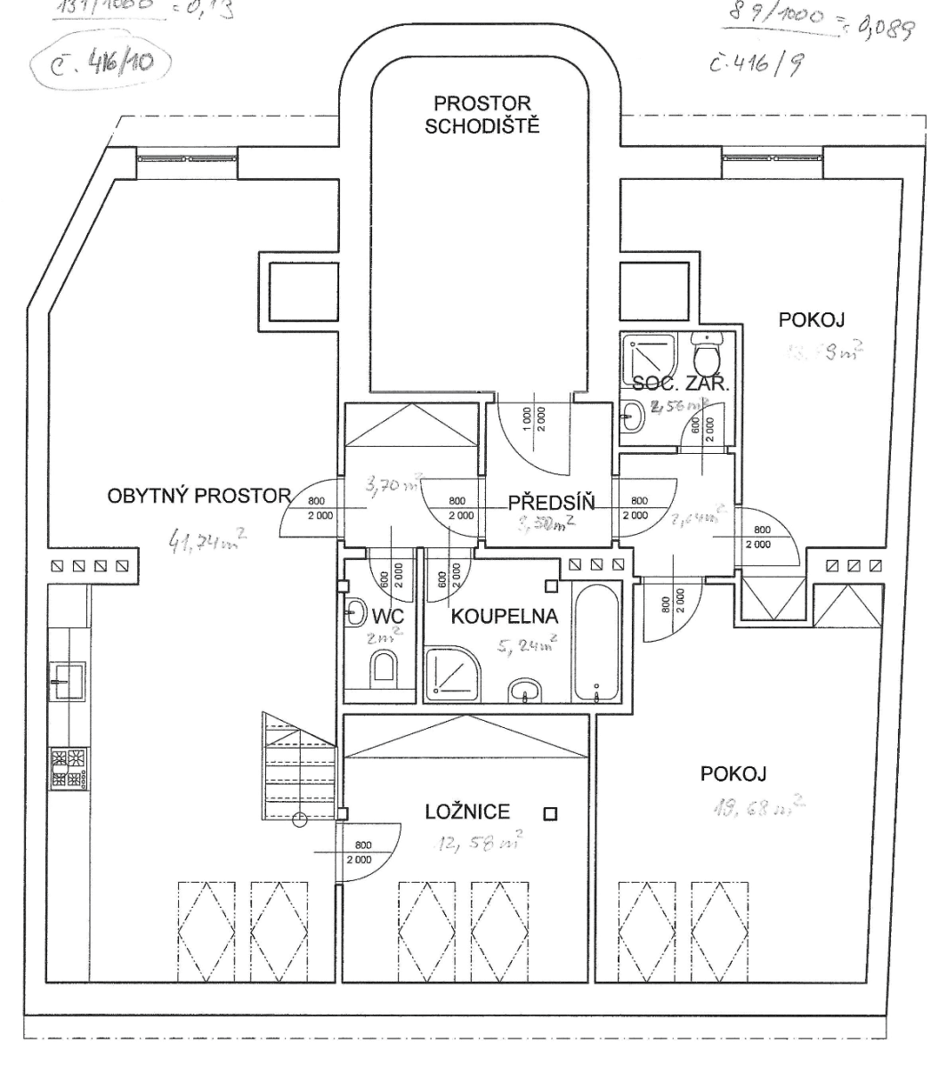
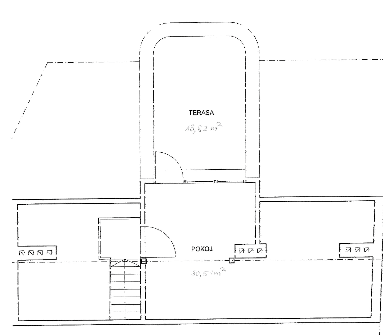
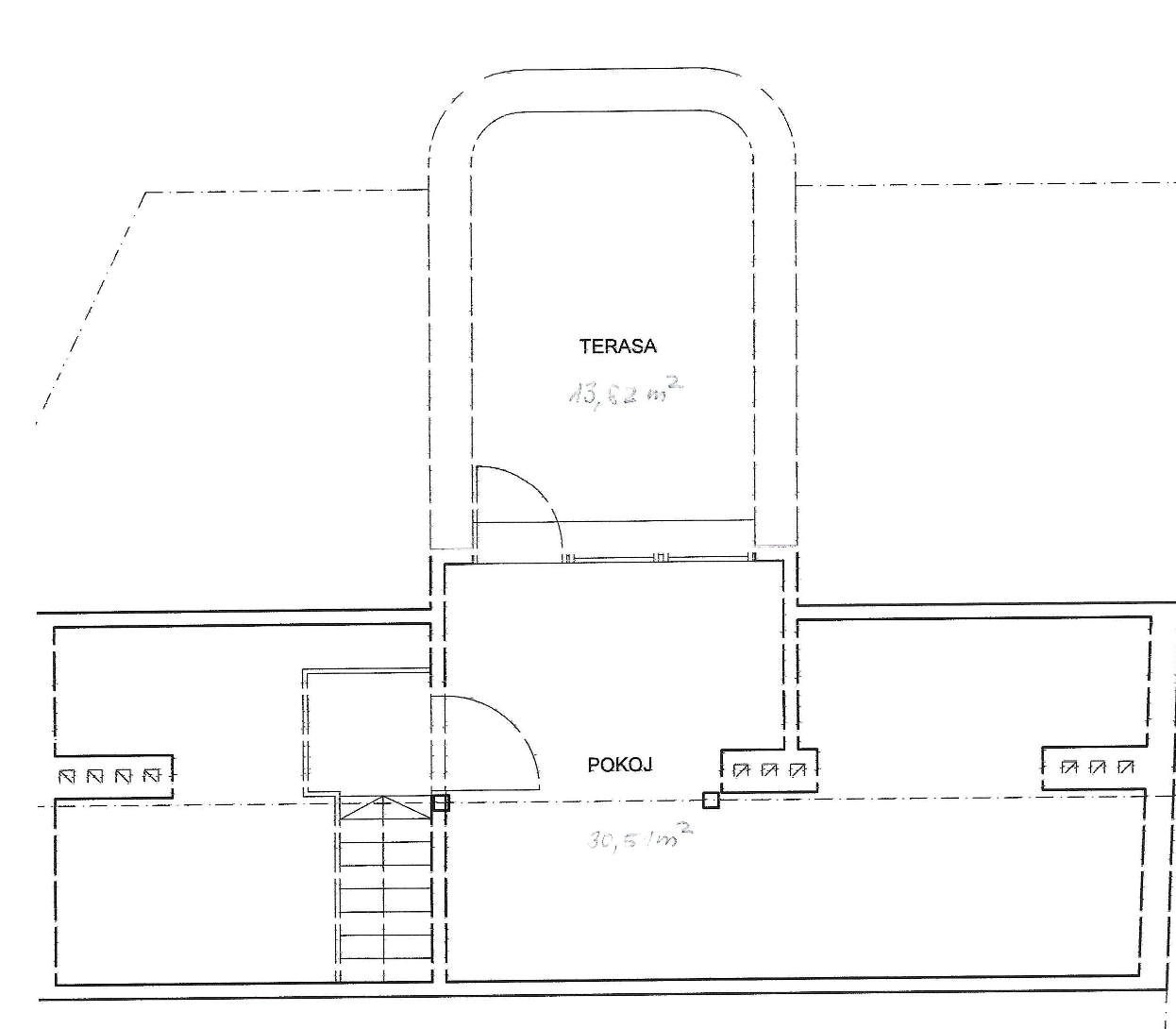
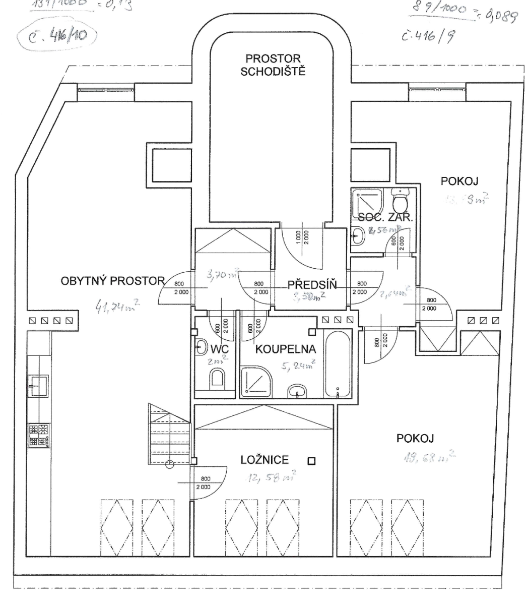
Prostorný soubor 2 bytových jednotek o celkové využitelné ploše 123 m² (+ terasa 14 m² + sklep 8 m²) se rozkládá ve 4. a 5. NP (podkroví) cihlového domu z roku 1925 na adrese Boleslavova 416/40, Praha 4. Dům je bez výtahu. Byt tvoří dvě stavebně propojené jednotky — 3+kk (84 m² využitelné plochy) a 1+1 (39 m²) — které lze užívat společně jako velký rodinný byt i odděleně. Byt je aktuálně pronajatý. Je připraven k okamžitému bydlení nebo případné rekonstrukci dle vlastních představ. Ideální jako rodinné bydlení, dvougenerační byt, nebo investice s pronájmem menší jednotky.
BYT 3+kk — jednotka 416/10 (využitelná plocha 84 m², mezonet):
K bytu patří střešní terasa o výměře 14 m², jižně orientovaná, s výhledem přes střechy Nuslí a okolní zeleň — absolutní unikát tohoto bytu. Vstupní chodbou s hexagonální dlažbou vejdete do hlavního obytného prostoru s kuchyňským koutem. Dřevěné trámy, střešní okna, dřevěné schodiště vedoucí do horního patra a světlá výška stropu až 4,5 metru dodávají prostoru jedinečný podkrovní charakter. Na obytný prostor navazuje ložnice s vestavěnou šatnou. Koupelna s vanou i sprchovým koutem a samostatné WC doplňují dispozici. Z obývacího pokoje vede dřevěné schodiště do horní úrovně — podkrovního pokoje s prosklenými francouzskými dveřmi, které vedou přímo na terasu. V horním patře se nacházejí také dodatečné úložné prostory. Součástí je sklep v suterénu domu (8 m²). Byt prošel částečnou rekonstrukcí v roce 2017.
BYT 1+1 — jednotka 416/9 (podlahová plocha 39 m²):
Kompletně zrekonstruovaný v roce 2017 — nová moderní kuchyňská linka s vestavnými spotřebiči, troubou, varnou deskou a pračkou. Kuchyň a pokoj, vlastní koupelna s WC a sprchovým koutem, nové laminátové podlahy a kompletní nové rozvody.
Vytápění a ohřev TUV zajišťuje společný plynový kotel pro obě jednotky, deskové radiátory.
Prodej přímo od majitele — bez provize, bez realitní kanceláře. Prosím, realitní kanceláře nevolejte.
LOKALITA:
Nusle patří k nejžádanějším rezidenčním čtvrtím Prahy 4 — širší centrum, zděná zástavba. Nejbližší tramvajová zastávka Náměstí Bratří Synků je cca 100 m od domu s návazností na metro trasy C, A i B. Do centra Prahy veřejnou dopravou max. 15 minut. V docházkové vzdálenosti park Jezerka (3,5 ha), Folimanka, školy, školky, obchody, restaurace a OC Arkády Pankrác (5 min. tramvají). Obrovskou výhodou je plánovaná stanice metra D Náměstí Bratří Synků — prakticky za rohem domu — která po dokončení výrazně zvýší hodnotu nemovitosti i komfort dopravy.
Neváhejte a domluvte si prohlídku — mezonetový byt s vlastní terasou se v Nuslích objevuje jen výjimečně. Byt je vhodný jako rodinné bydlení, dvougenerační byt, investice s pronájmem menší jednotky, nebo kombinace bydlení a podnikání.
Imagine an evening on your own rooftop terrace with a view over Prague’s rooftops, a glass of wine in hand, and a sense of tranquility you wouldn’t expect in the center of Prague. This is exactly what this unique duplex apartment in the heart of Nusle offers.
A spacious complex consisting of 2 residential units with a total usable area of 123 m² (+ 14 m² terrace + 8 m² cellar) is spread over the 4th and 5th floors (attic) of a brick building from 1925, located at Boleslavova 416/40, Prague 4. The building does not have an elevator. The apartment comprises two structurally connected units — a 3+kk (84 m² usable area) and a 1+1 (39 m²) — which can be used together as a large family apartment or separately. The apartment is currently rented. It is ready for immediate occupation or for potential renovation according to your own ideas. It is ideal as a family home, a multi-generational apartment, or an investment with rental of the smaller unit.
APARTMENT 3+kk — unit 416/10 (usable area 84 m², duplex):
The apartment includes a 14 m² roof terrace with a southern orientation, offering a view over Nusle’s rooftops and surrounding greenery — an absolute unique feature of this apartment. Through an entrance hall with hexagonal tiling and solid wooden doors, you enter the main living space with a kitchenette. Wooden beams, roof windows, a wooden staircase leading to the upper level, and a ceiling height of up to 4.5 meters give the space a unique attic character. Adjoining the living area is a bedroom with a built-in dressing room. A bathroom with both a bathtub and a shower, as well as a separate WC, complete the layout. From the living room, a wooden staircase leads to an upper-level attic room with glazed French doors that open directly onto the terrace. Additional storage spaces can also be found on the upper floor. The property also includes a cellar in the basement of the building (8 m²). The apartment underwent partial reconstruction in 2017.
APARTMENT 1+1 — unit 416/9 (floor area 39 m²):
Completely renovated in 2017 — featuring a new modern kitchen with built-in appliances, including an oven, a cooktop, and a washing machine. It comprises a kitchen and a living room, a private bathroom with WC and shower, new laminate flooring, and completely new electrical installations.
Heating and domestic hot water for both units are provided by a shared gas boiler and panel radiators.
LOCATION:
Nusle is one of the most sought-after residential districts in Prague 4 — the wider center, known for its brick buildings. The nearest tram stop, Náměstí Bratří Synků, is about 100 m from the building, with connections to metro lines C, A, and B. The center of Prague is reachable by public transport in a maximum of 15 minutes. Within walking distance you will find Jezerka Park (3.5 ha), Folimanka, schools, kindergartens, shops, restaurants, and the Arkády Pankrác shopping center (a 5-minute tram ride). A huge advantage is the planned metro station D.
Parametry nemovitosti
| Dostupné od | 6. 4. 2026 |
|---|---|
| Konstrukce budovy | Cihla |
| Vybaveno | Částečně |
| Vytápění | Plynové |
| Vlastnictví | Osobní |
| Umístění | Centrum |
| Rizika | Prověřit » |
| Stav | Dobrý |
|---|---|
| Dispozice | 5+kk |
| Podlaží | 4. podlaží z 5 |
| Číslo inzerátu | 1009366 |
| PENB | G - Mimořádně nehospodárná |
| Užitná plocha | 123 m² |
| Cena za jednotku | 136 910,57 Kč / m2 |
Co tato nemovitost nabízí?
| Sklep 8 m² | |
| Terasa 14 m² |
V okolí nemovitosti najdete
Využít program Bydlím hned, koupím později























