
Prodej domu • 270 m² bez realitky, Bádensko-Württembersko
Ein großzügiges Haus mit niedrigen Energiekosten bietet Nachhaltigkeit und Flexibilität für Ihre Familie.
Velkorysý dům s nízkými provozními náklady na energii nabízí udržitelnost a flexibilitu pro vaši rodinu.
Das Einfamilienhaus wurde 1982 in massiver Bauweise errichtet und bietet rund 270 m² Wohnfläche auf einem Grundstück von 525 m².
Rodinný dům byl postaven v roce 1982 v masivní konstrukci a nabízí přibližně 270 m² obytné plochy na pozemku o rozloze 525 m².
Modernisierungen seit 2013 bringen das Haus energetisch auf einen zeitgemäßen Stand:
Od roku 2013 proběhla modernizace, díky které je dům energeticky v souladu s dnešními standardy:
Die große Photovoltaikanlage ergibt einen Autarkiegrad von mehr als 80% (nur 20% Strom aus dem Netz) und die monatliche Einspeisevergütung des Stromnetzbetreibers entlastet Ihre Haushaltskasse zusätzlich.
Velká fotovoltaická elektrárna zajišťuje míru soběstačnosti vyšší než 80 % (pouze 20 % elektřiny ze sítě) a měsíční tarif za zasíťovanou elektřinu od provozovatele sítě dále ulevuje vašemu rodinnému rozpočtu.
Die Pelletheizung macht Sie unabhängig von fossilen Energien.
Pelletový kotel vás činí nezávislými na fosilních palivech.
Mit der Solarthermie auf dem Dach und der Dämmung von Keller, Dach und Fenstern sind die Heizkosten wesentlich niedriger als bei vergleichbaren Objekten.
Díky solární termii na střeše a izolaci sklepa, střechy a oken jsou náklady na vytápění výrazně nižší než u srovnatelných nemovitostí.
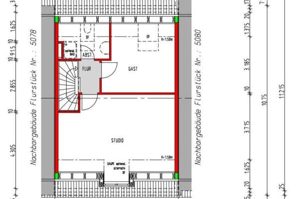
Das Erdgeschoss umfasst einen großzügigen Wohn- und Essbereich mit offener Küche sowie ein abgesetztes Kaminzimmer.
Přízemí zahrnuje prostorný obývací a jídelní kout s otevřenou kuchyní a samostatnou místnost s krbem.
Die Raumaufteilung ist funktional und offen gestaltet.
Rozložení místností je funkční a otevřené.
Ergänzt wird das Geschoss durch ein Duschbad, eine Abstellkammer und ein weiteres Zimmer, das als Arbeits- oder Gästezimmer genutzt werden kann.
Přízemí dále obsahuje sprchovou koupelnu, skladovací místnost a další místnost, kterou lze využít jako pracovnu nebo hostinský pokoj.
Im Obergeschoss befinden sich vier gleichwertige Zimmer, die als Schlaf-, Kinder- oder Arbeitszimmer geeignet sind, sowie zwei voll ausgestattete Bäder.
V patře se nacházejí čtyři rovnocenné pokoje vhodné jako ložnice, dětské či pracovny a také dvě plně vybavené koupelny.
Drei der Zimmer haben Zugang zum Südbalkon.
Tři z pokojů mají vstup na jižní balkon.
Die Böden sind mit geöltem Eichenparkett versehen.
Podlahy jsou pokryty ošetřenou dubovou parketou.
Eine zum Park orientierte Galerie erweitert das Raumangebot.
Galerie orientovaná k parku rozšiřuje obytný prostor.
Das Untergeschoss bietet einen ca. 40 m² großen, beheizbaren Gästeraum mit Tageslicht, einen beheizbaren Werkraum, einen Wasch- und einen Heizungsraum sowie weitere Abstellflächen.
Suterén nabízí přibližně 40 m² velkou, vytápěnou hostinskou místnost s denním světlem, vytápěnou dílnu, prádelnu a technickou místnost a další úložné prostory.
Die innenliegende Garage ist vom EG und vom Keller erreichbar und mit einem elektrischen Tor und Starkstromanschluss ausgestattet.
Vnitřní garáž je dostupná z přízemí i z suterénu a je vybavena elektrickou bránou a připojením pro silný proud.
Der Dachboden ist gedämmt und kann als Lagerfläche genutzt werden.
Půda je izolovaná a může být využita jako skladovací prostor.
Der Garten ist vollständig eingefriedet und naturnah angelegt.
Zahrada je kompletně oplocená a navržena v souladu s přírodou.
Eine gepflasterte Terrasse mit Außenkamin, ein kleiner Teich und mehrere Sitzbereiche bieten Nutzungsmöglichkeiten im Freien.
Dlažební terasa s venkovním krbem, malý rybník a několik posezení poskytují možnosti využití venkovních prostor.
Auch Gemüsebeet, Beerensträucher und Obstbäume sind vorhanden.
K dispozici jsou rovněž záhony s zeleninou, keře s bobulemi a ovocné stromy.
Das Einfamilienhaus befindet sich in attraktiver Wohnlage von St. Leon, in einer 30-Zone gegenüber vom Feuerwehrpark – eine beliebte Grünanlage mit Spiel- und Erholungsflächen.
Rodinný dům se nachází v atraktivní rezidenční oblasti St. Leon, v zóně 30 km/h, naproti hasičskému parku – oblíbenému zelenému prostoru s hřišti a odpočinkovými plochami.
Die Umgebung zeichnet sich durch eine ruhige, familienfreundliche Atmosphäre aus und bietet zugleich eine sehr gute Infrastruktur.
Okolí se vyznačuje klidnou, rodinně přívětivou atmosférou a zároveň nabízí velmi dobrou infrastrukturu.
Einkaufsmöglichkeiten, Kindergärten, Schulen sowie ärztliche Versorgung sind in wenigen Minuten erreichbar.
Obchodní možnosti, mateřské školy, školy i lékařská péče jsou dostupné za několik minut.
Die nahegelegenen Felder und Grünflächen laden zu Spaziergängen, Radtouren und sportlichen Aktivitäten ein.
Blízká pole a zelené plochy vybízejí ke procházkám, cyklistickým výletům a sportovním aktivitám.
Auch der St. Leoner See, ein beliebter Badesee mit Wasserskianlage, liegt nur wenige Fahrminuten entfernt.
Rovněž St. Leoner See, oblíbené koupaliště s vodním lyžováním, se nachází jen několik minut jízdy.
Der öffentliche Nahverkehr ist gut ausgebaut, sodass auch Pendler von der Lage profitieren.
Veřejná doprava je dobře vybudovaná, takže i dojížďející z této lokality mají prospěch.
Für ältere Kinder fährt der Schulbus nach Rot, Walldorf oder Heidelberg 100m vom Haus entfernt.
Pro starší děti projíždí školní autobus do Rot, Walldorfu nebo Heidelbergu, vzdálený jen 100 metrů od domu.
St. Leon-Rot ist über die Bahnhöfe Rot-Malsch, Neulußheim und Wiesloch-Walldorf an den öffentlichen Fernverkehr angebunden.
St. Leon-Rot je dopravně propojeno s dálkovou veřejnou dopravou prostřednictvím nádraží Rot-Malsch, Neulußheim a Wiesloch-Walldorf.
Die Autobahnen A6 und A5 bieten schnelle Wege nach Heidelberg, Mannheim und Karlsruhe.
Autostrády A6 a A5 nabízejí rychlé spoje do Heidelbergu, Mannheimer a Karlsruhe.
Kein Renovierungsstau, kein Einzug im Baustellenmodus:
Žádné opožděné opravy, žádný stomatologický režim stavení:
Das Gebäude wurde technisch und energetisch umfassend modernisiert.
Budova byla technicky a energeticky komplexně modernizována.
Die wichtigsten Maßnahmen im Überblick:
Nejdůležitější zásahy na první pohled:
- Heizung und Energie: Pelletheizung (2013) mit wassergeführter Fußbodenheizung auf allen Etagen; Solarthermie zur Warmwasserbereitung; Photovoltaikanlage (2023, 17 kWp, Batteriespeicher 8,5 kWh).
- Vytápění a energie: Pelletový kotel (2013) s vodním podlahovým topením na všech podlažích; solární termie pro ohřev teplé vody; fotovoltaická elektrárna (2023, 17 kWp, bateriové úložiště 8,5 kWh).
- Gebäudehülle: Dachsanierung und Dämmung (2013), Kellersanierung (2014), 3-fach-verglaste Fenster und neue Haustür (2015–2020).
- Opláštění budovy: Rekonstrukce a izolace střechy (2013), rekonstrukce sklepa (2014), trojitá zateplená okna a nová vstupní vrata (2015–2020).
- Innenausbau: Fliesenböden im Erdgeschoss, Eichenparkett im Obergeschoss, hochwertige Putz- und Farbsysteme (biologische Kalk- und Lehmoberflächen), Türen in Sonderhöhe (210 cm).
- Interiérové dokončení: dlažba v přízemí, dubová parketa v patře, vysoce kvalitní omítkové a barvové systémy (biologické vápencové a jílové povrchy), dveře ve zvýšené výšce (210 cm).
- Technik: Glasfaseranschluss, elektrische Garage und beheizter Werkkeller mit Starkstrom, Innen- und Außenkamin, Kachelofen (für den Notfall).
- Technické vybavení: optické vlákno, elektrická garáž a vytápěná technická místnost se silným proudem, vnitřní i venkovní krb, kamenový krb (pro nouzové situace).
- Energiekennwerte: Verbrauchsausweis Klasse B, Primärenergieverbrauch (eingespeister PV-Strom eingerechnet) Klasse A+.
- Energetické hodnoty: energetický štítek třída B, primární energetická náročnost (včetně zasíťované PV-elektřiny) třída A+.
Die Kombination aus durchdachter Sanierung, solider Bausubstanz und energieeffizienter Haustechnik ergibt ein Objekt mit dauerhaft hohem Nutzwert und niedrigen Betriebskosten.
Kombinace promyšlené rekonstrukce, solidní stavební struktury a energeticky účinné technologie dává nemovitosti trvale vysokou užitnou hodnotu a nízké provozní náklady.
Ein detailliertes Exposé schicken wir Ihnen gerne zu.
Rádi vám zašleme podrobný expozici.
Der Verkauf erfolgt privat und provisionsfrei für den Käufer. Eine Provisionszahlung durch den Verkäufer wird grundsätzlich ausgeschlossen.
Prodej probíhá soukromě a bez provize pro kupujícího. Vyplacení provize ze strany prodávajícího je v zásadě vyloučeno.
Parametry nemovitosti
| Stáří | Nad 50 let |
|---|---|
| Stav | Po rekonstrukci |
| PENB | B - Velmi úsporná |
| Plocha pozemku | 525 m² |
| Cena za jednotku | 3 144,44 € / m2 |
| Dostupné od | 14. 4. 2026 |
|---|---|
| Číslo inzerátu | 1011897 |
| Užitná plocha | 270 m² |
| Celkem podlaží | 2 |
Co tato nemovitost nabízí?
| Balkón | |
| Garáž | |
| Parkování | |
| Terasa |
| Sklep | |
| MHD 0 minut pěšky |


























