
Prodej bytu 2+1 • 58 m² bez realitkyPreziosastraße 27 München Johanneskirchen Bayern 81927
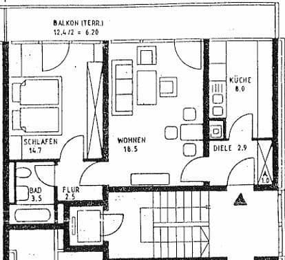
Tento světlý, atraktivní 2-pokojový byt ve třetím patře pečlivě udržovaného bytového domu s výtahem zaujme skvělým dispozicím, příjemnou západní orientací a tichou, žádanou polohou v Mnichově-Bogenhausenu. S přibližně 57,3 m² obytné plochy nabízí optimální podmínky pro majitele, páry nebo jednotlivce.
Prostorný obývací pokoj s přímým vstupem na sluncem zalitý západní balkon o rozloze 12 m² s výhledem do zeleně tvoří srdce bytu a společně se ložnicí, která je taktéž orientována směrem k tiché zelené ploše a má rovněž přímý vstup na balkon, vytváří mimořádně přátelskou a světlou atmosféru. V bytě je vybavena vestavěná kuchyň, moderní koupelna s vanou a sprchovým koutem a praktická vestavěná skříň v chodbě, což podtrhuje funkční a promyšlené uspořádání prostoru. V kuchyni je rovněž zajištěno připojení pro pračku.
Byt se nachází v pečlivém stavu.
Součástí nabídky je také vlastní sklep, který poskytuje další komfort a praktické úložné prostory.
Externí parkovací místo, zabezpečené závorou, je rovněž k dispozici k zakoupení nebo pronájmu.
Kupní cena tohoto atraktivního bytu činí 445.000 € (základ pro jednání). Bez makléře a provize. Byt je spravován správcovskou firmou a měsíční poplatek činí 240 €.
Díky žádané lokalitě v Mnichově-Bogenhausenu, promyšlenému uspořádání místností a vynikající vhodnosti jak pro majitele, tak pro investory představuje tato nemovitost zajímavou příležitost. Uvedená cena slouží jako základ pro jednání, aby kvalifikovaným a vážným zájemcům byla nabídnuta férová a tržně odpovídající kupní možnost. Nabídky jsou vítány k přezkoumání.
V případě zájmu nebo dotazů ohledně bytu mě neváhejte kontaktovat. Ráda si domluvím osobní prohlídku a kdykoliv poskytnu další informace.
Byt se nachází v Altbogenhausenu v Johanneskirchen, oblíbené a klidné rezidenční čtvrti se skvělou kombinací zelených ploch a městské infrastruktury. Veřejná doprava, spojení s centrem města a také veškeré možnosti nákupů, školy, školky, volnočasová zařízení a lékaři jsou v této oblasti výborné!
Konkrétní zastávky, vzdálenosti a místa:
- Zastávka autobusu „Bichlhofweg“ – autobusová linka 154, cca 6 minut chůze
- Tramvajová zastávka „Fritz-Meyer-Weg“ – cca 5 minut chůze
- S-Bahn Johanneskirchen (linka k letišti) – cca 8 minut chůze
- Metro Arabellapark (U4) – rychle a pohodlně dostupné autobusem nebo tramvají
- Supermarkety (REWE a EDEKA) – cca 6 minut chůze
- Další možnosti nákupů, banky a restaurace jsou dosažitelné pěšky
- Englischer Garten Nord – 1,5 km
(Poznámka: Autobusová linka 154 jezdí směrem k Nordbadu a přímo k „Čínské věži“.)
V okolí nemovitosti najdete

Prodej bytuTheresienbogen 23 Unterschleißheim Unterschleißheim Bayern 85716- 2+1
- 61 m²
472 000 € + 280 €















