
Prodej domu 5+1 • 150 m² bez realitkyZwinglistr. 11, , Braniborsko
Zwinglistr. 11, , BraniborskoMHD 3 minuty pěšky • ParkováníDům na prodej – pozemek 570 m², obytná plocha 150 m², 2 samostatné byty možné
Náš dům prodáváme v klidné a atraktivní lokalitě, protože jsme se rozhodli opustit Německo a začít nový život.
Dům nabízí spoustu prostoru, flexibilitu a velký potenciál – ideální pro rodiny, vícegenerační bydlení nebo využití jako dvě oddělené obytné jednotky.
Hlavní údaje:
Pozemek: cca 570 m²
Obytná plocha: cca 150 m²
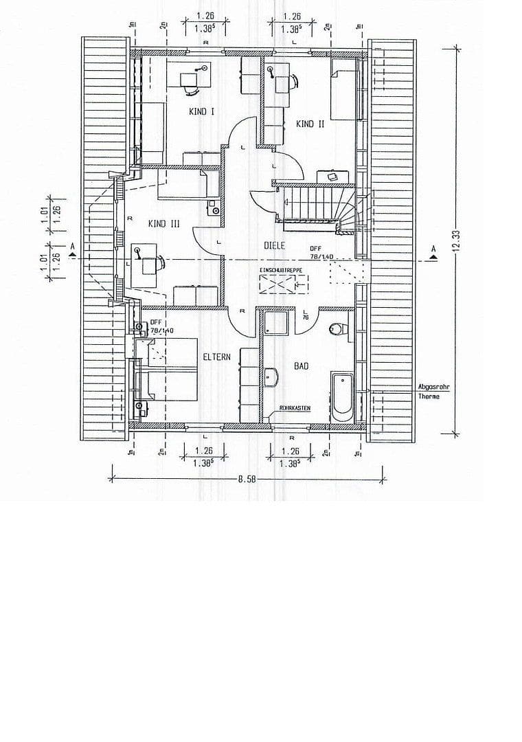
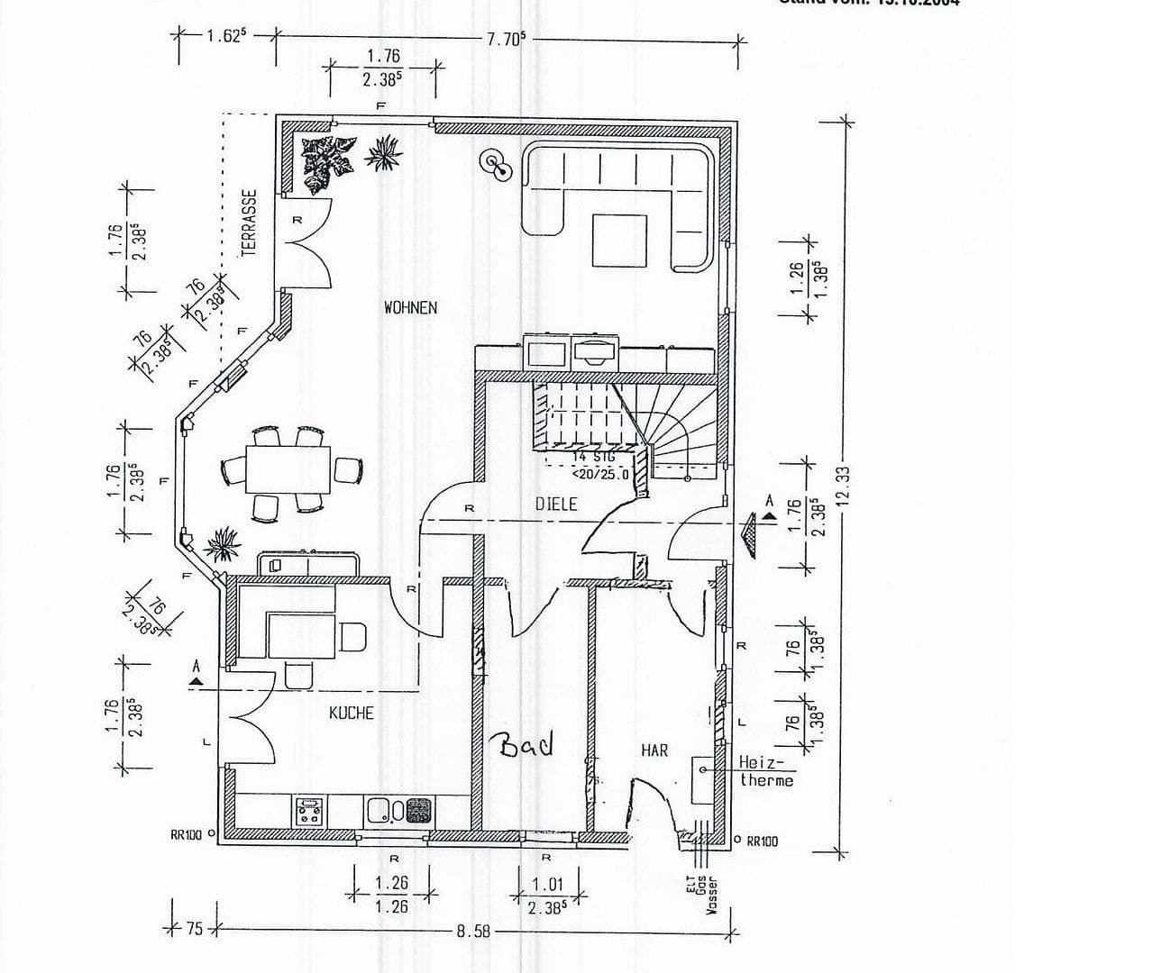
2 podlaží
Obě podlaží lze využít samostatně jako nezávislé byty
Klidná lokalita
Zvláštnosti:
V zahradě již probíhá přestavba, včetně připraveného plavebního projektu.
Bazén (v přípravě):
• cca 6,5 m x 3,5 m x 1,35 m
• jáma je již zcela vykopaná
• podlaha z betonu (cca 25 cm, 2 vrstvy výztuže)
• boční stěny jsou připraveny s kovovými mřížemi
Poznámka:
Zahrada zatím ještě není zcela dokončena, protože byla plánována kompletní přestavba. To kupujícím nabízí možnost vše upravit dle vlastních představ.












