
Prodej domu 5+1 • 145 m² bez realitkyDarmstadt Darmstadt Hessen 64285
Darmstadt Darmstadt Hessen 64285MHD 2 minuty pěšky • ParkováníProdává se udržovaný rodinný dům v centrální lokalitě Darmstadtu, v oblíbené čtvrti Bessungen.
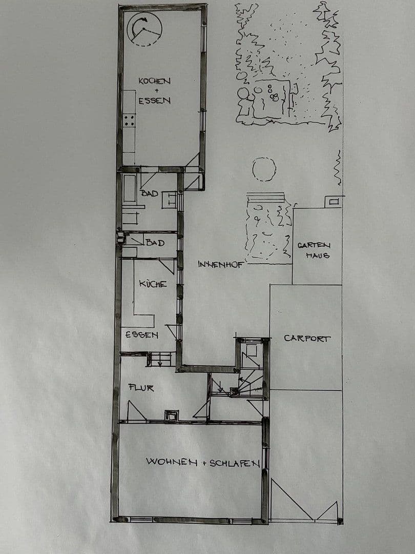
Stavební pozemek o rozloze přibližně 297 m² je zastavěn okouzlujícím hlavním domem z roku 1900 a přístavbou z roku 1961. Nemovitost je v současnosti rozdělena na tři bytové jednotky, a je vhodná jak pro investory k pronájmu, tak i pro uživatele, kteří v ní sami chtějí bydlet.
Hlavní dům se skládá ze dvou bytových jednotek s celkovou obytnou plochou cca 75 m², případně lze prostor využít jako jednu jednotku s ložnicí a koupelnou nahoře a obývacím a jídelním pokojem dole. Další WC se denním světlem se nachází mezi přízemím a půdou.
Přístavba má samostatný vstup a nabízí obytnou plochu přibližně 65 m² rozloženou do dvou úrovní. Malá střešní terasa a zimní zahrada přidávají této nabídce bydlení atraktivní vzhled.
Jednoduchým odstraněním mezi-dveří lze, pokud máte zájem, spojit přední a zadní část domu do jedné jednotky.
Všechny byty jsou vybaveny kuchyněmi, jejichž převzetí je možné po dohodě. Kuchyně a koupelny byly naposledy zmodernizovány v roce 2020, což podtrhuje celkově udržovaný stav nemovitosti. Střechy přístavby a zimní zahrady a několik oken byly v roce 2003 obnoveny.
K nemovitosti dále patří carport, před ním parkovací místo pro druhé auto, kůlna, kryt pro kola a odpadkové koše a zahrada s rybníkem v zadní části pozemku, která jako zelená oáza k odpočinku ve městě působí.
Díky dobrému napojení na veřejnou dopravu a centrální poloze je tato nemovitost obzvláště atraktivní.
Nemovitost se nachází v oblíbené čtvrti Jugendstil Darmstadtu Bessungen, nedaleko parku Orangerie s jeho barokními prvky. Čtvrť je ceněna pro svou centrální a zároveň klidnou obytnou polohu. Obchody, restaurace, stejně jako všechny školy, mateřské školy a zařízení denní potřeby jsou dosažitelné pěšky. Velmi dobré spojení s veřejnou dopravou a blízkost centra Darmstadtu jsou velkou výhodou pro bydlení, práci i volný čas.
2-FH resp. tři bytové jednotky
• Vestavěné kuchyně ve všech bytech (převzetí po domluvě)
• Modernizované koupelny s denním světlem a kuchyně (2020)
• Samostatné hostinské WC v hlavním domě
• Podlahy z korku, parket, dlaždic
• Kamínkové topení (kamna)
• Střešní terasa v přístavbě
• Prostorný sklep s klenbou
• Carport a druhé parkovací místo
• 2 kůlny, zahrada s rybníkem
• Samostatný vstup do přístavby























