
Prodej bytu 3+1 • 76 m² bez realitkyJevenstedter Straße 55 Hamburg Lurup Hamburg 22547
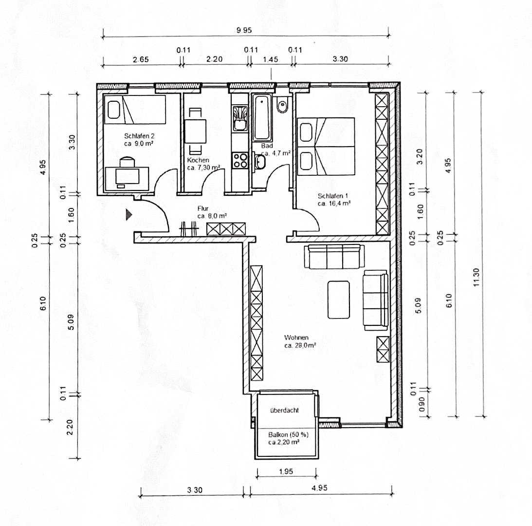
Jevenstedter Straße 55 Hamburg Lurup Hamburg 22547MHD 4 minuty pěškyNa prodej je prostorný 3-pokojový byt o přibližně 76 m² obytné plochy, který se nachází v klidné a zelené lokalitě Hamburku (Jevenstedter Straße 55). K bytu náleží také sklepní kóje.
V rámci renovace již byla provedena řada modernizačních opatření:
• Nová elektrika v celém bytě
• Moderní jističová skříň dle aktuálních bezpečnostních standardů
• LAN kabeláž
• Mnoho dodatečných zásuvek
• Nové podlahové krytiny
• Nová topná tělesa
• Moderní dispozice bytu s hojným denním světlem
Byt je v současné době dokončován a nabízí moderní vybavení s aktuálním komfortem bydlení.
Byt se nachází v udržovaném bytovém domě, který byl v minulých letech rozsáhle modernizován:
• Výtah obnoven (cca 2020)
• Střecha obnovena a izolována (cca 2017)
• Balkónový systém obnoven (cca 2019)
• Bezbariérový přístup
Byt je momentálně kompletně rekonstruován, což umožňuje prvotní nastěhování po modernizaci. Podle ukázkových fotografií lze již dobře představit budoucí, vysoce kvalitní stav bytu.
Zvláště atraktivní je, že byt je možné zakoupit buď plně dokončený, nebo v současném stavu, což otevírá další možnosti pro individuální úpravu.
Nemovitost je výborná jak pro vlastní bydlení, tak jako investice pro kapitálové investory. Jedná se o solidní a hodnotnou investici v Hamburku.
Byt se nachází na ulici Jevenstedter ve Hamburku, v obzvlášť klidné a příjemné obytné oblasti.
Okolí je charakterizováno rodinnými domy, hojností zeleně a klidným sousedstvím. Zároveň je zde dobré spojení s veřejnou dopravou, obchody, školami a dalšími zařízeními denní potřeby.
Tato kombinace činí lokalitu atraktivní jak pro vlastní bydlení, tak pro dlouhodobé kapitálové investice.
Byt je aktuálně dokončován.
Fotografie použitá v inzerátu částečně zobrazují vizualizace konečného stavu bytu.
Rádi vám poskytneme další informace nebo domluvíme prohlídku.
Údaje byly uvedeny dle nejlepšího vědomí a svědomí a za ně neneseme žádnou odpovědnost.
Veškeré podklady a dokumenty jsou k nahlédnutí.
*Bez makléřské provize
Makléřské dotazy nejsou vítány! Podle § 7 UWG je nevyžádané kontaktování ze strany makléřů bez výslovného souhlasu příjemce zakázáno!


















