
Pronájem kanceláře • 132 m² bez realitkyKrakovská, Praha - Nové Město
Krakovská, Praha - Nové MěstoMHD 2 minuty pěšky • ParkováníKANCELÁŘE K PRONÁJMU - 132 m2
!! NEPLATÍTE PROVIZI !!
Firma Real Top s.r.o., která je přímým majitelem a správcem objektu, nabízí k pronájmu kancelářské prostory v administrativní budově BUSINESS RESIDENCE v Krakovské ulici.
Objekt se nachází v blízkosti Václavského náměstí, 300 m od stanice metra Muzeum, I. P. Pavlova. K dispozici je 24 hodinová ostraha, výtah, možnost parkování v zakladači.
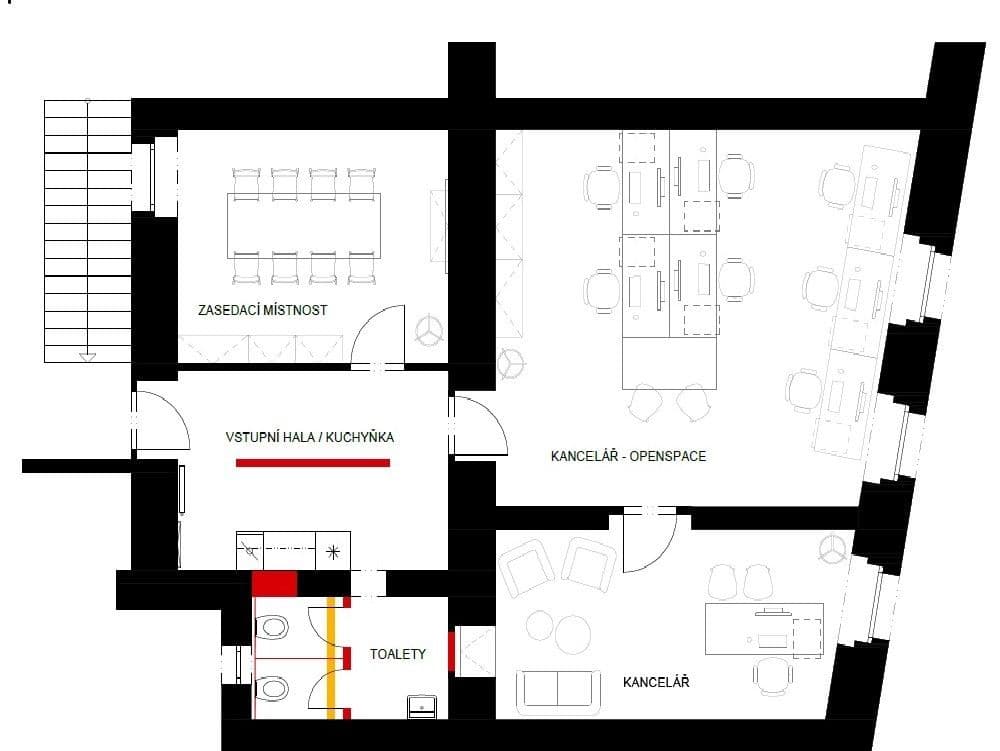
Nabízíme k pronájmu jednotku po celkové rekonstrukci o výměře 132m2 (vstupní hala s přípojkami na kuchyňku, 3 kanceláře, sociální zázemí) umístěná v 1NP.
Cena nájmu 295,-Kč/m2, provozní náklady 102 Kč/m2, topné náklady 36 Kč/m2.
Elektrická energie hrazena PŘÍMO DLE SPOTŘEBY NÁJEMCE (měřiče)
k nastěhování IHNED
Parametry nemovitosti
| Dostupné od | 1. 9. 2025 |
|---|---|
| Konstrukce budovy | Cihla |
| Číslo inzerátu | 667332 |
| Umístění | Klidná část |
| Cena za jednotku | 295 Kč / m2 |
| Stav | Dobrý |
|---|---|
| Podlaží | 1. podlaží z 6 |
| PENB | E - Nehospodárná |
| Plocha kanceláře | 132 m² |
Co tato nemovitost nabízí?
| MHD 2 minuty pěšky |
| Parkování |
V okolí nemovitosti najdete
Stále hledáte to pravé?
Nastavte si hlídacího psa. Nabídky vybrané na míru dostanete souhrnně 1× denně e-mailem. S Premium profilem máte k ruce hlídačů rovnou 5 a když se něco objeví, informují vás obratem.
















