
Pronájem bytu 1+1 • 40 m² bez realitkyKaráskovo náměstí, Brno - Židenice, Jihomoravský kraj
Karáskovo náměstí, Brno - Židenice, Jihomoravský krajMHD 4 minuty pěškyMáte o nabídku zájem?
Ušetřete 13 900 Kč na provizi a komunikujte se všemi majiteli.
Nabízíme k dlouhodobému pronájmu pěkný byt 1 + 1 ve II. NP cihlového bytového domu. Byt prošel v roce 2021 kompletní rekonstrukcí.
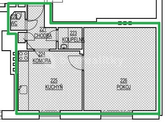
Do bytu se vchází chodbou (3,4 m2), ze které je přístup do koupelny (1,7 m2) vybavené malou vanou a umyvadlem a rovněž na samostatné WC. Dále se chodbou dostanete do kuchyně (13 m2) vybavené novou kuchyňskou linkou, sklokeramickou varnou deskou, elektrickou troubou a digestoří. V kuchyňské lince je prostor připravený na připojení pračky. Z kuchyně je vstup do prostorného pokoje (20 m2). Okna bytu jsou orientována na severozápad. Vytápění - ústřední s vlastní kotelnou v domě.
Byt je pronajímán bez dalšího vybavení (nutná je vlastní lednička a pračka) a je k dispozici cca do týdne.
Celkové náklady na bydlení při užívání jednou osobou činí 16.445 Kč měsíčně (13.900 Kč nájemné + 2.545 Kč zálohy na služby). Ve dvou osobách jsou celkové náklady 17.025 Kč (služby 3.125 Kč). V ceně není internet (UPC - Vodafone).
V místě je výborná občanská vybavenost - blízkost zastávek MHD, obchody, výborná dostupnost do centra Brna. Přímo před domem je park a dětské hřiště.
Smlouvu není možné uzavřít s nájemcem se záznamem v centrální evidenci exekucí či insolvenčním rejstříku.
V okolí nemovitosti najdete
Máte o nabídku zájem?
Ušetřete 13 900 Kč na provizi a komunikujte se všemi majiteli.



Pronájem bytuNádražní, Veverská Bítýška - Veverská Bítýška, Jihomoravský kraj- 2+1
- 70 m²
13 000 Kč + 3 800 Kč

Stále hledáte to pravé?
Nastavte si hlídacího psa. Nabídky vybrané na míru dostanete souhrnně 1× denně e-mailem. S Premium profilem máte k ruce hlídačů rovnou 5 a když se něco objeví, informují vás obratem.










