Prodej bytu 6+kk • 420 m² bez realitkyRůžová, Valtice - Valtice, Jihomoravský kraj
Růžová, Valtice - Valtice, Jihomoravský krajMHD 4 minuty pěšky • Vybaveno • Parkování • Garáž • Terasa 100 m²Tato nemovitost již od 59 314 Kč měsíčně s roční úrokovou sazbou od 4,29 %.
CENA NA VYŽÁDÁNÍ
Nabízíme k prodeji velký rodinný byt v centru Vatlic s výhledem na náměstí.
Dispozice:
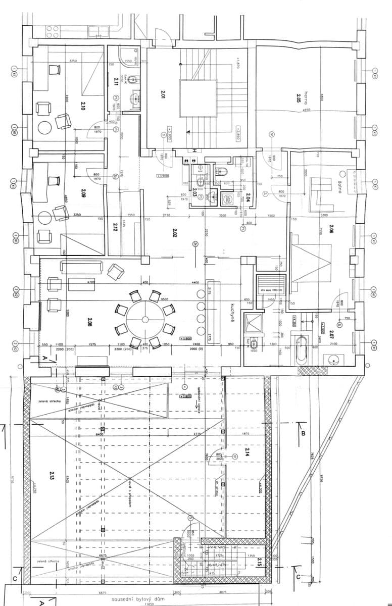
Obytné prostory bytu obsahují: (viz přiložený plán bytu)
(2.06 + 2.07) - ložnice s vlastní šatnou, saunou a koupelnou se sprchovým koutem a vanou
(2.05) Pokoj 25m2 velký s vestavěnou skříní
(2.10 a 2.09) Původně dva samostatné menší pokoje, nyní spojeno do jednoho jako ložnice + menší soukromý obývák.
(2.08) Kuchyně + obyvák + jídelna celkem cca 49.5m2 s vybavenou kuchyní, pultem
(2.04) Technická místnost, kde se nachází kotel, výlevka, sušička a pračka
(2.03) Záchod s umyvadlem
(2.11) Koupelna se sprchovým koutem, záchodem a umyvadlem
(2.12) Šatna/botník s úložným prostorem
(2.13) Z kuchyně se vchází na velkou terasu, která je z velké části zastřešená. Jakoby za stěnou terasy se nachází (2.14) úložný prostor pro venkovní nábytek atd.
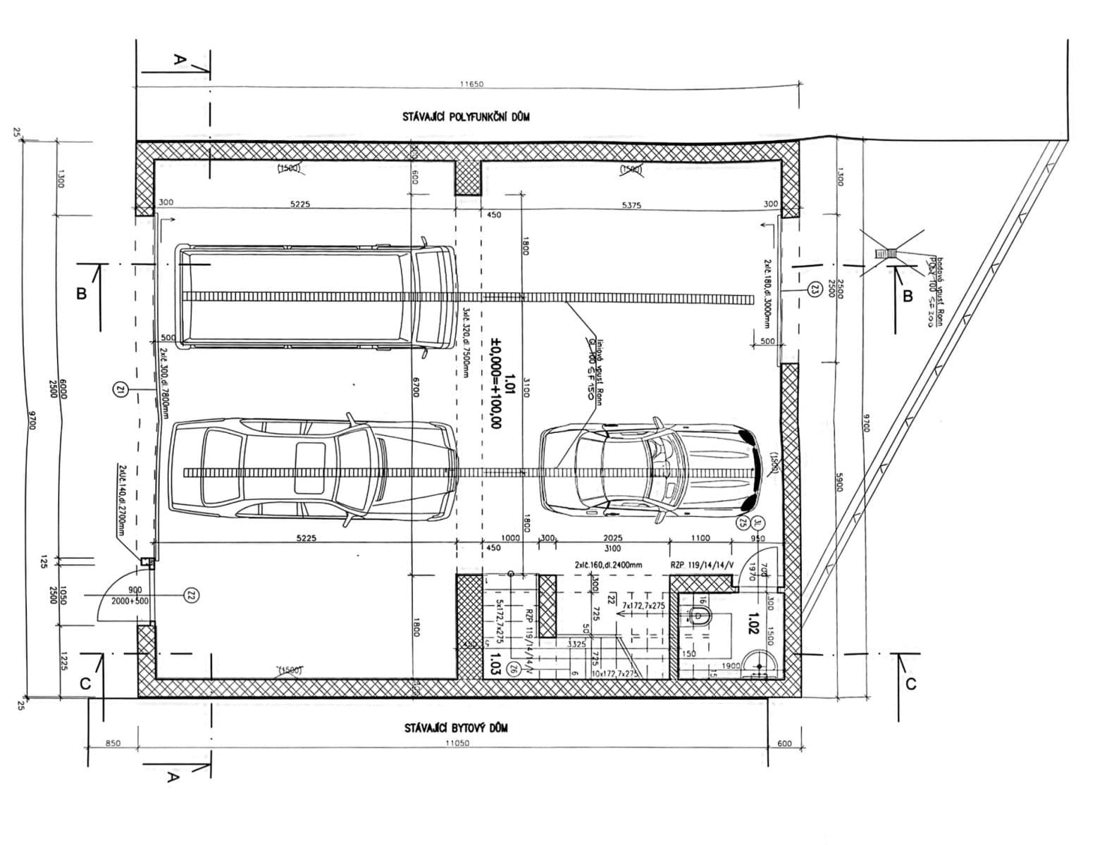
(2.15) Schodiště, kterým se z terasy schází do garáže (1.01), ve které je místo na 4 auta (pohodlně), několik kol/ motorky/ skútry a mnoho dalšího úložného prostoru (viz regály a velké skříně pod schodištěm)
Celková rozloha bytu:
Obytné prostory cca: 220m2
Terasa cca 100m2
Garáž cca 100m2
Přesně viz přiložený plán.
Byt je aktuálně obydlený a krom maličkostí ve výborném stavu. Po celé ploše bytu jsou dřevěné podlahy a obecně všechny materiály a zařízení bytu je velmi kvalitní.
Nábytek apod bychom nechali/vyklidili dle domluvy se zájemcem.
Byt je mimojiné kompletně klimatizován, je zaveden centrální vysavač ve většině místností, v obýváku je nainstalován audio systém od Bose, v domě je nainstalováno zabezpečení a mnohem více. Podrobnější informace při osobní prohlídce, nebo po telefonu.
Energetickou třídu jsme nuceni napsat G - nemáme oficiálně změřenou momentálně, ale dům je zateplen, okna nová atd.
Více fotografií pošleme do emailu.
Realitky nepište.
Parametry nemovitosti
| Dostupné od | 1. 7. 2025 |
|---|---|
| Konstrukce budovy | Cihla |
| Vybaveno | Vybaveno |
| Číslo inzerátu | 727669 |
| PENB | G - Mimořádně nehospodárná |
| Užitná plocha | 420 m² |
| Cena za jednotku | 35 714 Kč / m2 |
| Stav | Velmi dobrý |
|---|---|
| Dispozice | 6+kk |
| Podlaží | 2. podlaží z 2 |
| Vlastnictví | Osobní |
| Umístění | Klidná část |
| Rizika | Prověřit » |
Co tato nemovitost nabízí?
| Garáž | |
| Parkování | |
| Terasa 100 m² |
| MHD 4 minuty pěšky |
V okolí nemovitosti najdete
Tato nemovitost již od 59 314 Kč měsíčně s roční úrokovou sazbou od 4,29 %.
Stále hledáte to pravé?
Nastavte si hlídacího psa. Nabídky vybrané na míru dostanete souhrnně 1× denně e-mailem. S Premium profilem máte k ruce hlídačů rovnou 5 a když se něco objeví, informují vás obratem.



















