
Prodej bytu 2+1 • 61 m² bez realitkySídliště II, Povrly - Povrly, Ústecký kraj
Sídliště II, Povrly - Povrly, Ústecký krajČástečně vybaveno • Parkování • Balkón 4 m² • Sklep 2 m²Tato nemovitost již od 8 185 Kč měsíčně s roční úrokovou sazbou od 4,29 %.
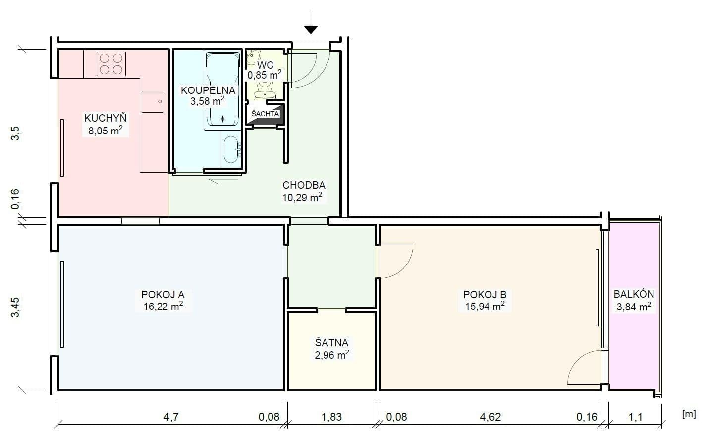
Družstevní byt 2+1 s balkonem - 61 m2.
K bytu náleží vlastní komora na mezipatře, sklep v uzamykatelných sklepních prostorách a kóje ve vstupní chodbě v přízemí.
Byt je po rekonstrukci původního jádra
- zděné bytové jádro, sádrokartonový podhled, plovoucí podlaha na samonivelační stěrce, el. rozvody kompletně v mědi, bezpečnostní dveře.
Kuchyňská linka Oresi s elektrickou varnou deskou a prostorem pro pračku, horní skříňky jsou vybaveny cirkulační digestoří.
Koupelna a WC je plně vybavena (vana se sprchovou zástěnou, el. topný žebřík, umývátko, úložná skříňka), v šatně je ponechána WI-FI.
Uvedené rozměry ve schématickém půdoryse jsou pouze orientační.
Parkování před domem, nejbližší obchod - smíšené zboží ve vzdálenosti 100 m, restaurace 150 m.
V obci Povrly se nachází základní i mateřská škola, koupaliště, zimní stadion, fotbalové hřiště a další OV.
Byt je vyklizen a připraven k nastěhování.
Rezervace bytu a jeho prohlídka možná po domluvě.
Převod přes notářskou úschovu, prodejní cena splatná v jedné splátce.
Prosím jen vážné zájemce - o služby RK nemáme zájem.
Parametry nemovitosti
| Dostupné od | 8. 6. 2025 | 
|---|---|
| Konstrukce budovy | Panel | 
| Vybaveno | Částečně | 
| Vytápění | Ústřední | 
| Vlastnictví | Družstevní | 
| Rekonstrukce | Kompletní | 
| Cena za jednotku | 33 934 Kč / m2 | 
| Stav | Velmi dobrý | 
|---|---|
| Dispozice | 2+1 | 
| Podlaží | 4. podlaží z 4 | 
| Číslo inzerátu | 913199 | 
| PENB | G - Mimořádně nehospodárná | 
| Užitná plocha | 61 m² | 
Co tato nemovitost nabízí?
| Balkón 4 m² | |
| Sklep 2 m² | |
| Parkování | 
V okolí nemovitosti najdete
Tato nemovitost již od 8 185 Kč měsíčně s roční úrokovou sazbou od 4,29 %.
Stále hledáte to pravé?
Nastavte si hlídacího psa. Nabídky vybrané na míru dostanete souhrnně 1× denně e-mailem. S Premium profilem máte k ruce hlídačů rovnou 5 a když se něco objeví, informují vás obratem.












