Pronájem nebytového prostoru • 400 m² bez realitkySlužeb, Praha - Strašnice
Nepřehlédněte
Služeb, Praha - StrašniceMěsíční nájemné200 Kč
Nabízím nebytové prostory (kanceláře, sklady, provozně-výrobní prostory,) až 415m2 - 5 minut chůzí od metra Depo Hostivař Praha 10. Prostory jsou klimatizovány, možnost parkování, provoz 24/7, hlídací služba. Cena 200Kč/m2 + služby (placené paušálem). Volné od 01.09.2025.
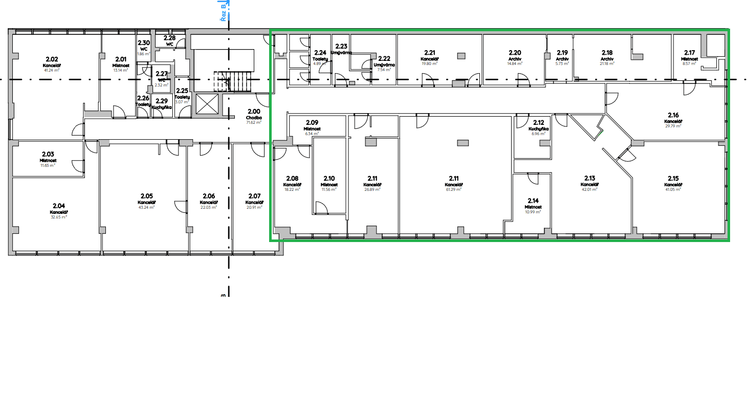
Prostor vyznačen zeleně na půdorysu se pronajímá v celku, nebo lze rozdělit (min 150m2)
Parametry nemovitosti
| Dostupné od | 2. 7. 2025 |
|---|---|
| Konstrukce budovy | Skeletová |
| Číslo inzerátu | 920532 |
| Plocha nebytového prostoru | 400 m² |
| Stav | Dobrý |
|---|---|
| Vybaveno | Nevybaveno |
| Poloha nebytového prostoru | Samostatný |
| Cena za jednotku | 1 Kč / m2 |
Co tato nemovitost nabízí?
V okolí nemovitosti najdete
Vzdálenost k:
Měsíční nájemné200 Kč
Stále hledáte to pravé?
Nastavte si hlídacího psa. Nabídky vybrané na míru dostanete souhrnně 1× denně e-mailem. S Premium profilem máte k ruce hlídačů rovnou 5 a když se něco objeví, informují vás obratem.



