Prodej domu 5+kk • 350 m² bez realitkyHumpolec - Rozkoš u Humpolce, Kraj Vysočina
Humpolec - Rozkoš u Humpolce, Kraj VysočinaMHD 1 minuta pěšky • Částečně vybaveno • Parkování • GarážTato nemovitost již od 33 176 Kč měsíčně s roční úrokovou sazbou od 4,29 %.
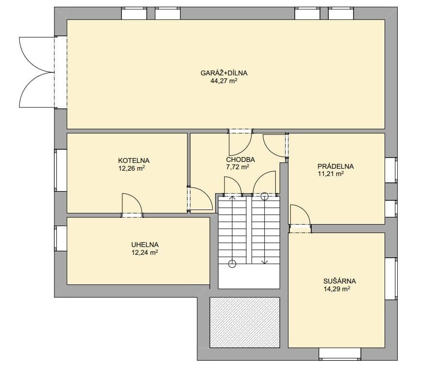
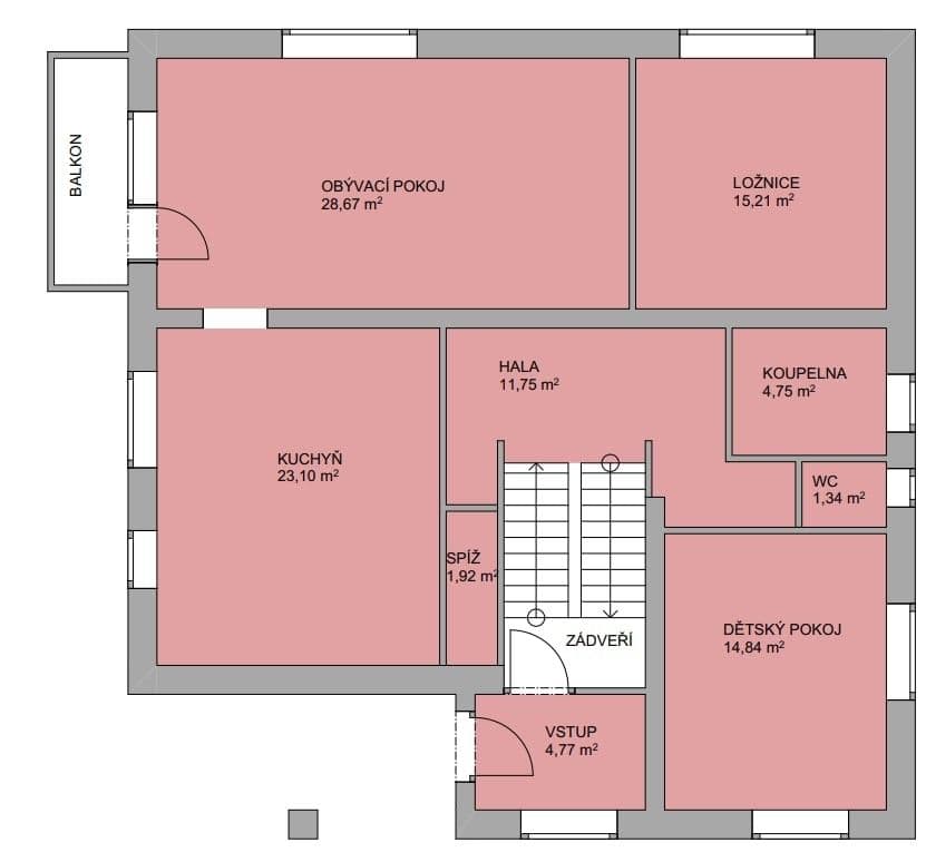
Nabízíme prodej RD,dispozičně řešeného jako 5+kk, zastavěná plocha 145 m2, užitná plocha domu 350 m2. Dům má jedno podzemní podlaží a dvě nadzemní podlaží. Celková rozloha pozemku 816 m2, v obci Rozkoš. Vytápění je zajištěno automatickým kotlem, v obývacím pokoji a v podkroví krbová kamna pro možnost sezónního vytápění. Ohřev teplé vody je zajištěn jak přes kotel tak elektrickým bojlerem. K domu dále náleží zahrada o rozloze cca 671 m2, venkovní pergola a skleník . Dům je komplet zateplený, včetně nové zateplené střechy a střešní krytiny. Kolaudace proběhla v roce 2005, nová střecha v roce 2019. Rozkoš je vzdálena 2 km od Humpolce, ve městě je kompletní občanská vybavenost a nájezd na dálnici D1, jedná se o střed mezi Prahou , Brnem , Českými Budějovicemi a Hradcem Králové. V obci je restaurace, autobusová zastávka 50m od domu. Obec Rozkoš se nachází na Vysočině, obklopena lesy, krásnou přírodou a velmi čistým ovzduším.Jsem přímým prodejcem .Advokátní služby zajištěny
Parametry nemovitosti
| Dostupné od | 17. 7. 2025 |
|---|---|
| Konstrukce budovy | Cihla |
| Vybaveno | Částečně |
| Vlastnictví | Osobní |
| Poloha domu | Samostatný |
| Plocha pozemku | 816 m² |
| Cena za jednotku | 23 971 Kč / m2 |
| Stav | Velmi dobrý |
|---|---|
| Dispozice | 5+kk |
| Číslo inzerátu | 925151 |
| PENB | C - Úsporná |
| Užitná plocha | 350 m² |
| Rizika | Prověřit » |
Co tato nemovitost nabízí?
| Garáž | |
| Parkování |
| MHD 1 minuta pěšky |
V okolí nemovitosti najdete
Tato nemovitost již od 33 176 Kč měsíčně s roční úrokovou sazbou od 4,29 %.
Stále hledáte to pravé?
Nastavte si hlídacího psa. Nabídky vybrané na míru dostanete souhrnně 1× denně e-mailem. S Premium profilem máte k ruce hlídačů rovnou 5 a když se něco objeví, informují vás obratem.



















