Prodej domu 6+kk • 140 m² bez realitky, Severní Porýní-Vestfálsko
, Severní Porýní-VestfálskoMHD 4 minuty pěšky • Parkování • GarážFREIESLEBEN-IMMOBILIEN vám představuje tyto nemovitosti na okraji udržovaného průmyslového a obchodního areálu v Altlünen, oblíbené části Lünen.
Celková nemovitost se skládá z:
1.) Elegantního rodinného domu, plně sklepeného a obkladovaného omítkou, se dvěma garážemi, který byl v roce 1990 postaven na přibližně 1006 m² vlastního pozemku,
2.) Přibližně 250 m² velké, kvalitní skladové/komerční haly s izolačním krytím na třech stranách, která disponuje dvěma kancelářemi, kuchyňkou, sanitárním prostorem a hostinskou toaletou. Tato hala byla v roce 1982 postavena s částečnou zděnou konstukcí na přibližně 713 m² velkém pozemku.
Tato nemovitost tedy nabízí perfektní možnosti pro kombinaci práce a bydlení.
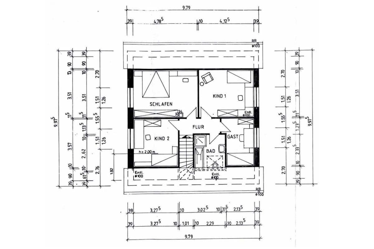
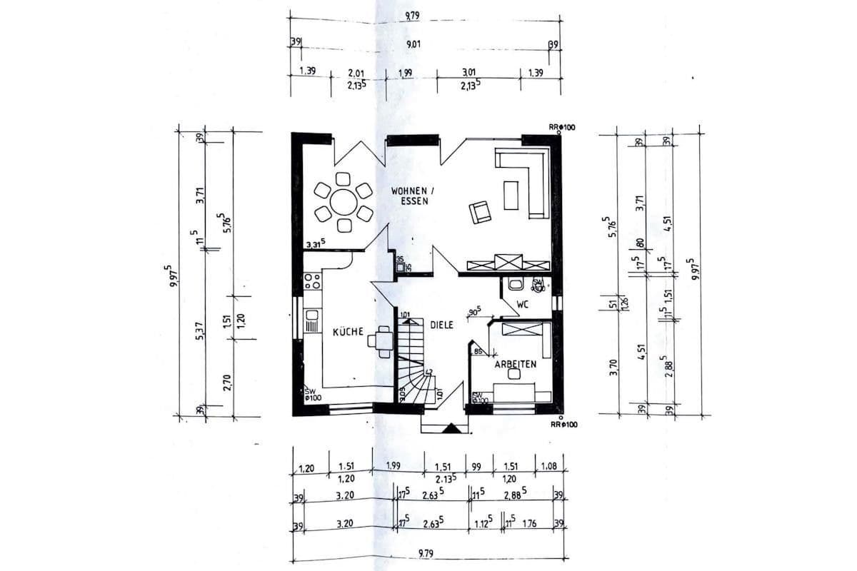
Elegantní rodinný dům má na přízemí a v patře celkově přibližně 140 m² obytné plochy. V přízemí se nachází světlý obývací-jídelní pokoj o rozloze cca 40 m² s podlahovými skleněnými okny a vstupem na terasu, kuchyně s jídelním koutem o rozloze cca 17 m² s kvalitní vestavěnou kuchyňskou linkou, pracovnu, hostinskou toaletu a prostorná, světlá hala se schodištěm. V patře se nachází rodičovská ložnice, dva dětské pokoje, pokoj pro hosty, koupelna s denním světlem se sprchou a vanou a dále chodba.
Udržovaný sklep nabízí přibližně 98 m² užitné plochy, rozdělené do prostor pro technické připojení domu/prádelnu, dvou dalších sklepních místností a chodby.
Dům je vytápěn plynovým centrálním topením, které bylo na konci roku 2016 nově instalováno.
Velká terasa na zadní straně domu a oplocená, nenáročná zahrada zvou k příjemnému pobytu venku. Na zahradě se nachází také zahradní domek.
Dále k domu náleží dlážděný dvůr se dvěma garážemi a parkovacími místy.
K domu přiléhající vysoce kvalitní skladová/komerční hala s hliníkovými okny a sekčními vraty nabízí dvě kanceláře, kuchyň, sanitární místnost se sprchou, hostinskou toaletu, velkou halu a malé skladové prostory.
Hala je vytápěna plynovým patrovým topením z roku 2008.
Pozemek, na kterém se hala nachází, je téměř zcela dlážděn a nabízí dostatek parkovacích míst například pro 10 automobilů.
Vjezd k hale a rodinnému domu lze uzavřít pomocí brány, čímž je celý pozemek kompletně oplocen.
Roční daň z nemovitosti pro komerční halu činí 960 EUR a pro dům 670 EUR.
Chcete si nemovitost ihned prohlédnout?
Zašlete nám prosím poptávku pomocí kontaktního formuláře nebo e-mailem na: info@immobilienmakler12.de – my vás obratem kontaktujeme.
Písemné poptávky jsou zpracovávány výrazně rychleji než telefonické!
BEZ PROVIZE PRO KUPUJÍCÍHO
Atraktivní nemovitost se nachází na okraji průmyslového a obchodního areálu Altlünen, oblíbené části města Lünen. Zde lze skvěle kombinovat bydlení a práci.
Altlünen nabízí svým obyvatelům dobrou infrastrukturu s mateřskými školami, školami, obchodními řetězci, dalšími nákupními možnostmi, restauracemi, lékaři a lékárnami.
Zelené okolí Lünen s řekou Lippe, Cappenberger jezerem a lesy poskytuje výborné možnosti k odpočinku.
Díky dobrému spojení veřejnou dopravou lze snadno dosáhnout i měst Porúří a Münsterlandu.
S automobilem se po dobře vybudovaných regionálních silnicích dostanete k dálnici A2, takže jste rychle připojeni k dálnicové síti Porúří.
• Udržované nemovitosti na okraji průmyslového a obchodního areálu
• Elegantní, plně sklepený a obkladovaný rodinný dům z roku 1990
• Přibližně 140 m² obytné plochy
• Přibližně 98 m² užitné plochy
• Velká terasa
• Oplocená, nenáročná zahrada
• Dvě garáže
• Zahradní domek
• Dlážděný dvůr s 10 parkovacími místy pro automobily
• Přibližně 250 m² velká, vysoce kvalitní skladová/komerční hala z roku 1982
• Pozemek kolem skladové/komerční haly je téměř zcela dlážděn
Toto je nezávazná nabídka společnosti
FREIESLEBEN GmbH,
Viktoriastraße 45
44787 Bochum
Tel.: 0234 - 92 56 98 00
Internet: www.immobilienmakler12.de
E-mail: info@immobilienmakler12.de
Můžete nás kontaktovat od PONDĚLÍ do NEDĚLE
od 7:00 do 22:00 hodin telefonicky. O víkendech vám navíc nabízíme naše služby v oblasti ocenění nemovitostí, prohlídek objektů a osobních schůzek.
Pokud jde o objekt, jsme závislí na informacích poskytovaných majiteli a úřady. Za správnost a úplnost údajů nelze nést odpovědnost. Dále nelze za objekt poskytnout záruku a za solventnost smluvních partnerů nelze ručit.
Chcete, aby byla vaše nemovitost také profesionálně uvedena k prodeji?
• Využijte naši bezplatnou službu a nechte si ocenit aktuální hodnotu vaší nemovitosti jedním z našich specialistů.
• Zvyšte prodejní šance vaší nemovitosti tím, že pro vás sestavíme speciálně přizpůsobený marketingový plán.
• Využijte naši vynikající celo-národní síť, která vám zajistí rychlý přísun zájemců. Stovky zájemců na vás čekají!
Zavolejte nám, těšíme se na vás!
Centrála Münsterland: Tel.: 0251 - 39 444 998
Centrála Porúří: Tel.: 0234 - 92 56 98 00
V okolí nemovitosti najdete
Stále hledáte to pravé?
Nastavte si hlídacího psa. Nabídky vybrané na míru dostanete souhrnně 1× denně e-mailem. S Premium profilem máte k ruce hlídačů rovnou 5 a když se něco objeví, informují vás obratem.
































