
Pronájem nebytového prostoru • 143 m² bez realitkyJihlavská, Praha - Michle
Máte o nabídku zájem?
Ušetřete 53 000 Kč na provizi a komunikujte se všemi majiteli.
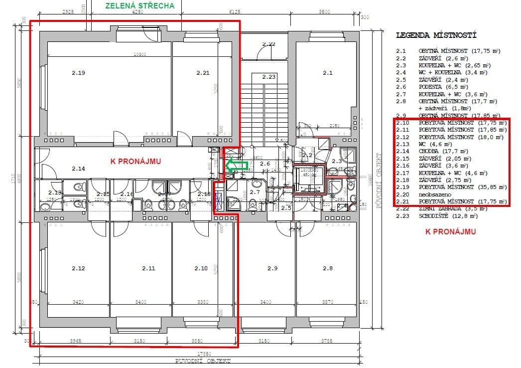
Nabízím k pronájmu nebytový prostor o výměře 143 m², který se nachází v 1. patře rohového domu a je ve velmi dobrém stavu. Nemovitost je částečně vybavená, což umožňuje flexibilní využití dle aktuálních potřeb. Prostor je ideální pro menší podnikatelské aktivity či kancelářské účely, a to i v případě, že hledáte kvalitní a reprezentativní prostředí pro své podnikání. Prostory mají centrální chodbu a 5 samostaných místností + sociální zázemí. Každá ze samostatných místnosti má přípravu na umyvadlo, ev. mlou kuchyňku.
K nemovitosti náleží také terasa o rozloze 140 m², která nabízí příležitost ke komfortnímu posezení či využití pro firemní akce, a ideálně rozšiřuje možnosti využití prostoru. V neposlední řadě oceňuji precizní stav nemovitosti, který zajistí hladký provoz a minimální investice do renovací či úprav.
Příklady možného využití:
- kancelářeské prostory, učebny, výuková centra, služby zdravotnické a péče o tělo apod.
Nemovitost má výbornou dopravní dostupnost MHD, auto v bezprostřední blízkosti metra Kačerov.
Máte-li zájem o bližší informace či osobní prohlídku, neváhejte mě kontaktovat prostřednictvím zpráv na této platformě. Těším se na Váš zájem.
I offer for rent a non-residential space with an area of 143 m², located on the first floor of a corner building and in very good condition. The property is partially furnished, which allows for flexible use according to current needs. The space is ideal for small business activities or office purposes, even if you are looking for a quality and representative environment for your business. The premises feature a central corridor and 5 separate rooms plus sanitary facilities. Each individual room is pre-equipped for a sink and, if desired, a kitchenette.
The property also includes a terrace measuring 140 m², which offers an opportunity for comfortable seating or usage for corporate events, ideally expanding the available usage options. Not least, I appreciate the property's excellent condition, which ensures smooth operation and minimal investments in renovations or modifications.
Examples of possible uses:
- office spaces, classrooms, training centers, healthcare and body care services, etc.
The property has excellent public transport accessibility, and there is parking available in the immediate vicinity of Kačerov metro station.
If you are interested in more detailed information or a personal viewing, please do not hesitate to contact me via messages on this platform. I look forward to your interest.
Parametry nemovitosti
| Dostupné od | 25. 8. 2025 |
|---|---|
| Konstrukce budovy | Cihla |
| Číslo inzerátu | 935950 |
| Plocha nebytového prostoru | 143 m² |
| Stav | Velmi dobrý |
|---|---|
| Vybaveno | Částečně |
| Poloha nebytového prostoru | Rohový |
| Cena za jednotku | 371 Kč / m2 |
Co tato nemovitost nabízí?
| Terasa 140 m² |
| MHD 2 minuty pěšky |
V okolí nemovitosti najdete
Máte o nabídku zájem?
Ušetřete 53 000 Kč na provizi a komunikujte se všemi majiteli.

Pronájem nebytového prostoruKarlínské náměstí, Praha - Karlín- 111 m²
51 043 Kč + 3 400 Kč60 051 Kč
Ušetříte 9 008 Kč



Stále hledáte to pravé?
Nastavte si hlídacího psa. Nabídky vybrané na míru dostanete souhrnně 1× denně e-mailem. S Premium profilem máte k ruce hlídačů rovnou 5 a když se něco objeví, informují vás obratem.










