
Prodej bytu 3+1 • 76 m² bez realitkyNa Háji, Aš - Aš, Karlovarský kraj
Na Háji, Aš - Aš, Karlovarský krajČástečně vybaveno • Garáž • Sklep 4,7 m²Tato nemovitost již od 9 886 Kč měsíčně s roční úrokovou sazbou od 4,29 %.
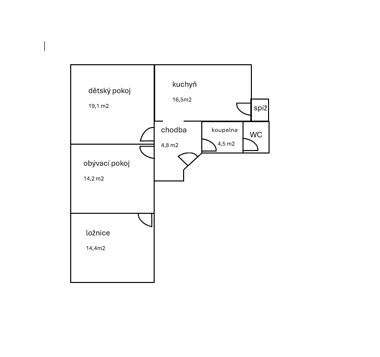
Nabízím k prodeji byt 3+1 o rozloze 75,8m2, který se nachází v cihlové domě v 1NP s celkem třemi podlažími. Celková rekonstrukce bytu vč. rozvodů proběhla v roce 2012. Byt je vytápěn pomocí vlastního zdroje - plynového kondenzačního kotle. K bytu náleží půdní kóje o velikosti 9m2 a dvě sklepní kóje o velikosti 1m2 a 3,7m2. Dále je možno využívat prostor společné půdy např. k věšení prádla. Byt je prodáván společně s garáží, která je za cenu +500.000,-Kč. Garáž je s elektroinstalací o velikosti 23,5m2 a je součástí domu. V blízkosti domu využíváme zahradu v pronájmu.
Parametry nemovitosti
| Dostupné od | 3. 9. 2025 |
|---|---|
| Konstrukce budovy | Cihla |
| Vybaveno | Částečně |
| Číslo inzerátu | 941131 |
| PENB | G - Mimořádně nehospodárná |
| Užitná plocha | 76 m² |
| Cena za jednotku | 32 895 Kč / m2 |
| Stav | Dobrý |
|---|---|
| Dispozice | 3+1 |
| Podlaží | 1. podlaží z 3 |
| Vlastnictví | Osobní |
| Umístění | Klidná část |
| Rizika | Prověřit » |
Co tato nemovitost nabízí?
| Sklep 4,7 m² | |
| Garáž |
V okolí nemovitosti najdete
Tato nemovitost již od 9 886 Kč měsíčně s roční úrokovou sazbou od 4,29 %.
Stále hledáte to pravé?
Nastavte si hlídacího psa. Nabídky vybrané na míru dostanete souhrnně 1× denně e-mailem. S Premium profilem máte k ruce hlídačů rovnou 5 a když se něco objeví, informují vás obratem.













