
Prodej bytu 2+kk • 69 m² bez realitkyJeseniova, Praha - Žižkov
Využít program Bydlím hned, koupím později
Nabízíme k prodeji útulný a tichý byt 2+kk v osobním vlastnictví situovaný v horním patře budovy, která disponuje nákladním výtahem. Celková obytná plocha 69 m² zahrnuje prostorný obývací prostor s oddělenou kuchyní a jídelnou. Ložnice je příjemně klidná a prostorná. Balkón o ploše 4,5 m², ideální pro odpočinek po náročném dni je situován do klidného vnitrobloku s výhledem do korun vzrostlých stromů.
K bytu také náleží sklep (nezahrnut do výměry plochy bytu) o ploše 5m2. Sklepy prošly kompletně v celém domě nedávnou rekonstrukcí.
V roce 2025 byl byt nově vybaven rekuperací obou hlavních obytných místností té nejvyšší kvality (2 x jednotka RECUAIR DC 40 H Premium) a také ventilací v koupelně. Foto mohu poslat (není na fotkách inzerátu ještě). Tedy je po celý rok nyní zajištěn čerstvý vzduch v bytě bez zbytečných energetických ztrát.
Byt je vybaven značkovými kvalitními spotřebiči BOSCH, Franke.
Vytápění: plynový kondenzační kotel Bosch.
Parkování je možné přímo před domem (modrá zóna), kde bývá často možnost parkovat přímo před samotným vchodem domu. Blízko se také nachází i placená parkovací zóna (víkendy zdarma), vhodné pro návštěvy.
Dostupnost do centra s MHD do 15 minut. Zastávky tramvají a autobusů kousek od bytu.
V okolí mnoho parků a zeleně - Židovské pece, Parukářka, Vítkov, Krejcárek. Koupaliště Pražačka a legendární kino AERO se skvělým programem jen pár desítek metrů od bytu.
SVJ je bez dluhu s úsporami, mohu doložit zájemci.
Energetickou náročnost také mohu doložit výpisy od dodavatelů.
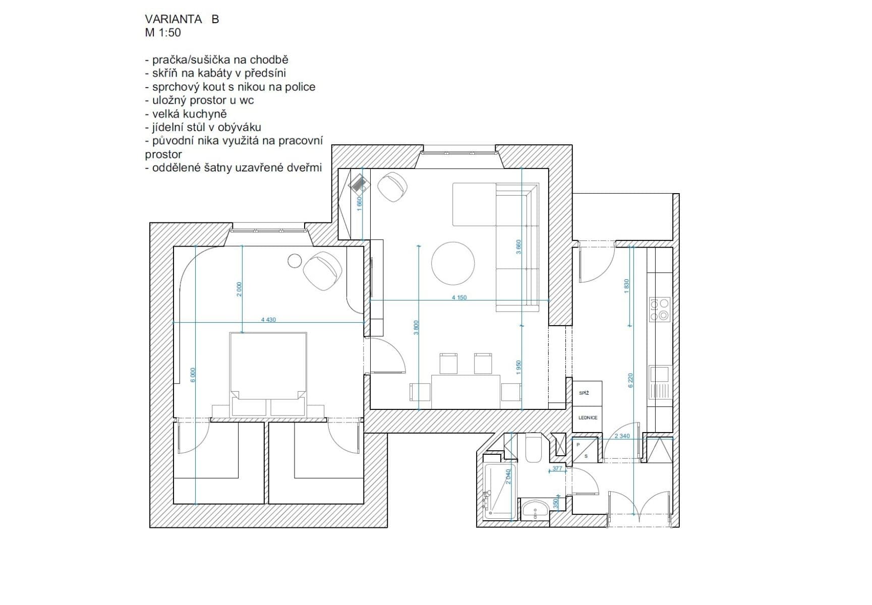
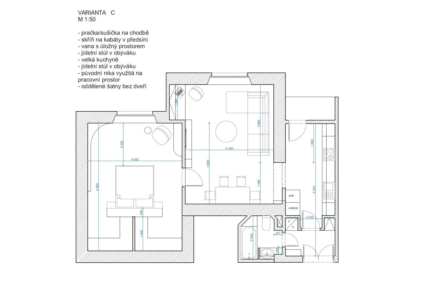
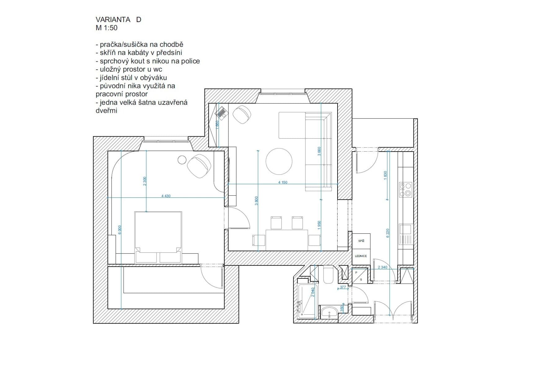
Na byt je zpracována architektonická studie 4 variant rekonstrukce viz foto. Mohu dodat také v případě zájmu profesionální vizualizace.
V případě zájmu mě neváhejte kontaktovat a rád se s vámi setkám na prohlídce bytu.
We offer for sale a cozy and quiet 2-room apartment (2+kk) in freehold, located on the top floor of a building equipped with a freight elevator. The total living area of 69 m² includes a spacious living room with a separate kitchen and dining area. The bedroom is pleasantly quiet and spacious. A 4.5 m² balcony, ideal for relaxing after a demanding day, overlooks a peaceful inner courtyard with a view of the treetops.
The apartment also includes a cellar (not included in the apartment’s area) of 5 m². The cellars in the entire building were completely renovated recently.
In 2025, the apartment was newly equipped with high-quality recuperation units (2 x RECUAIR DC 40 H Premium) in both main living rooms, as well as ventilation in the bathroom, ensuring fresh air throughout the year without unnecessary energy losses.
The apartment is equipped with premium branded appliances by BOSCH and Franke.
Heating is provided by a Bosch gas condensing boiler.
Parking is available directly in front of the building (blue zone), where there is often the possibility to park right in front of the entrance. Nearby is also a paid parking zone (free on weekends), which is suitable for visitors.
The center is accessible by public transport in up to 15 minutes. Tram and bus stops are located near the apartment.
In the vicinity, there are many parks and green areas – Židovské pece, Parukářka, Vítkov, Krejcárek. The Pražačka swimming pool and the legendary AERO cinema, known for its great program, are just a few dozen meters from the apartment.
The homeowners’ association (SVJ) is debt-free with savings, which I can document for interested parties.
I can also provide documentation regarding the energy performance from the suppliers.
An architectural study with four reconstruction variants has been prepared for the apartment – see photo. I can also provide professional visualizations if desired.
If you are interested, please do not hesitate to contact me, and I will be happy to arrange an apartment viewing.
Parametry nemovitosti
| Dostupné od | 3. 9. 2025 |
|---|---|
| Konstrukce budovy | Cihla |
| Vybaveno | Vybaveno |
| Číslo inzerátu | 941251 |
| PENB | G - Mimořádně nehospodárná |
| Užitná plocha | 69 m² |
| Cena za jednotku | 115 797 Kč / m2 |
| Stav | Dobrý |
|---|---|
| Dispozice | 2+kk |
| Podlaží | 5. podlaží z 5 |
| Vlastnictví | Osobní |
| Umístění | Klidná část |
| Rizika | Prověřit » |
Vybíráte byt?
Mějte jistotu, že máte všechny důležité informace!
Co tato nemovitost nabízí?
| Balkón 4,5 m² | |
| Parkování |
| Sklep 5 m² | |
| Výtah |
V okolí nemovitosti najdete
Využít program Bydlím hned, koupím později
Stále hledáte to pravé?
Nastavte si hlídacího psa. Nabídky vybrané na míru dostanete souhrnně 1× denně e-mailem. S Premium profilem máte k ruce hlídačů rovnou 5 a když se něco objeví, informují vás obratem.























