
Pronájem bytu 3+1 • 10 m² bez realitkyVážného, Brno - Řečkovice, Jihomoravský kraj
Máte o nabídku zájem?
Ušetřete 5 900 Kč na provizi a komunikujte se všemi majiteli.
Nabízím k podnájmu menší pokoj v rámci spolubydlení s jinými nájemníky v blízkosti konečné tramvaje č.1 v Řečkovicích. Je orientován do zahrady, takže je v něm klid. Pokoj je v prvním patře, byt je kompletně vybaven vč. kuchyně, koupelny, WC. Vhodné pro studenta nebo pracujícího přes týden v Brně. Nachází v cihlové budově ve velmi dobrém stavu. V bezprostřední blízkosti obchody, zdravotní středisko, nádraží, autobusové linky. Do půlkilometru lesy, rybníky. Samozřejmě k dispozici wifi.
Na fotografiích je mj zakroužkováno, která okna míří do pokoje.
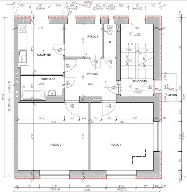
Na plánku se jedná o Pokoj 3.
Pokoj je k dispozici od 30.1.2026
Pokud máte zájem o bližší informace či domluvení prohlídky, kontaktujte mě prosím zprávou skrz komunikační platformu.
I offer a small room for subletting in shared accommodation with other tenants, located near the final stop of Tram No. 1 in Řečkovice. The room faces the garden, ensuring a peaceful atmosphere. It is situated on the first floor, and the apartment is fully furnished, including a kitchen, bathroom, and WC. This setup is ideal for a student or someone working in Brno during the week. The property is in a brick building in very good condition. Shops, a health center, the train station, and bus stops are all in the immediate vicinity, and there are forests and ponds within half a kilometer. Of course, Wi‑Fi is available.
If you are interested in learning more or arranging a viewing, please contact me via a message through the communication platform.
V okolí nemovitosti najdete
Máte o nabídku zájem?
Ušetřete 5 900 Kč na provizi a komunikujte se všemi majiteli.

Pronájem bytuBotanická, Brno - Ponava, Jihomoravský kraj- 3+1
- 87 m²
6 500 Kč + 1 000 Kč8 500 Kč
Ušetříte 2 000 Kč

Stále hledáte to pravé?
Nastavte si hlídacího psa. Nabídky vybrané na míru dostanete souhrnně 1× denně e-mailem. S Premium profilem máte k ruce hlídačů rovnou 5 a když se něco objeví, informují vás obratem.








