Prodej domu 5+1 • 126 m² bez realitkySaxtorfer Weg 111, , Šlesvicko-Holštýnsko
Saxtorfer Weg 111, , Šlesvicko-HolštýnskoMHD 3 minuty pěšky • ParkováníRodinný řadový dům v Eckernförde-Borby – ihned k nastěhování!
Kupní cena: 349.000 €
Obytná plocha: cca 126 m²
Pokoje: 5
Pozemek: 195 m²
Rok výstavby: 1996
K nastěhování: ihned
Parkovací místa: krytý stání pro 2 vozidla
Energetický průkaz a znalecký posudek: k dispozici
Váš nový domov – světlý, klidný a s potenciálem
Tento upravený řadový dům v Eckernförde-Borby spojuje rodinnou lokalitu, solidní provedení a široké možnosti úprav. Ihned k nastěhování a s dostačujícím prostorem pro celou rodinu je vhodný také pro páry nebo individualisty, kteří si chtějí vytvořit domov podle vlastních představ.
Hlavní přednosti v přehledu
• Ihned k nastěhování – ideální pro rodiny s blízkými plány bydlení
• Klidná slepá ulička se zavedenou sousedskou komunitou
• 5 pokojů na 3 úrovních – flexibilně využitelných pro rodinu, domácí kancelář nebo koníčky
• Dvě koupelny (se sprchou i vanou)
• Částečně zastřešená terasa a nenáročná zahrada
• Krytý prostor pro 2 vozidla s technickou místností
• Světlé místnosti s okny od podlahy ke stropu a bukovým schodištěm
• Možnost připojení na internet až 1.000 MBit/s
• Certifikát bez plísní díky ověřenému detektivu plísní
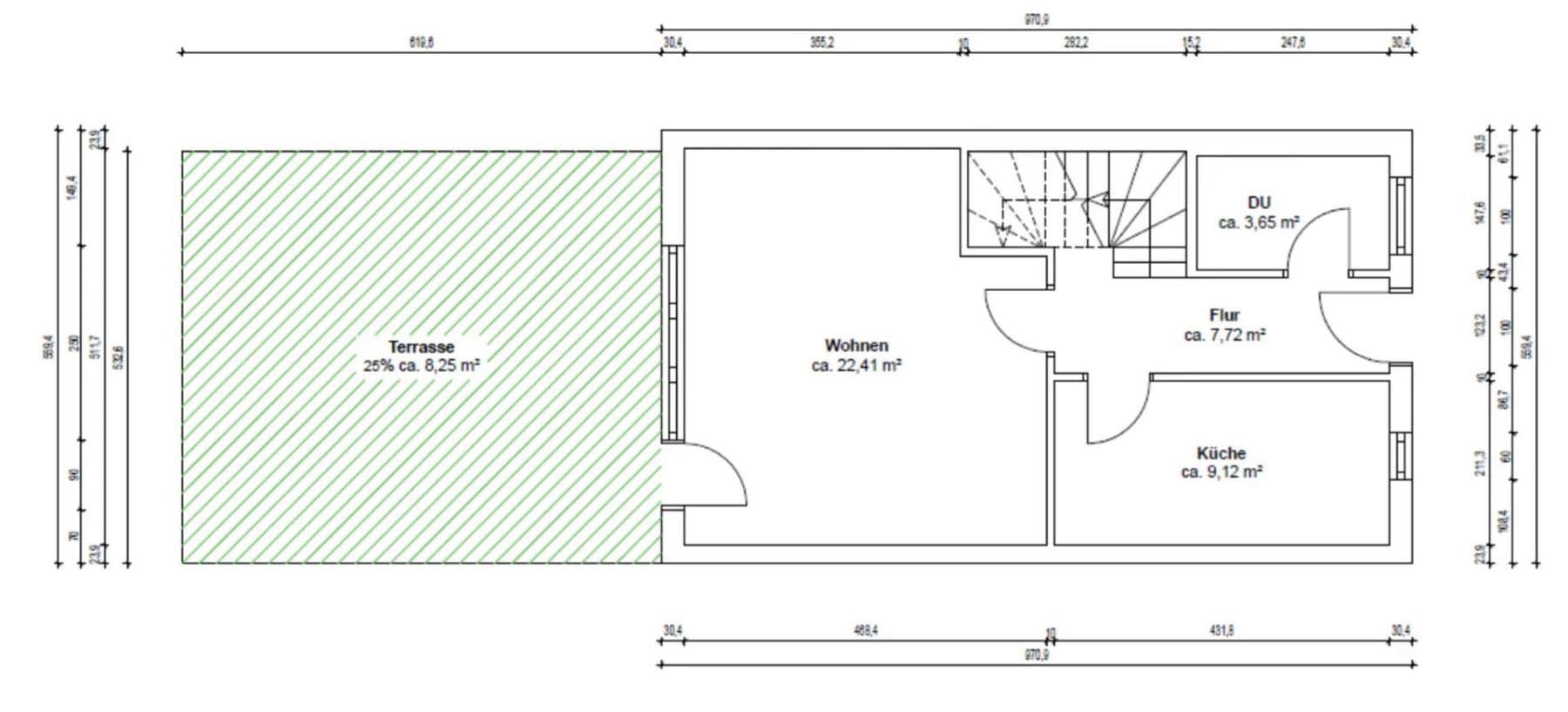
Půdorys a rozložení
Přízemí: vstupní hala, koupelna se sprchou, kuchyně s vestavěnou linkou, slunný obývací pokoj s přístupem na terasu
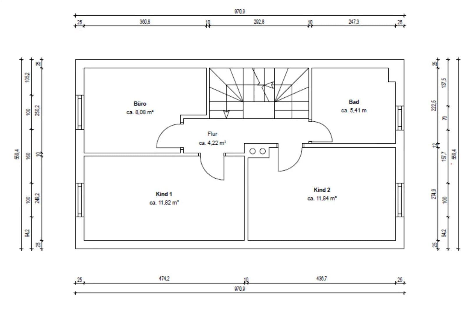
1. patro: tři ložnice/pracovní prostory, denní koupelna s vanou a připojením pro pračku
Podkroví (cca 24 m²): prostorný studiový pokoj – ideální jako rodičovská část nebo domácí kancelář
Místnost kotle: další úložný prostor
Lokalita – Borby: klidná, zelená a blízko centra
Borby patří mezi nejoblíbenější čtvrti v Eckernförde. Mateřská škola i základní škola jsou dosažitelné pěšky, centrum i přístav jsou vzdáleny jen cca 2 km. Autobusová zastávka se nachází pouhých 200 m a možnosti nákupů jsou snadno dostupné.
Eckernförde – bydlení tam, kde druzí tráví dovolenou
Nádech moře, rozsáhlá pláž, půvabné historické centrum a četné volnočasové aktivity činí z Eckernförde jedno z nejatraktivnějších míst k bydlení na pobřeží Baltského moře.
Technika a vybavení
• Centrální plynové topení, pravidelně udržované
• Satelitní přijímač k dispozici
• Podlahy: dlažba, laminát, korek
Podívejte se prostě sami!
Obrázky jsou fajn, ale živá zkušenost je ještě lepší!
Domluvte si nezávaznou prohlídku a zažijte prostory na vlastní oči – těšíme se na vás!
V okolí nemovitosti najdete
Stále hledáte to pravé?
Nastavte si hlídacího psa. Nabídky vybrané na míru dostanete souhrnně 1× denně e-mailem. S Premium profilem máte k ruce hlídačů rovnou 5 a když se něco objeví, informují vás obratem.
























