
Prodej bytu 2+kk • 66 m² bez realitkyEdvarda Beneše, Plzeň - Plzeň, Plzeňský kraj
Edvarda Beneše, Plzeň - Plzeň, Plzeňský krajČástečně vybaveno • Balkón 2,6 m² • Sklep 10 m²Tato nemovitost již od 18 150 Kč měsíčně s roční úrokovou sazbou od 4,29 %.
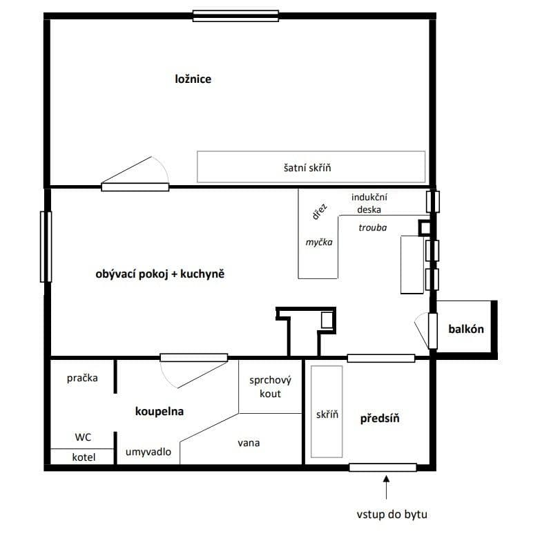
Nabízíme k prodeji prostorný byt 2+kk s balkónem v ulici Edvarda Beneše v Plzni
na Jižním Předměstí, který se nachází v mezipodlaží 3. a 4. patra cihlového domu bez výtahu.
Podlahová plocha bytu je 66 m², balkónu 2,6 m². K bytu náleží také sklepní kóje o výměře
10 m² v 1. podzemním podlaží domu. Celý byt je situován do vnitrobloku a nabízí tak velice
klidné bydlení v těsné blízkosti centra města.
Byt se skládá z předsíně, koupelny se sprchovým koutem, vanou a WC, obývacího pokoje
s kuchyňským koutem a ložnice. Podlaha pokojů a předsíně je v nadstandardním provedení, dřevěného designu, plně bezprahová. Koupelna je vyzděná s keramickým obkladem a dlažbou. Orientace celého
bytu je na JZ s výhledem do parku ve vnitrobloku.
Byt je částečně zařízen. Součástí je kuchyňská linka včetně indukční desky, vestavěné trouby,
myčky na nádobí a digestoře. V ložnici je k dispozici prostorná šatní skříň s posuvnými dveřmi,
v předsíni pak menší skříň a botník. Plastová okna jsou opatřena garnyžemi. Teplota v bytě se
reguluje pomocí termostatu, topení je realizováno novým plynovým, kondenzačním kotlem (topení + průtokový ohřev vody, systém Viessmann).
Byt je v osobním vlastnictví. V domě je fungující SVJ pod správou plzeňské společnosti Triumfa.
Měsíční náklady na fond oprav a společné poplatky činí 2340 Kč + vodné/stočné, elektřina, plyn
a internet. Byt disponuje třífázovým jističem (3 * 25 A).
V okolí nemovitosti je vynikající dostupnost služeb. Pár minut od domu je trolejbusová
a autobusová zastávka (linky č. 16, 22 + noční spoje N1, N2), tramvajová zastávka (linka č. 4)
i vlaková stanice (Plzeň zastávka). Pěší dostupnost do centra města do 10 min. Cyklostezka přímo
před domem. Možnost využívání parku ve vnitrobloku ve vlastnictví města Plzně, kam mají
přístup jen majitelé okolních domů. Parkování před domem a v přilehlých ulicích (lokalita není
součástí parkovacích zón města Plzně).
Součástí prodeje jsou i podíly na společných částech budovy.
Byt je volný k okamžitému nastěhování.
Neplatí se provize. Obchod bude realizován dle
standardních postupů přes advokátní kancelář, včetně advokátní úschovy.
Tato nemovitost je určena výhradně přímým zájemcům o koupi.
Energetický štítek budovy (PENB): F (Velmi nehospodárná).
Prohlídka po domluvě možná.
Parametry nemovitosti
| Dostupné od | 11. 9. 2025 |
|---|---|
| Konstrukce budovy | Cihla |
| Vybaveno | Částečně |
| Číslo inzerátu | 943946 |
| PENB | F - Velmi nehospodárná |
| Užitná plocha | 66 m² |
| Cena za jednotku | 69 545 Kč / m2 |
| Stav | Velmi dobrý |
|---|---|
| Dispozice | 2+kk |
| Podlaží | 3. podlaží z 4 |
| Vlastnictví | Osobní |
| Umístění | Klidná část |
| Rizika | Prověřit » |
Co tato nemovitost nabízí?
| Balkón 2,6 m² | |
| Sklep 10 m² |
V okolí nemovitosti najdete
Tato nemovitost již od 18 150 Kč měsíčně s roční úrokovou sazbou od 4,29 %.
Stále hledáte to pravé?
Nastavte si hlídacího psa. Nabídky vybrané na míru dostanete souhrnně 1× denně e-mailem. S Premium profilem máte k ruce hlídačů rovnou 5 a když se něco objeví, informují vás obratem.

















