
Pronájem bytu 1+1 • 33 m² bez realitkyFrankfurt am Main Sindlingen Hessen 65931
Frankfurt am Main Sindlingen Hessen 65931MHD 1 minuta pěškyVolně od 1. listopadu 2025
• KfW 40+ energetický standard, tj. mimořádně nízké náklady na topné teplo (podle energetického průkazu) (v závislosti na individuálním spotřebitelském chování)
• Celkově nízké provozní náklady díky vlastní správě vlastníkem
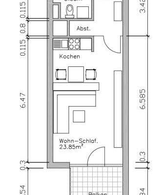
• Světlá výška místností cca 2,65 m (kromě koupelen)
• Všechny dveře cca 2,12 m vysoké
• Plně vybavená vestavěná kuchyně firmy Nolte se spotřebiči AEG (kombinace ledničky a mrazáku, trouby, keramická varná deska, digestoř, myčky nádobí), LED podsvícením pod pracovní deskou, systémem třídění odpadu
• Kvalitní dřevěný nábytek
• Velká ložnicová skříň
• Koupelnový nábytek s umyvadlovou skříní
• Stropní lampy u všech stropních vývodů
• Kvalitní plisé na všech oknech
• Do bytu se můžete nastěhovat s „malými zavazadly“ a několika vlastními kusy nábytku
• Vlastní sklep
• Místnostně řízené podlahové vytápění
• Trojité zasklení s elektrickými rolety u všech oken a balkonových dveří
• Bezzdvižné sprchové kouty s obvodovou dlažbou a dlaždicovanými zónami, zcela dlaždicované koupelny
• Pavícovaný masivní parket ve všech obytných a ložnicových prostorech
• Aktivní větrání obytných prostor
• Několik praček a sušiček značky Miele v prádelně ve sklepě pro společné využití. Rezervace a účtování probíhá přes mobilní aplikaci (za vlastní náklady)
• Velký balíčkový box řízený pomocí mobilní aplikace
• Elektrický systém pro bránu a vstup, který odděluje veřejný prostor
• Uzamykací systém – pouze jeden klíč pro všechna zamykání (s výjimkou poštovní schránky)
• Videointerkom
• 24hodinové video sledování vstupní oblasti a nádvoří pro vaši bezpečnost
• Sametově měkká voda s nízkým obsahem vápníku je zajištěna centrálním odvápenizačním zařízením
• Nájemní elektřina (cca 10 % pod obvyklými tržními cenami za elektřinu)
• WLAN za 25 EUR/měsíc, takže již nebudete potřebovat vlastní pevné připojení
• Digitální SAT-TV připojení
• Máte pouze jednoho smluvního partnera pro celou infrastrukturu:
o bydlení
o elektřinu
o teplo
o internet
Čtvrť Sindlingen se nachází extrémně dopravně výhodně v západní části Frankfurtu na hranici s okresním Main-Taunus.
Dosažením autem:
• Letiště za méně než 10 minut
• Kancelářské mesto Eschborn za 10 minut
• Frankfurtský křižovatka za 10 minut
• Kancelářské mesto Niederrad za 13 minut
• Frankfurtský veletrh za 14 minut
• Centrum Wiesbadenu za 18 minut
• Centrum Mainzu za 20 minut
Na kole jste rovněž výborně napojeni ve všech směrech na hlavní cyklistickou síť státu Hesensko.
Pěšky je:
• Západní vstup do průmyslového parku Höchst vzdálen pouhých 550 m
• Nejbližší stanice S-Bahn je 650 m daleko
• K nejbližší autobusové zastávce jen 150 m
Téměř veškeré zařízení pro každodenní potřeby je dosažitelné pěšky v bezprostřední blízkosti. Také se zde nachází několik krásných zelených ploch. Zejména nedaleké Mainwiesen vybízí k dlouhým procházkám nebo cyklistickým výletům.
Ano, nemovitost se nachází na jedné z hlavních ulic čtvrti. Jelikož jsou však všechny autobusové zastávky a semafory umístěny v dostatečné vzdálenosti, doprava u domu klidně plynule probíhá. Proto je hlučnost zvenčí minimální, uvnitř směrem k silnici sotva patrná a na straně zahrady silniční zvuky téměř neslyšet.
Díky trojitému zasklení je dosaženo vynikající zvukové izolace. Navíc aktivní větrání obytných prostor obvykle umožňuje větrání bez nutnosti otevírání oken, čímž se eliminují okolní hluky.
I přes blízkost letiště obvykle není vnímatelný žádný hluk z letadel. Rovněž je železniční doprava dostatečně vzdálená, aby nebyla slyšitelná.
Lokalita spojuje velké množství logistických výhod, které se v takové koncentraci jen zřídka vyskytují.
Pronájem probíhá přímo od vlastníka.
Prosím, při kontaktu uveďte své telefonní číslo a čas, kdy jste dosažitelní telefonicky. Vrátíme se s hovorem.
V okolí nemovitosti najdete
Stále hledáte to pravé?
Nastavte si hlídacího psa. Nabídky vybrané na míru dostanete souhrnně 1× denně e-mailem. S Premium profilem máte k ruce hlídačů rovnou 5 a když se něco objeví, informují vás obratem.